Eladó családi ház Cserszegtomaj 220 000 000 Ft

Leírás



Kedves Érdeklődő!

Eladásra kínálok egy cserszegtomaji csendes utcában 2021-ben átadott 1319 m2-es telken kialakított FÖLDSZINTES lakóingatlant. Ez az opció azoknak kedvez, akik nem akarnak bajlódni építkezéssel, inkább beköltöznének egy készbe. Itt mindenre gondoltak, praktikusan lett kialakítva és a ház éves kifűtése 110.000 ft normális hőfokon.

Fontosabb tudnivalók:
• Az ingatlan 30-as Wienerberger síkra csiszolt téglából készült, melyet 15 cm-es grafit polisztirollal szigetelt.
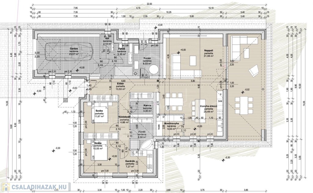
• A lakóház mérete nettó 159 m2 garázzsal együtt.
• Az ingatlan helyiségei a következőkből áll: 1 amerikai konyhás nappali étkezővel, 3 szoba, 2 fürdő, 1 vendég toalett, 1 előtér, 1 mosókonyha, 1 kamra, mely egyben egy kazánház is. A nappaliból nyílik egy tágas terasz, valamint az utcafronton egy 1 autónak megfelelő garázs. Ezen felül egy plusz autónak van hely még a garázs előtt. A kertben egy kis faház található, mely tökéletes kerti szerszámok tárolásához.
• 3 rétegű műanyag antracit nyílászárók vannak beszerelve, valamint az árnyékolásról antracit alumínium redőnyök gondoskodnak szúnyoghálóval. Valamennyi termék a mai szabványnak megfelelnek.
• A garázs lezárásáról távirányítóval nyitható Hörmann szekcionális garázskapu gondoskodik.
• Az ingatlant földszintes, melynek födéme szigetelt, valamint a padlás feletti tetőrész Creaton cserépfedést kapott. A padláson külön gondkosodtak arról, hogy fújható szigeteléssel teljesen lezárják az akár kisebb felmerülő légréseket is.
• Az ingatlan melegéről gázkazán gondoskodik padlófűtés formájában. A szobákban plusz radiátorok is fel lettek szerelve. A jelenlegi árak mellett az épület kifűtése benne van a kedvezményes keretben. Arra az esetre ha gond lenne a gázzal, kialakításra került alternatívaként egy vegyes tüzelésű kazán is.
• A melegvízet külön bojler készíti elő, melyet gáz működtet. Mivel környékünkön a víz keménysége elég magas, vízlágyító rendszer gondoskodik a víz lágyításáról. Ezek a gépek egy kisebb helységben kapnak külön helyet, mely alkalmas rakodásra is.
• Az épületben két klíma is fel van szerelve, mely gondoskodik arról, ha esetleg még szükség lenne nyári nagy melegben a ház további hűtésére, de mivel az épület jól van szigetelve alapjáraton erre nincs szükség.
• A napelem csövezése kialakításra került. Az épületben 3 fázis található, igény szerint további korszerűsítés történhet bontás nélkül.
• A ház esztétikailag nagyon mutatós és praktikus. A teljes lakórész a vizes helységeket leszámítva jó minőségű egységes színű laminált parkettával lett lerakva. Vizes helységek kerámia burkolatot kaptak. A színek harmonizálnak és tisztítás szempontjából is praktikusak.
• A ház biztonsága érdekében riasztót építettek ki.
• A kert gyönyörűen parkosítva lett, melyet folyamatosan ápolnak. A fű rendbetartásáról egy kiépített robotfűnyíró gondoskodik. Sok a növény és itt egy élmény időt eltölteni.

Elsőre ennyi lenne, de komoly érdeklődés esetén ezt mind átbeszéljük. Igény szerint hitelszűrésben is tudok segíteni.
Ha netán el kellene adni ingatlanát, akkor kérem említse meg és igény esetén annak eladását is teljeskörűen le tudom bonyolítani mindenféle fejfájás nélkül.

Cserszegtomaj nagyon kedvelt sokak számára. Földrajzi elhelyezkedésének köszönhetően enyhén magasabb ponton van, ezáltal panorámája is van a település egyes részeinek, de mégis könnyen megközelíthető.
Cserszegen a közelben van iskola, óvoda, kisebb bolt. A háztól nem messze van buszmegálló is alternatívának.
Keszthely mindössze 4km-re van, Hévízi-tó 5km. Igazából 10 perc alatt autóval hamar megközelíthető minden és mellette minden nap madárcsicsergésre ébredhet.

A közelben nagyon sok hely van még, amit érdemes meglátogatni. Többek között Szigligeti vár, Badacsony, Tapolcán a Tavas Barlang. Közvetlen mellettünk Keszthely, ahol több idegenforgalmi attrakció is van mint pl. Festecsics Kastély, Balaton Múzeum, Játék múzeum és sok más hasonló érdekesség. Hévízi Termálfürdő és még sorolhatnám. Ezeket 2-15km-es körzetben megtalálhatjuk.

AZ INGATLAN TULAJDONVISZONYAI RENDEZETTEK, TEHERMENTES!

Ha ezen ajánlatunk felkeltette érdeklődését, kérem forduljon hozzám bizalommal! További videót tudok küldeni még a megtekintés előtt.

Üdvözlettel: Kuti Andrea

Családi ház részletei

Ár: 220 000 000 Ft
Méret: 159 négyzetméter
Azonosító: 11611631
Irodai azonosító: 110930
Cím: Cserszegtomaj
Telek: 1319 négyzetméter
Ingatlan állapota: Kitűnő
Jelleg: családi ház
Építőanyag: Kérdezzen rá a hirdetőtől »
Fűtés jellege: Cirkó
Kor: Új építésű
Egész szobák: 4

Egyéb jellemzők

  • Terasz

Így keressen családi házat négy egyszerű lépésben. Csupán 2 perc, kötelezettségek nélkül!

Szűkítse a családi házak
listáját
Válassza ki a megfelelő
családi házat
Írjon a hirdetőnek
Várjon a visszahívásra