Eladó családi ház Cserszegtomaj 122 000 000 Ft

Leírás



Azonnal költözhető, új építésű, modern családi ház balatoni rálátással – Cserszegtomaj csendes lakóövezetében

Cserszegtomaj új építésű, nyugodt lakóövezeti részén, aszfaltos úton megközelíthető környezetben kínáljuk megvételre ezt a 2025 végén elkészült, igényesen kivitelezett családi házat.

A projekt egy 3.500 m²-es telken valósult meg, összesen 5 lakóegységgel.
Az egyes házakhoz tartozó telekrészek leválasztásra kerültek, az adott ingatlanhoz tartozó terület várhatóan kb. 650–700 m² (pontosítás folyamatban).
A teljes telek körbekerített, az egyes lakóegységek elkülönítése megtörtént.

Az ingatlanhoz: saját, térkövezett gépkocsi beálló került kialakításra (1 autó részére),
a telken belüli közlekedés és megközelítés teljes egészében térkő burkolattal megoldott.
Az ingatlan mindössze 2–3 km-re található Keszthely központjától illetve Hévíztől.

Műszaki tartalom:
Az épület teljes mértékben elkészült, kulcsrakész, azonnal költözhető állapotban van.

Szerkezet:
Beton alapozás
30 cm-es Porotherm falazat
Terra Zenit grafit cserépfedés
15 cm homlokzati hőszigetelés
Korszerű födém- és egyéb hőszigetelések a hatályos energetikai előírásoknak megfelelően

Nyílászárók:
3 rétegű műanyag nyílászárók
Alumínium redőnyök és szúnyoghálók
A nappaliban motorizált redőny
A további helyiségekben manuális működtetés

Burkolatok:
Modern, prémium minőségű burkolatok a teljes lakótérben
Esztétikus, letisztult, időtálló kivitel

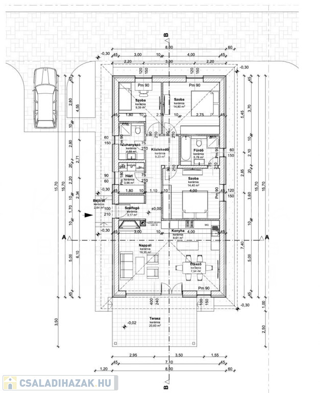
Helyiségek és méretek
Hasznos nettó lakótér: 101 m²
Terasz: 20,68 m²
Fedett bejáró: 2,64 m²

Elosztás:
Előtér
Amerikai konyhás nappali étkezővel
2 külön nyíló hálószoba
1 közös fürdőszoba (zuhanyzó + WC)
1 szülői hálószoba saját fürdőszobával (kád + zuhanyzó + WC)
Mosókonyha / gépház
Közlekedő
20,68 m²-es terasz, ahonnan balatoni rálátás élvezhető

Gépészet és elektromos rendszer:
Kondenzációs gázkazán biztosítja a fűtést
Használati melegvíz ellátás bojlerről
Nappaliban hűtő-fűtő klíma
1 × 32 A elektromos kapacitás (igény esetén bővíthető)
Riasztó- és napelemes rendszer előkészítés

A vételár tartalmazza:
Az épület teljes kulcsrakész állapotát
Tereprendezést
A teljes telek körbekerítését és a leválasztott telekrészt
Térkövezett gépkocsi beállót
Telken belüli térkövezett megközelítést
Fürdőszobák teljes szerelvényezését
A kertépítés nem része a vételárnak.

További egyedi igények külön megállapodás alapján megvalósíthatók.

Ez az ingatlan ideális választás mindazok számára, akik modern, új építésű, azonnal költözhető otthont keresnek nyugodt lakóövezeti környezetben, ugyanakkor fontos számukra a minőségi kivitelezés, a rendezett telekkialakítás és a Balaton közelsége.

Videóanyag rendelkezésre áll, az ingatlan előre egyeztetett időpontban megtekinthető.
Amennyiben kérdése merül fel, kérem keressen bizalommal.

Üdvözlettel:
Kuti Andrea

Családi ház részletei

Ár: 122 000 000 Ft
Méret: 101 négyzetméter
Azonosító: 11600808
Irodai azonosító: 125157
Cím: Cserszegtomaj
Ingatlan állapota: Kitűnő
Jelleg: családi ház
Építőanyag: Kérdezzen rá a hirdetőtől »
Fűtés jellege: Cirkó
Egész szobák: 4

Egyéb jellemzők

  • Terasz

Így keressen családi házat négy egyszerű lépésben. Csupán 2 perc, kötelezettségek nélkül!

Szűkítse a családi házak
listáját
Válassza ki a megfelelő
családi házat
Írjon a hirdetőnek
Várjon a visszahívásra