Eladó családi ház Cserszegtomaj 115 000 000 Ft

Leírás

Új, prémium minőségű családi házak Cserszegtomajon – közvetlenül a beruházótól!
Ház 1 Ár: szerkezetkész állapotban 105 millió Ft, kulcsrakészen 135 millió Ft.
Ház 2 Ár: szerkezetkész állapotban 115 millió Ft, kulcsrakészen 145 millió Ft.
(Ajánlat tartalmazza a teljes körű kulcsrakész kivitelezést.)
Kivételes lehetőség azok számára, akik modern, energiatakarékos otthont keresnek Hévíztől mindössze 1 km-re és a Balatontól 4 km-re (Keszthely)!
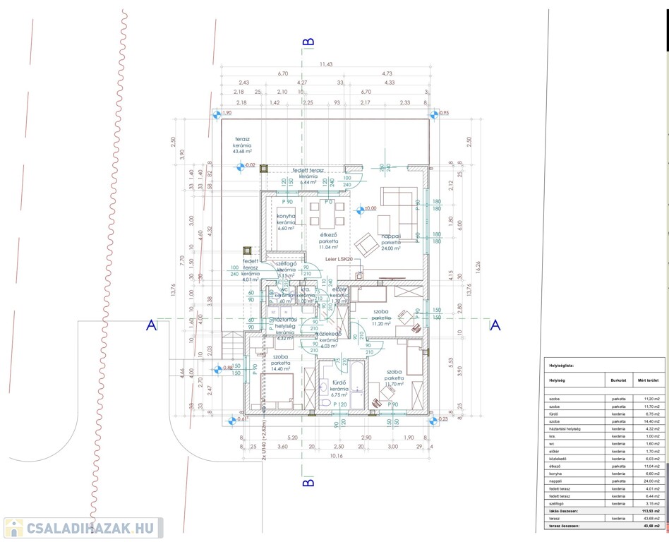
Cserszegtomajon kínálunk eladásra két különálló, egyszintes családi házat, mindegyik saját, 983 m²-es telken helyezkedik el, panorámás kilátással.
Az ingatlan főbb jellemzői
Hasznos alapterület: 114–136 m² / ház
Telek területe: 983 m² / ház
Átadás éve: 2024
Szobák száma: 3 hálószoba + nappali + étkező-konyha
Tervezés: modern, világos terek, közvetlen teraszkapcsolattal
Helyiségek elosztása: 3 különálló hálószoba, Tágas nappali panoráma ablakokkal (24 m²) és közvetlen teraszkapcsolattal, Modern konyha-étkező, Fürdőszoba és külön WC, Kamra és közlekedő, Fedett + nyitott teraszok, Két autó számára kialakított parkolóhely
Műszaki tartalom – prémium kivitelezés
Alapozás: 20 cm vastag monolit vasbeton alap
Falazat: Ytong falazat 25 cm + grafitos Austrotherm hőszigetelés
Tető: Terrán Zenit kerámia tetőcserép (antracit)
Energetikai besorolás: várhatóan AA
Nyílászárók: 3 rétegű műanyag ablakok, elektromos alumínium redőnnyel és szúnyoghálóval
Padlóburkolat: szobákban laminált padló, egyéb helyiségekben kerámia burkolat
Fűtés: padlófűtés a teljes házban (hálószobák kivételével)
Előkészítések: kandalló vagy cserépkályha, napelem és napkollektor, valamint 4 beltéri egységes multisplit klímaberendezés
Mérők: minden ház külön víz- és villanyórával
Közművek: teljesen kiépített infrastruktúra, térkövezett autóbeálló
Külső kialakítás
Teljesen körbekerített telek
Tágas teraszok és kert
Panorámás kilátás a környékre
Kialakított kocsibeállók
Lokáció
Hévíz gyógyfürdő – 1 km
Keszthely és a Balaton – 4 km
Budapest és Bécs – kb. 200 km
Igazi prémium otthon, amely ötvözi a modern technológiát, az energiatakarékosságot és a kényelmet.
Legyen szó állandó lakhelyről, nyaralóról vagy befektetésről – kiváló választás minden korosztály számára!
MEGBIZHATÓ INGATLAN - INGATLAN AZ ÉLET ÉS A MUNKA ÉRDEKÉBEN! MB23-84
További lakó- és kereskedelmi ingatlanokért tekintse meg weboldalunkat!

Családi ház részletei

Ár: 115 000 000 Ft
Méret: 136 négyzetméter
Azonosító: 11601039
Telek: 985 négyzetméter
Ingatlan állapota: Szerkezetkész
Jelleg: családi ház
Építőanyag: YTONG
Fűtés jellege: Hőszivattyú
Fűtés módja: Hőszivattyú
Komfort fokozat: Dupla komfort
Kor: Új építésű
Szintek száma: Földszintes
Egész szobák: 4
Nappalik: 1

Egyéb jellemzők

  • Csatorna
  • Terasz

Térkép


Így keressen családi házat négy egyszerű lépésben. Csupán 2 perc, kötelezettségek nélkül!

Szűkítse a családi házak
listáját
Válassza ki a megfelelő
családi házat
Írjon a hirdetőnek
Várjon a visszahívásra