Eladó családi ház Ceglédbercel 109 000 000 Ft

Leírás

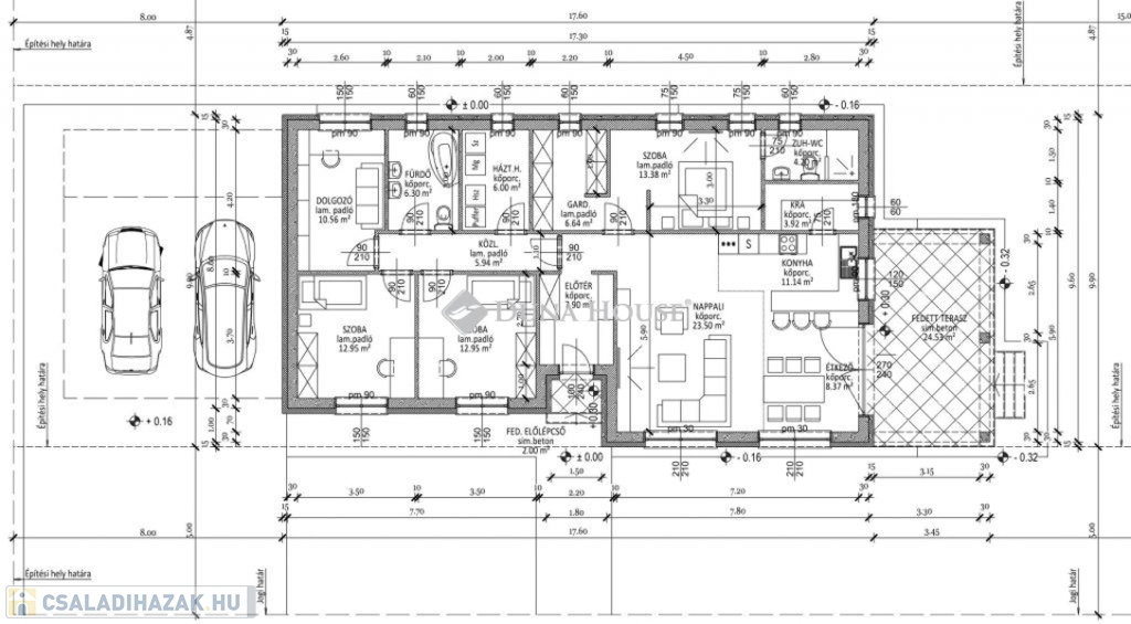
ÚJ ÉPÍTÉSŰ CSALÁDI HÁZ KULCSRAKÉSZEN Ceglédbercelen, Iskola utcában.Eladó egy 133m2-es családi ház, nappali + 4 szoba, nagy méretű, 1122 m²-es telken - az ár a telekkel együtt értendő!Ár: kulcsrakészen, terasz, konyhabútor és lámpatestek nélkülKiemelt előnyök:-ELŐFINANSZÍROZÁS lehetősége csak az elkészült ütemek után kell fizetni.-ÁRGARANCIA és kötbér vállalás a kivitelezőtől-Energiahatékony fűtés: BOSCH 3400 prémium levegő-víz hőszivattyú, vizes padlófűtéssel-3 rétegű prémium nyílászárók, választható belső burkolatok és ajtókMűszaki tartalom:Teherhordó falazat: Wienerberger Porotherm 30 N+FHomlokzati hőszigetelés: 15 cmTetőhéjazat választható: Leier Toscana tetőcserép választható színbenKülső nyílászárók: 3 réteg üvegezésű, kívül antracit, belül fehér prémium Gealan S8000 külső nyílászárók, 36 mm-es üvegezéssel + antracit, alumínium redőnyök + antracit műkő párkányVálaszfal: Wienerberger Porotherm 10 tégla válaszfalBejárati ajtó választható: Colorplast standard betéttelTeraszajtó: Dupla szárnyasBeltéri ajtó: Borovi Szicília (dekorfóliás) választható színbenHidegburkolat választható: 6.500 Ft / m2Melegburkolat választható: 6.000 Ft / m2Szaniterek választható: (kád, zuhanykabin, csaptelep stb.) 460.000Ft-igGépészet: Bosch 3400 levegő-víz hőszivattyú vizes padlófűtésselAz ár kulcsrakész állapotban történő átadással értendő, konyhabútor és lámpatestek nélkül!Közművek:Gáz: nincsVillany: ingatlanbanCsatorna: ingatlanbanVíz: ingatlanban

Referencia szám: HZ043474

Családi ház részletei

Ár: 109 000 000 Ft
Méret: 133 négyzetméter
Azonosító: 11587428
Irodai azonosító: HZ043474-5109040
Telek: 1122 négyzetméter
Ingatlan állapota: Épülő
Jelleg: családi ház
Építőanyag: Tégla
Fűtés jellege: Villany
Fűtés módja: Hőszivattyú
Kor: Új építésű
Szintek száma: Földszintes
Egész szobák: 5

Térkép


Így keressen családi házat négy egyszerű lépésben. Csupán 2 perc, kötelezettségek nélkül!

Szűkítse a családi házak
listáját
Válassza ki a megfelelő
családi házat
Írjon a hirdetőnek
Várjon a visszahívásra