Eladó családi ház Cegléd 44 900 000 Ft

Leírás

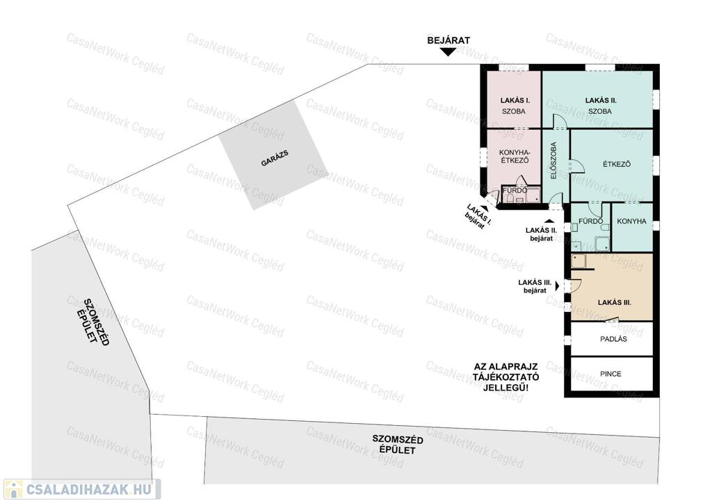
A Casanetwork Cegléd megvételre kínálja a 174602155 számú többgenerációs LAKÓHÁZAT Cegléden!

Az ingatlan főbb jellemzői:

  • A ház az 1960 as években , vegyes falazattal rendelkezik. 
  • Az ingatlan fűtését gázkazán biztosítja ,  a meleg víz ellátás bojlerrel megoldott.
  • telek terület öszesen:  719  m2
  • lakótér hasznos területe: 129 m2 - 3 lakrészből tevődik össze
  • tetőfedés anyaga: cserép

Közmű: 

  • -villany / 230 V /
  • -éjszakai áram
  • -gáz
  • -vezetékes víz
  • -szennyvíz elvezetés: csatorna

Az ingatlanban 2025. tavaszán gázfűtés korszerűsítés történt . Található a telken egy 16 m2-es pince , illetve egy autónak helyet adó garázs. Az ingatlan jelenleg három külön bejáratú lakrészből áll . Jelenleg mind a három lakrész albérletként funkciónál , ezért befektetésnek is kiválóan alkalmas ingatlanról van szó. 

Megtekintése előre egyeztetett időpontban lehetséges!

Az ingatlan per-és tehermentes, egy tulajdonossal rendelkezik, a Fix 3%-os program is igénybe vehető.

Amennyiben a 174602155 számú A CASANETWORK CEGLÉD által kínált ELADÓ CSALÁDI HÁZ felkeltette érdeklődését, várom hívását a megadott telefonszámon!

/A hirdetésben szereplő információk a megbízótól kapott adatok alapján készültek, pontosságukért felelősséget nem vállalunk!/

Kollégám díjmentes, bank semleges hitel-ügyintézéssel áll rendelkezésre.

CASANETWORK - Ingatlanban otthon vagyunk!

Családi ház részletei

Ár: 44 900 000 Ft
Méret: 129 négyzetméter
Azonosító: 11574934
Irodai azonosító: 174602155
Telek: 719 négyzetméter
Ingatlan állapota: Átlagos
Jelleg: családi ház
Építőanyag: Vegyes
Komfort fokozat: Összkomfort
Bútorozott: Részben bútorozott
Egész szobák: 3

Így keressen családi házat négy egyszerű lépésben. Csupán 2 perc, kötelezettségek nélkül!

Szűkítse a családi házak
listáját
Válassza ki a megfelelő
családi házat
Írjon a hirdetőnek
Várjon a visszahívásra