Eladó családi ház Cegléd 146 800 000 Ft

Leírás

Otthonok és megoldások!

Exkluzív ajánlat Cegléden: zéró rezsi, prémium minőségben felújított nagypolgári, kúria jellegű családi ház eladó kizárólag a GDN kínálatában!

Eladásra kínálunk Cegléden, a vasútállomás közelében, egy kifejezetten csendes, kertvárosi övezetben elhelyezkedő, kúria jellegű, nagypolgári családi házat. Az ingatlan az 1950-es évek eleganciáját ötvözi a legmodernebb energetikai és műszaki megoldásaival.

Ez az otthon azoknak szól, akik nem kötnek kompromisszumot a stílus és a gazdaságos fenntarthatóság között.

Főbb paraméterek:

Telek mérete: 709 m²

Bruttó épület méret: 170 m²

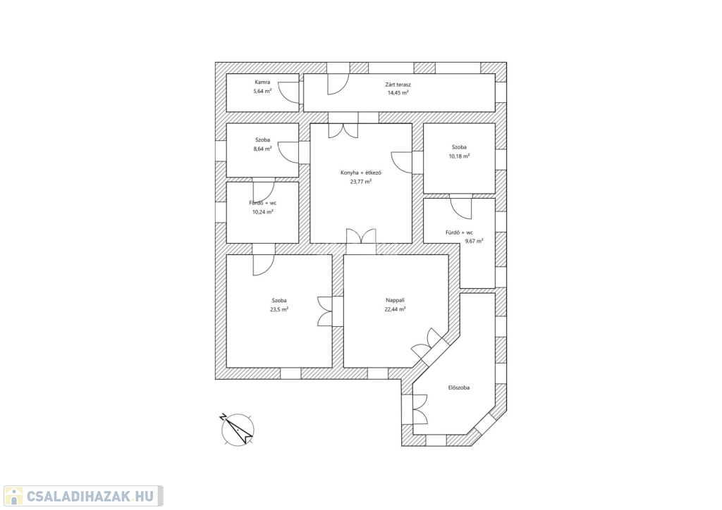
Lakótér: 127 m²

Elrendezés: Tágas nappali + 3 szoba, 2 fürdőszoba

Műszaki tartalom és felújítás (2023): Az ingatlan teljeskörű, mindenre kiterjedő felújításon esett át, melynek köszönhetően a rezsiköltség a vízdíjon kívül gyakorlatilag 0 Ft!

Szigetelés: 50 cm-es falvastagság külső 5 cm-es kőzetgyapot hőszigeteléssel kiegészítve, valamint 20 cm-es kőzetgyapot födémszigetelés.

Nyílászárók: cserélt, hőszigetelt fa nyílászárók, elektromos alumínium redőnyökkel szerelve.

Energetika: 8 kW-os napelemrendszer, akkumulátorral bővíthető inverterrel, 3x16 Amper elektromos hálózat.

Gépészet: teljesen új víz-, villany- és fűtésrendszer. A fűtésről és melegvízről hőszivattyú és gázkazán gondoskodik, egy melegvíztárolóval kiegészítve. A hőleadás radiátorokkal és padlófűtéssel történik. Kiegészítésként egy 5,3 kW-os hűtő-fűtő inverteres klíma is beépítésre került. A modern gépészet további részét képezi egy vízlágyító berendezés is. Az ingatlan A+++ energetikával rendelkezik.

Biztonság és kényelem: kiépített riasztó- és kamerarendszer védi az otthont. Elektromos kapu szolgálja a további kényelmet.

Az épület alatt 14 m²-es száraz pince található.

A kertben automata öntözőrendszer lett telepítve.

Parkolás: 22 m²-es, beton alapon tégla falazatú önálló garázs

Melléképületek: két részből álló, összesen 17 m²-es épületegyüttes, amely fűtéssel és vizesblokkal is ellátott – ideális lehet otthoni irodának, műhelynek vagy vendégháznak is.

Lehetőségek: Az ingatlan tetőtere beépíthető, melyhez a tulajdonos kész tervekkel rendelkezik, így a lakótér igény esetén tovább bővíthető.

Ha egy patinás, mégis új építésű minőséggel vetekedő, rendkívül alacsony fenntartású otthont keres kiváló közlekedés mellett, ez az ajánlat Önnek szól!

Várom megtisztelő hívását a hét bármely napján!

Családi ház részletei

Ár: 146 800 000 Ft
Méret: 127 négyzetméter
Azonosító: 11609992
Irodai azonosító: 390493
Cím: belvároshoz közel
Telek: 709 négyzetméter
Ingatlan állapota: Felújított
Jelleg: családi ház
Építőanyag: Kérdezzen rá a hirdetőtől »
Fűtés jellege: Geotermikus
Fűtés módja: Hőszivattyú
Komfort fokozat: Összkomfort
Kor: 50 évesnél régebbi
Szintek száma: 1 szint
Egész szobák: 4

Egyéb jellemzők

  • Csatorna
  • Garázs
  • Pince
  • Terasz

Térkép


Így keressen családi házat négy egyszerű lépésben. Csupán 2 perc, kötelezettségek nélkül!

Szűkítse a családi házak
listáját
Válassza ki a megfelelő
családi házat
Írjon a hirdetőnek
Várjon a visszahívásra