Eladó családi ház Cák 99 000 000 Ft

Leírás

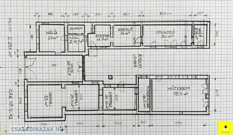
Eladó családi ház Cákon – Tágas, kétlakásos ingatlan műteremmel és egyedi jellemzőkkel

Eladó egy egyedülálló hangulatú családi ház Cák bájos településén, 250 m²-es alapterülettel, beépített tetőtérrel és különleges művészi részletekkel.
A ház kiváló szerkezeti állapotban van, tetőszerkezete Bramac cseréppel fedett, ami időtálló védelmet biztosít. A tetőtér beépített, kivéve a műterem fölötti részt, ahol nyitott, látványos fedélszék emeli ki a belső tér esztétikumát és tágas érzetét. Az épület egy része alatt pince található, amely kiváló lehetőséget nyújt tárolásra vagy akár borospince kialakítására is.
Az ingatlan Cákon található, a Kőszegi-hegység oldalában, gyönyörű természeti környezetben. A csendes, nyugodt falu tiszta levegője és békés hangulata ideális választás azok számára, akik nyugalomra vágynak, ugyanakkor fontos számukra Kőszeg és Szombathely közelsége.
A ház két különálló, de harmonikusan kapcsolódó egységből áll, amelyek akár külön is használhatók:
• A bal oldali lakótér egy tágas dolgozószobát, két hálószobát, egy konyhát, étkezőt, fürdőszobát és közlekedőt foglal magában.
• A jobb oldali szárnyban egy 58 m²-es műterem, egy 57 m²-es nappali, egy hálószoba és egy fürdőszoba található. A műterem különösen ideális művészeknek vagy kreatív tevékenységhez. Az épület egyik igazi különlegessége a festett kazettás mennyezet, amely egyedi, művészi hangulatot áraszt.
A két épületrészt egy hatalmas, zárt kapualj köti össze, amely nemcsak karakteres térkapcsolatot teremt, hanem több autó kényelmes és biztonságos parkolását is lehetővé teszi. A kapualj fölötti tetőtér szintén beépített, így további hasznos élettérként szolgál.
A ház egy zárt, intim udvart ölel körbe, amely biztosítja a teljes nyugalmat és privát szférát. Két jó állapotú fatároló is rendelkezésre áll, amelyek praktikus megoldást nyújtanak a tárolásra.

Családi ház részletei

Ár: 99 000 000 Ft
Méret: 250 négyzetméter
Azonosító: 11614925
Cím: Eladó családi ház Cákon – Tágas, kétlakásos ingatlan műteremmel és egyedi jellemzőkkel
Telek: 1000 négyzetméter
Ingatlan állapota: Kérdezzen rá a hirdetőtől »
Jelleg: családi ház
Építőanyag: Kérdezzen rá a hirdetőtől »
Fűtés jellege: Cirkó
Egész szobák: 5

Egyéb jellemzők

  • Csatorna
  • Garázs
  • Kábel TV
  • Melléképület
  • Parketta
  • Pince
  • Terasz

Így keressen családi házat négy egyszerű lépésben. Csupán 2 perc, kötelezettségek nélkül!

Szűkítse a családi házak
listáját
Válassza ki a megfelelő
családi házat
Írjon a hirdetőnek
Várjon a visszahívásra