Eladó családi ház Budapest XXIII. ker, Soroksár, 150 000 000 Ft

Leírás

Új városrészt építünk!

FOGLALJA LE MOST ÁLMAI OTTHONÁT AKÁR 1.000.000.- FT ÖNERŐVEL!!!!!

SOROKSÁR LEGNAGYOBB LAKÓPARK PROJEKTJÉBEN, A VIRÁGVÖLGY LAKÓPARKBAN BERUHÁZÓI ÉRTÉKESÍTÉS KERETÉBEN KÍNÁLJUK ELADÁSRA ÚJ ÉPÍTÉSŰ KÜLÖN ÁLLÓ ÉS IKERHÁZI LAKÁSAINKAT.
KIEMELKEDŐ MŰSZAKI TARTALOM ÉS MINŐSÉG JELLEMZI INGATLANAINKAT.

- CSOK PLUSZ minden ingatlanunkra igényelhető
- Babaváró kölcsön intézésében segítünk

A Virágvölgy Lakópark modern megjelenésű, a mai kornak minden szempontból megfelelő fiatalos épületeivel, valamint új és igényes épített környezettel várja leendő tulajdonosait.

A több ütemben megvalósuló beruházás minden ingatlanhoz tartozik saját használatú kert, mely tökéletesen alkalmas baráti, családi összejöveteleken történő grillezésre, a gyermekeknek biztonságos játékra, vagy a család nyugodt pihenésére.

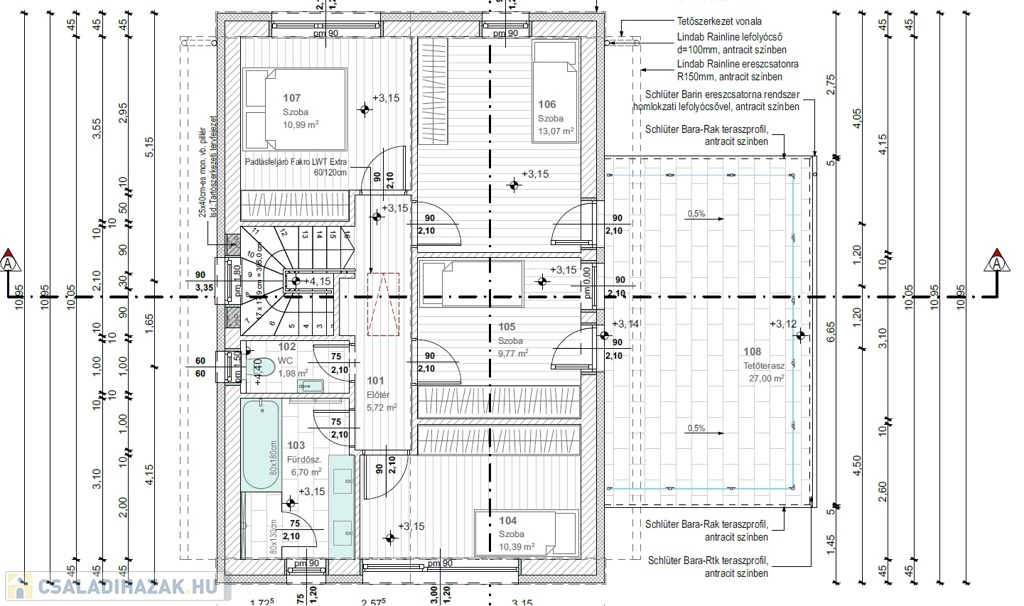
Az új építésű ingatlan rendelkezik egy 21,21 m2 garázzsal.

Az ingatlanok földszintjén az aktív időtöltést, családi együttlétet szolgáló helyiségek, az emeleten pedig a pihenést szolgáló hálók kaptak helyet, így ezek jól elkülönülnek egymástól, ezzel még inkább emelve az egyébként is magas komfortérzetet.

PRÉMIUM MINŐSÉG, KEDVEZŐ ÁR!!

RÉSZLETESEBB INFORMÁCIÓÉRT HÍVJON MINKET BIZALOMMAL A HÉT MINDEN NAPJÁN!

Családi ház részletei

Ár: 150 000 000 Ft
Méret: 135 négyzetméter
Azonosító: 11163942
Városrész: Soroksár
Telek: 605 négyzetméter
Ingatlan állapota: Kérdezzen rá a hirdetőtől »
Jelleg: családi ház
Építőanyag: Tégla
Fűtés jellege: Hőszivattyú
Fűtés módja: Hőszivattyú
Komfort fokozat: Dupla komfort
Kor: Új építésű
Szintek száma: 2 szint
Egész szobák: 4
Fél szobák: 1

Egyéb jellemzők

  • Csatorna
  • Garázs
  • Padlás
  • Terasz

Térkép


Így keressen családi házat négy egyszerű lépésben. Csupán 2 perc, kötelezettségek nélkül!

Szűkítse a családi házak
listáját
Válassza ki a megfelelő
családi házat
Írjon a hirdetőnek
Várjon a visszahívásra