Eladó családi ház Budapest XXIII. ker 149 000 000 Ft

Leírás

Csökkentettük az árat!

Megvételre kínálunk Soroksár frekventált részén egy önálló családi házat, ami két generációnak is alkalmas, vagy társasházzá alakítható.

A hátsó épület még befejezésre vár, ami kétszintes, szintenként 56 m2. Az alsó szintet akár garázsnak vagy üzlethelyiségnek is ki lehet alakítani.

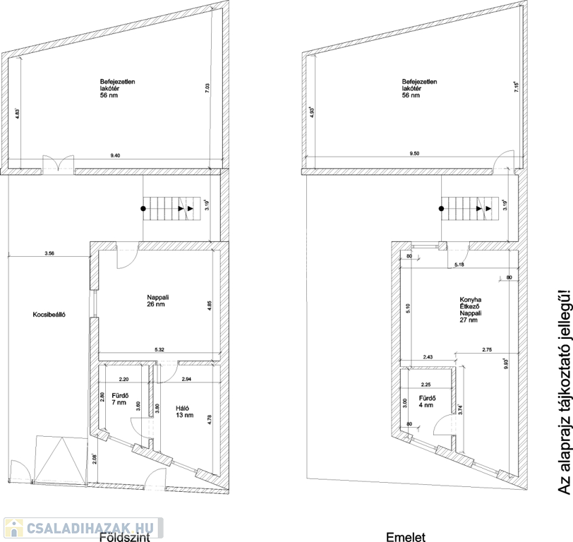
Az ingatlan beosztása:

Földszint: 46 m2
- nappali-konyha 26 m2
- fürdő 7 m2
- szoba 13 m2

Tetőtér: 31 m2
- nappali-konyha 27 m2
- fürdő 4 m2

Felszereltség:
- elektromos kapu
- elektromos redőnyök
- hűtő-fűtő klíma
- műanyag nyílászárók

Az udvarban 1 autó beállásra van lehetőség, további autóval közterületen megoldott a parkolás.

Amivel segítjük az Ön ingatlanvásárlását:
- ingyenes hitelügyintézés,
- jogi háttér,
- földhivatali ügyintézés,
- energetikai tanúsítvány.

Irodánk 30 éves szakmai tapasztalattal áll ügyfelei rendelkezésére!
Várom szíves megkeresését.

Családi ház részletei

Ár: 149 000 000 Ft
Méret: 185 négyzetméter
Azonosító: 11537734
Irodai azonosító: 382863
Cím: Soroksár
Telek: 217 négyzetméter
Ingatlan állapota: Kitűnő
Jelleg: családi ház
Építőanyag: Tégla
Fűtés jellege: Cirkó
Fűtés módja: Gáz
Komfort fokozat: Dupla komfort
Kor: 6-10 éves
Szintek száma: Földszintes
Egész szobák: 5

Egyéb jellemzők

  • Csatorna
  • Garázs
  • Pince
  • Terasz

Térkép


Így keressen családi házat négy egyszerű lépésben. Csupán 2 perc, kötelezettségek nélkül!

Szűkítse a családi házak
listáját
Válassza ki a megfelelő
családi házat
Írjon a hirdetőnek
Várjon a visszahívásra