Eladó családi ház Budapest XXIII. ker 104 000 000 Ft

Leírás


Első lakásvásárlóknak is, FIX 3%-os kamatozással!



Budapest XXIII kerületében  újonnan épülő , IKERHÁZ eladó, igényes, számtalan referenciával rendelkező kivitelezőtől.

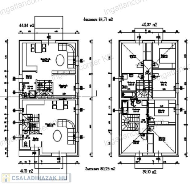
Az ingatlan első lakása alapterülete 86 m2 +5 m2 erkély, telekméret 205 m2 104 M Ft.





Főbb jellemzői:



-Amerikai konyhás nappali + 3 hálószobás kialakítás

-fürdőszoba WC-vel + külön WC, mosdó

206 m2 saját telek





Műszaki adatok:



-30 N+F Porotherm tégla 10 cm homlokzati hőszigetelés

- 20 cm födémszigetelés

- Ytong válaszfal

- Bramac cserép

- 6 000 Ft. m2 hideg/meleg burkolat válaszható

- választható szaniterek

- HŐSSZIVATTYÚS fűtésrendszer, padlófűtés hőleadással



Igényes, gondos kivitelezés, rengeteg referenciával!

Érdemes megtekinteni! Ne maradjon le róla!



Az ingatlan céges kivitelezésben került megépítésre.





Átadási időpont: 2026.nyár vége

Éljen az első lakásvásárlói FIX 3%-os hitel, CSOK , CSOK PLUSZ szabályok adta lehetőségeivel. Hitel ügyintézéssel kapcsolatosan is rendelkezésére állunk.

Budapest központja több irányból is megközelíthető és kb. 15 perc alatt elérhető.

A Hévmegálló és üzletek közelben találhatóak.

Az irodánk teljes körű ügyintézéssel áll a vevők rendelkezésére! Az adásvételi szerződés megkötéséhez igény szerint megbízható ügyvédi közreműködést biztosítunk és Bank semleges hitel ügyintézőnk is igény szerint rendelkezésére áll.



Várom hívását, NE maradjon le róla!

Családi ház részletei

Ár: 104 000 000 Ft
Méret: 86 négyzetméter
Azonosító: 11562684
Irodai azonosító: 107002937
Cím: Elvira utca
Telek: 205 négyzetméter
Ingatlan állapota: Kitűnő
Jelleg: ikerház
Építőanyag: Tégla
Komfort fokozat: Összkomfort
Kor: Új építésű
Egész szobák: 4

Így keressen családi házat négy egyszerű lépésben. Csupán 2 perc, kötelezettségek nélkül!

Szűkítse a családi házak
listáját
Válassza ki a megfelelő
családi házat
Írjon a hirdetőnek
Várjon a visszahívásra