Eladó családi ház Budapest XXII. ker 315 130 000 Ft

Leírás


Zöld energia luxus otthona Budafok szívében – hőszivattyúval és szigetüzemű napelem rendszerrel



Élje át a jövőt a fenntarthatóság és exkluzivitás jegyében!



Üdvözöljük Budafok egyik legkívánatosabb környékén, ahol a modern dizájn, az okos technológia és a zöld energia találkozik egymással. Az A+++ energetikai besorolású ikerházak nem csak stílusosak, de környezettudatosak is, így nem kell választania a kényelem és a fenntarthatóság között. Képzeljen el egy otthont, ahol alacsony rezsiköltségek és intelligens megoldások biztosítják a jövő kényelmét!



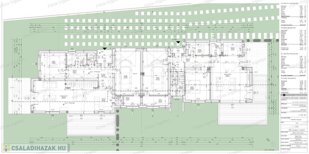
Exkluzív, új építésű kétszintes házak garázzsal, beállóval, különálló kerttel.



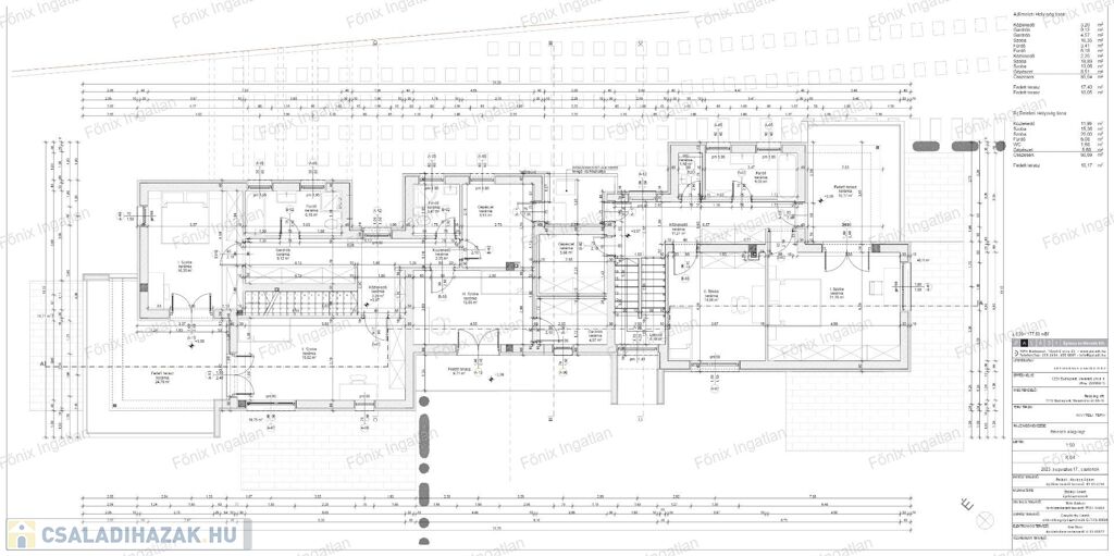
-„A” épület – 4 szoba:

Hasznos alapterület: 166 m²

Földszinti terasz: 40 m²

Emeleti fedett terasz: 10 m² 



-„B” épület – 5 szoba:

Hasznos alapterület: 192 m²

Földszinti terasz: 35 m²

Emeleti fedett terasz: 35 m²



High-tech felszereltség és luxus kivitelezés

-Pergolás teraszok: lamellás alumínium nyitható pergola - tökéletes árnyékolás és elegancia.

-Teljes árnyékolás: távirányítós rendszer, antracit szürke alumínium redőnyök és szúnyoghálók minden  nyílászárón.

-Energiahatékony hűtés-fűtés: levegő-hőszivattyús mennyezeti hűtés-fűtés.

-Friss levegő: hővisszanyerős szellőztető rendszer minden lakásban.



 Okos megoldások – komfort és biztonság egyben

-Mozgás- és nyitásérzékelős riasztórendszer.

-Okos otthon kezelőpanel, érintős Smart Hugo villanykapcsolók.

-Esővízgyűjtő rendszer (40 m3), automata öntöző és robot fűnyíró.

-Központi vízlágyító és éjszakai okos fényrendszer.



Minimális rezsi - maximális fenntarthatóság



Az otthonok kiváló energetikai hatékonysággal rendelkeznek, a szigetüzemű napelemrendszer révén közel nulla villamosenergia-költséggel üzemelnek.

A lakás modern rendszertechnológiájának köszönhetően a bejövő, és kimenő vízhasználat nem generál magas üzemeltetési költséget, így ennek és a közel nulla villamosenergiának köszönhetően, rendkívül alacsonyak a lakások fenntartási költségei.

 

Kiváló közlekedési kapcsolatok: Az ingatlan közelében több főút és közlekedési lehetőség található, mint buszmegállók, vasútállomások, autópályák (M0, M1, M7), és a 4-es metró, amelyek gyors elérést biztosítanak a főváros különböző részeire és a Balatonra is.

 

Szolgáltatások közelsége: Számos mindennapi szolgáltatás, mint boltok (Lidl, Tesco), bevásárlóközpontok (Savoya Park, Etele Pláza, Campona), oktatási intézmények, orvosi rendelő és 0-24 órás patika, fitness terem stb. elérhetők a közelben, akár autóval, akár tömegközlekedéssel.

 

Szórakozási lehetőségek: A közelben számos kikapcsolódási lehetőség van, mint a bevásárlóközpontok, uszoda, valamint a Duna partján található szabadtéri helyek (Kopaszi-gát, DunaFok Szabadidőpark).

 

Ez nem csak egy ház, hanem egy új életstílus.



Ha egy olyan otthont keres, amely nem csak fenntartható, de elegáns is, vegye fel velünk a kapcsolatot!

Ez egy olyan ingatlan, amely azok számára vonzó, akik szeretnének közel lenni a fővároshoz, de egy nyugodt, zöld környezetben élni, távol a város zajától. Kiváló lehetőség befektetésre is.



Műszaki leírás és projekt dokumentáció elérhető személyes megbeszélés keretében.

 

Családi ház részletei

Ár: 315 130 000 Ft
Méret: 227 négyzetméter
Azonosító: 11490145
Irodai azonosító: 705100198
Telek: 1215 négyzetméter
Ingatlan állapota: Átlagos
Jelleg: házrész
Építőanyag: Tégla
Komfort fokozat: Luxus komfort
Egész szobák: 5

Így keressen családi házat négy egyszerű lépésben. Csupán 2 perc, kötelezettségek nélkül!

Szűkítse a családi házak
listáját
Válassza ki a megfelelő
családi házat
Írjon a hirdetőnek
Várjon a visszahívásra