Eladó családi ház Budapest XXII. ker 175 000 000 Ft

Leírás

A HÁTSÓ LAKÁS MÁR ELKELT!

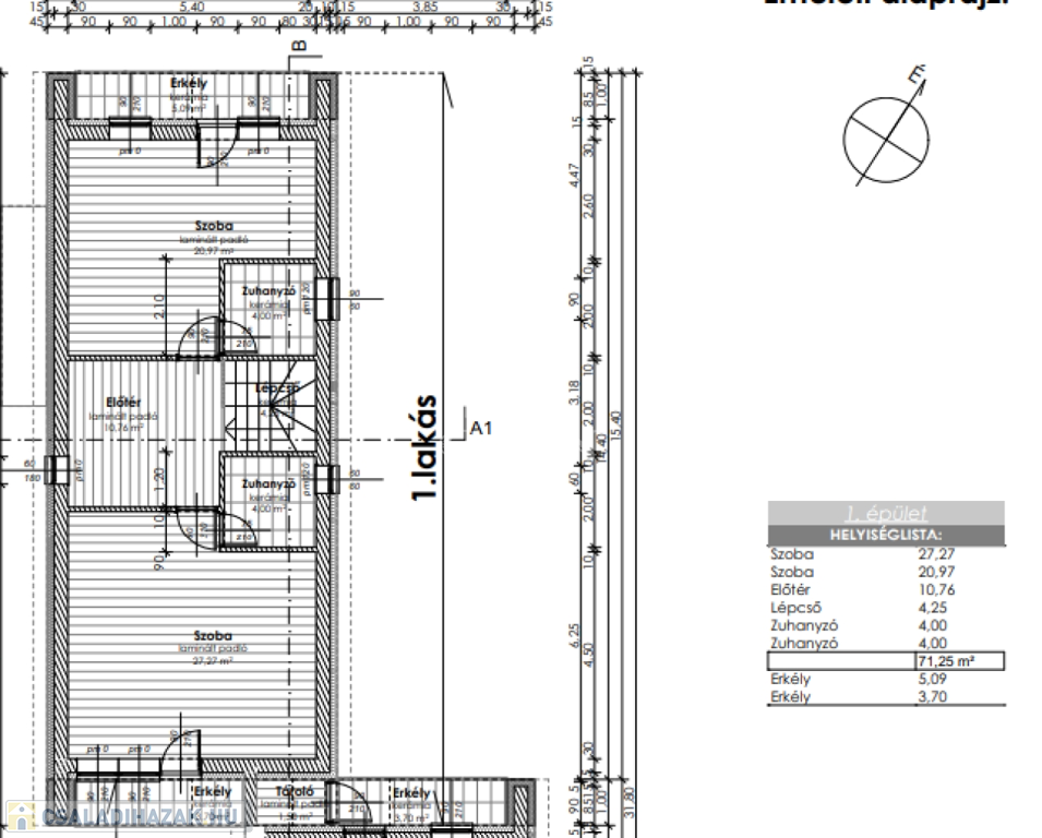
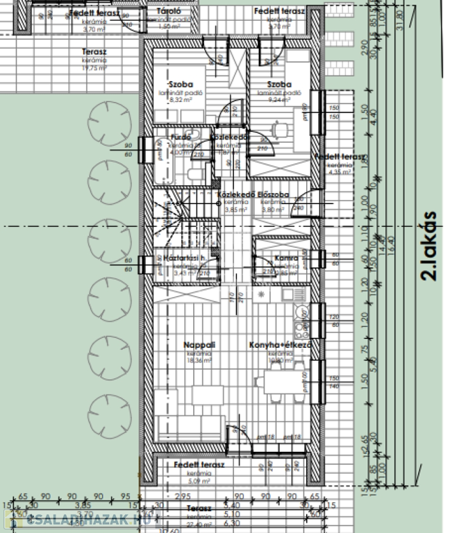
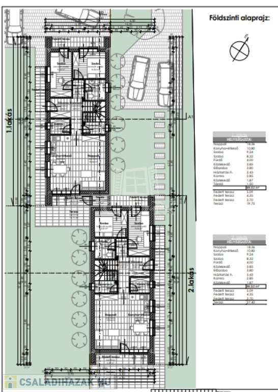
Budapest XXII. kerület kedvelt kertvárosi részén, Budatéténynél eladó egy most indult ikerházas építkezés első és hátsó lakása.

A lakásokhoz gépkocsi beálló és 500 m2-es kertrész tartozik.
Várható befejezés: 2026. január hó

Az első lakás ára 175 millió forint, lakótér alapterülete ~140 m2, terasz 28 m2, erkély 9 m2.
Második lakás ára 175 millió forint, lakótér alapterülete ~ 144 m2, terasz 20 m2, erkély 9 m2.

Fontos tudni, hogy az összeépítésnél a 2 lakás fala csak tárolón keresztül érintkezik!

Fűtés hőszivattyúval, padlófűtéssel történik.

Amennyiben bővebb információt szeretne a lakások műszaki paramétereiről, kérem keressen a megadott számon, akár hétvégén is!

INGYENES hitel tanácsadás, CSOK Plusz ügyintézés!
BANKFÜGGETLEN hitelcentrumunk az összes elérhető bank és hitelintézet ajánlatát versenyezteti az Ön kedvéért, ráadásul DÍJMENTESEN.

- Egyedi, bankfiókban nem elérhető kamat- és díjkedvezmények
- Hitelképesség vizsgálat
- Idő, energia és pénz megtakarítás
- Teljes hivatali ügyintézés

Amennyiben hirdetésem felkeltette az érdeklődését vagy egyéb információra van szüksége hívjon bizalommal!

Családi ház részletei

Ár: 175 000 000 Ft
Méret: 140 négyzetméter
Azonosító: 11547360
Irodai azonosító: 384277
Cím: Budatétény modern ikerház
Telek: 500 négyzetméter
Ingatlan állapota: Kitűnő
Jelleg: ikerház
Építőanyag: Tégla
Fűtés jellege: Geotermikus
Fűtés módja: Hőszivattyú
Komfort fokozat: Dupla komfort
Kor: Új építésű
Szintek száma: 1 szint
Egész szobák: 5

Egyéb jellemzők

  • Csatorna
  • Garázs
  • Pince
  • Terasz

Térkép


Így keressen családi házat négy egyszerű lépésben. Csupán 2 perc, kötelezettségek nélkül!

Szűkítse a családi házak
listáját
Válassza ki a megfelelő
családi házat
Írjon a hirdetőnek
Várjon a visszahívásra