Eladó családi ház Budapest XXII. ker 169 000 000 Ft

Leírás

BUDAFOK-NAGYTÉTÉNY KÜLÖNLEGES LOKÁCIÓJÁBAN, EGY KEDVES , ÚJ ÉPÍTÉSŰ INGATLANOKKAL TELI, PANORÁMÁS ZSÁKUTCÁBAN ELADÓ EGY NETTÓ 120 NÉGYZETMÉTERES IKERFÉL, SAJÁT SZEPARÁLT KERTTEL,TÖBB, MINT 600 NM-ES TELKEN, ÖNÁLLÓ GARÁZZSAL, ÉS 2-3 AUTÓNAK ELEGENDŐ FELSZÍNI BEÁLLÓVAL ÉS 80 NÉGYZETMÉTER PADLÁSSAL, MELY A JÖVŐBEN TOVÁBB GONDOLHATÓ*****

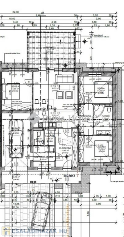
Az ingatlan 120 négyzetméter. 3 hálóval rendelkezik! Teraszon keresztül kertkapcsolatos. Van garázs, onnan megközelíthető a lakrész egy háztartási helyen keresztül.Elosztást az alaprajzon látja!A kert szeparált, szép tágas és panorámás!Az épület Viablokkal épül - Viablokk a Viastein Kft. által gyártott, modern pórusbeton falazóelem, amely természetes alapanyagokból (kvarchomok, mész, cement és víz) készül. Kiváló hőszigetelő képessége, könnyű súlya és precíz méretpontossága miatt a hazai építőiparban az Ytong egyik legnépszerűbb alternatívájává vált.Fa könnyűszerkezetes tetőszerkezetet kap, cserépborítással. 80 négyzetméter padlástér kialakítva tárolásra. A jövőben esetleg további bővítésre.Fűtés: hőszivattyú - padlófűtés, fürdőben törülközőszárító radiátor.Hűtés: klíma.A környék BKK-val is jól megközelíthető. A lokáció különleges atmoszférát nyújt az ott lakóknak. Nagytétény Rózsadomjának is nevezhetjük.Átadás 2026 Q4.Keressen bizalommal!

Referencia szám: HZ094956

Családi ház részletei

Ár: 169 000 000 Ft
Méret: 120 négyzetméter
Azonosító: 11606550
Irodai azonosító: HZ094956-5176487
Cím: 120 nm-es ház eladó Budapest 22. ker.
Telek: 620 négyzetméter
Ingatlan állapota: Épülő
Jelleg: ikerház
Építőanyag: Kérdezzen rá a hirdetőtől »
Fűtés jellege: Villany
Fűtés módja: Hőszivattyú
Kor: Új építésű
Szintek száma: Földszintes
Egész szobák: 4

Térkép


Így keressen családi házat négy egyszerű lépésben. Csupán 2 perc, kötelezettségek nélkül!

Szűkítse a családi házak
listáját
Válassza ki a megfelelő
családi házat
Írjon a hirdetőnek
Várjon a visszahívásra