Eladó családi ház Budapest XXII. ker 165 000 000 Ft

Leírás

Kedves Ingatlankereső!

Ez a most épülő új építésű IKER-ház KERESI tulajdonosát!!

TÖKÉLETES VÁLASZTÁS A NAGYVÁROSOK ZAJÁTÓL TÁVOLI, ENERGIAHATÉKONY ÁLOMOTTHONT KERESŐK SZÁMÁRA!

Szeretné meglepni szeretteit vagy biztonságban tudni a pénzét?

Akkor ha ön is így gondolja ajánlanám ezt az ingatlant!!

JÖJJENEK, NÉZZENEK KÖRÜL, HOGYAN IS ALAKÍTANÁK KI AZ ÖNÖK IGÉNYEI SZERINT SZÉP OTTHONNÁ!!

Kérem hívjon, találkozzunk a helyszínen, hogy körbesétálhassunk a nyugodt , szép környezetben megépülő ingatlant, alakítsuk ki együtt az Ön és kedves családja szép új otthonát :)

Az energiahatékonyság jegyében HŐSZIVATTYÚ rendszert alkalmaztunk, mely nagyon ENERGIATAKARÉKOS FELHASZNÁLÁST tesz lehetővé.

A kivitelező törekszik arra,hogy magas minőségű,egyedi kivitelezésű ingatlant alkosson ezen a nem mindennapi környéken!!

A ház – csakúgy, mint a kivitelező számtalan, megtekinthető referencia háza esetében is – magas minőségi anyagok felhasználásával és magas műszaki tartalommal épül.

A házat ajánljuk családosoknak, hiszen itt minden az Állam adta kedvezményt, lehetőséget kihasználhatnak, legyen az Babaváró, CSOK támogatás és hitel is!

Miért ne venné igénybe az Állam adta támogatásokat, lehetőségeket? Döntsön okosan, használja ki amíg lehet!

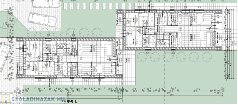
Leendő tulajdonosának lehetősége van az alaprajzon a statikát nem érintő, mozgatható válaszfalak módosítására, igénye szerint, valamint a belső burkolatok, ajtók kiválasztására, megadott értékhatárig.



Rövid műszaki leírás:
Villanyszerelési munkálatok:
Beltéri villanyszerelés:Minden helyiségben :dugalj,kapcsoló,tv csatlakozó,telefon csatlakozó
A tv és telefon csatlakozó a fürdőben nem kerül kialakításra.
1X32 amper
Szobákban 3-4 dugalj+kapcsoló
konyhában 4db ,kültéri lámpák felszerelve 4db
Vételár tartalmaz egy bejárati ajtót,továbbá minden szobához beltéri ajtót 40 ezer forint/db áron
Ablakpárkányok külső színezet bádog
Ablakpárkány belül nincs az árban
Külső nyílászárók 3 rétegű /tokpótlás nélkül/:1.0 K értékű hőszigetelt ,bukó-nyíló színes müanyag
ajtó
Bejárati ajtó több ponton záródó színes műanyag
Víz és fűtés szerelés:
Fűtés hőszivattyúval,padlófűtéssel-minden helyiségben,8kw-os Fisher
Csövezés :ötrétegű műanyag
Szaniterek :
3db-wc csésze + 3db tartály 30 ezer forint /db
1 db kismosdó + 1 db csaptelep 20 ezer /db
3db nagy mosdó + 3db csptelep 30 ezer /db

A szerelvények ,és szaniter árúk felszerelését, beüzemelését a vétel ár tartalmazza.
A fürdő és a mosókonyha tükröket ,valamint a konyhai csaptelepet az alapár NEM tartalmazza.
A vevőnek lehetősége van mindennemű szaniter árú egyéni beszerzésére az eladóval történő
előzetes egyeztetés alapján.Az eladó a leírt összeget a vevő részére kifizeti,az Eladó nevére
kiállított számla ellenében.

Festési munkálatok :
A falfelületek kétszeri gletteléssel, két réteg diszperziós falfestékkel, fehér színben történnek ,igény
szerint.
Az épület külső hőszigetelése dryvit -rendszer miatt, az első évben napi háromszori szellőztetés
szükséges.

Burkolási munkálatok:
Eladó a hidegburkolatok anyagköltségét 4500-ft/nm-ig/normál méretű lapok esetében
meleg burkolatok anyagköltségét 4500-ft/nm-ig vállalja
burkolatok a konyhában 87cm-től 147cm-ig ,60cm -es sávban kerülnek felragasztásra
A fürdőben és a wc-ben 210cm- magasságig kerül burkolásra a helyiség/vagy ahogy az egész lapok
kiadják.
Extra nagy méretü vagy kicsi lapok esetén
fel árért rakjunk
A burkolatok négyzetméter árában nincs benne a bordűrök ,és a dekor lapok ára.
Hideg burkolati helyiségek :gépészet,fürdőszoba,előszoba,nappali-konyha
Födém Vasbeton gerendás ,beton béléstestekkel/ gyapot szigetelést az alap ár nem tartalmaza
Homlokzati szigetelés 15cm-es Dryvit rendszer/nem grafitos/
● Tető :beton cserép alatta fólia
Teraszok :korláttal felszereltek,amennyiben a törvényi előírás megköveteli

Kerítés:
Utcafronti :Beton alap zsalukő lábazat+oszlopok,vakolva,színezve
Oszlopok között zártszelvényre szerelt fa lécezés,festve.
Az elektromos kapuhoz az elektronika kiépítésre kerül, viszont a motrot az ár NEM tartalmazza.
Nem utcafronti részen,illetve a házak között dróthálo

Homlokzati szín:Választható,halvány pasztell színben
Járda:70cm szélességben,az épület körül
Gk beálló:1 autónak betonozva
Kert :Durva tereprendezéssel,telek kitakarítással történik.
1db kerti csap

Extrák kérhetők felár ellenében:redőny,szúnyogháló,drágább burkolatok,viacolor,díszítések,klíma
stb.

A felek közös megállapodás és elszámolás alapján eltérhetnek jelen műszaki tartalomtól.

Ez az ingatlanok részleteiben igen gazdag elgondolás szerint lesznek megépítve. Tapasztalt a kivitelező cég, így megannyi referencia munkával igazolható, hogy a megálmodástól a megvalósításhoz vezető út nem csak egy illúzió. Az építkezés során szigorúan csak a legmagasabb minőségű anyagokat fogja a kivitelező felhasználni, hogy igazán exkluzív otthont hozzon létre.
Mindemellett számítunk az Ön igényeinek bevonásaira is, burkolatok és szaniterek és egyéb kiegészítők tekintetében.


Aki a csendre, nyugalomra vágyik a zöldövezetben, luxus környezetben szeretne élni, de fontos neki, hogy elérhető távolságra legyen a város nyüzsgése is, annak kiváló választás ez a környék.

HÍVJON FEL, KÉRJEN EGY IDŐPONTOT, JÖJJÖN, NÉZZE MEG!

Nekem ebben az ingatlanban az elhelyezkedése mellett, a formálhatósága és a benne rejlő rengeteg lehetőség tetszik a legjobban.

Ha Ön is így látja, hívjon, nézze meg, legyen az új tulajdonosa mielőbb!

Nem fogja megbánni!


Szép napot sikeres vásárlást kívánok!

Köszönöm hogy időt szánt a hirdetésemre!

Családi ház részletei

Ár: 165 000 000 Ft
Méret: 140 négyzetméter
Azonosító: 11546722
Telek: 500 négyzetméter
Ingatlan állapota: Kitűnő
Jelleg: ikerház
Építőanyag: Kérdezzen rá a hirdetőtől »
Szintek száma: 2 szint
Egész szobák: 5

Egyéb jellemzők

  • Csatorna
  • Garázs
  • Kábel TV
  • Melléképület
  • Parketta
  • Pince
  • Terasz

Így keressen családi házat négy egyszerű lépésben. Csupán 2 perc, kötelezettségek nélkül!

Szűkítse a családi házak
listáját
Válassza ki a megfelelő
családi házat
Írjon a hirdetőnek
Várjon a visszahívásra