Eladó családi ház Budapest XXII. ker 165 000 000 Ft

Leírás

CSAK AZ IRODÁNK KÍNÁLATÁBAN !!

XXII. kerület gyorsan fejlődő részén Óhegyen, családi házas környezetben kínálunk megvételre egy 120 m2-es alapterületű, 5 szobás, dupla komfortos, EGYSZINTES, ÚJÉPÍTÉSŰ ÖNÁLLÓ HÁZAT.

AZ IGÉNYESEN MEGTERVEZETT, MODERN HÁZ 490 m2-es telken épül, jelenleg 75 %-os készültségi szinten van.

AZ INGATLAN FŐBB JELLEMZŐI:

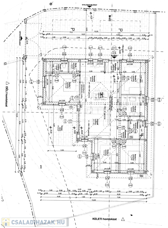
A ház helyiségeinek elrendezése nagyon praktikusan megoldott, nagy világos terekkel, egy dolgozó szobával, három hálószobával, két fürdőszobával és háztartási helyiséggel.
A közös tér nappali, konyha és étkező együtt 44 m2, innen nyíló déli fekvésű 18 m2-es terasszal kapcsolódik a kerthez.

A szülői hálószobához gardrób és külön fürdőszoba is kapcsolódik, melynek területe együtt 21 m2.

HELYISÉGEK ELRENDEZÉSÉT ÉS A MÉRETEKET LÁSD AZ ALAPRAJZON!

MŰSZAKI JELLEMZŐK "RÉSZLET":
- a szerkezet 30 cm-es YTONG téglából készült,10 cm-es külső dryvit szigeteléssel
- műanyag nyílászárók 3 rétegű üvegezéssel, nyitó, bukó, toló kivitelben, elektromosan irányítható redőnyökkel felszerelve
- 1 db hűtő-fűtő klímaberendezés
- zárófödém faszerkezet, 25 cm-es szigeteléssel
- fűtés megoldás hőszivattyúval, minden helyiségben padló fűtéssel ellátva
- H-tarifás villanyóra
- motoros távirányítós kapu
- térkövezett felszíni autó beálló és járda kialakítás

AZ INGATLAN OKOS OTTHON, ENERGIATAKARÉKOS, minimális rezsivel üzemeltethető,
Minden (fűtés, klíma, riasztó, kamera rendszer) WIFI-vel telefonon az applikáció segítségével irányítható.

A HÁZ TERVEZETT BIRTOKBA ADÁSA:
2025 szeptember 30.
AZ INGATLAN ÁRA KULCSRAKÉSZ ÁLLAPOTBAN: 165.000.000 Ft.

A környék lokációja jó, közelben iskolák, óvodák, bölcsőde, orvosi rendelő.
Az autóbusz megálló pár perc séta távolságra van.
Bevásárlási lehetőség 5-10 percen belül autóval a Campona bevásárlóközpont, ALDI, LIDL, SPAR, stb.
Az autópályák ( M0,M1,M7,M6) is könnyen elérhetőek.

További kérdéseivel kapcsolatosan várom jelentkezését.
Forduljon hozzám bizalommal!
(G.I.)

Családi ház részletei

Ár: 165 000 000 Ft
Méret: 120 négyzetméter
Azonosító: 11513400
Irodai azonosító: 380932
Cím: ÚJ, EGYSZINTES ÖNÁLLÓ HÁZ!
Telek: 490 négyzetméter
Ingatlan állapota: Kitűnő
Jelleg: családi ház
Építőanyag: Tégla
Fűtés jellege: Geotermikus
Fűtés módja: Hőszivattyú
Komfort fokozat: Dupla komfort
Kor: Új építésű
Szintek száma: Földszintes
Egész szobák: 5

Egyéb jellemzők

  • Csatorna
  • Garázs
  • Pince
  • Terasz

Térkép


Így keressen családi házat négy egyszerű lépésben. Csupán 2 perc, kötelezettségek nélkül!

Szűkítse a családi házak
listáját
Válassza ki a megfelelő
családi házat
Írjon a hirdetőnek
Várjon a visszahívásra