Eladó családi ház Budapest XXII. ker 129 900 000 Ft

Leírás


C I T Y C A R T E L

INTERNATIONAL LUXURY REAL ESTATE AGENCY

bemutatja:

 

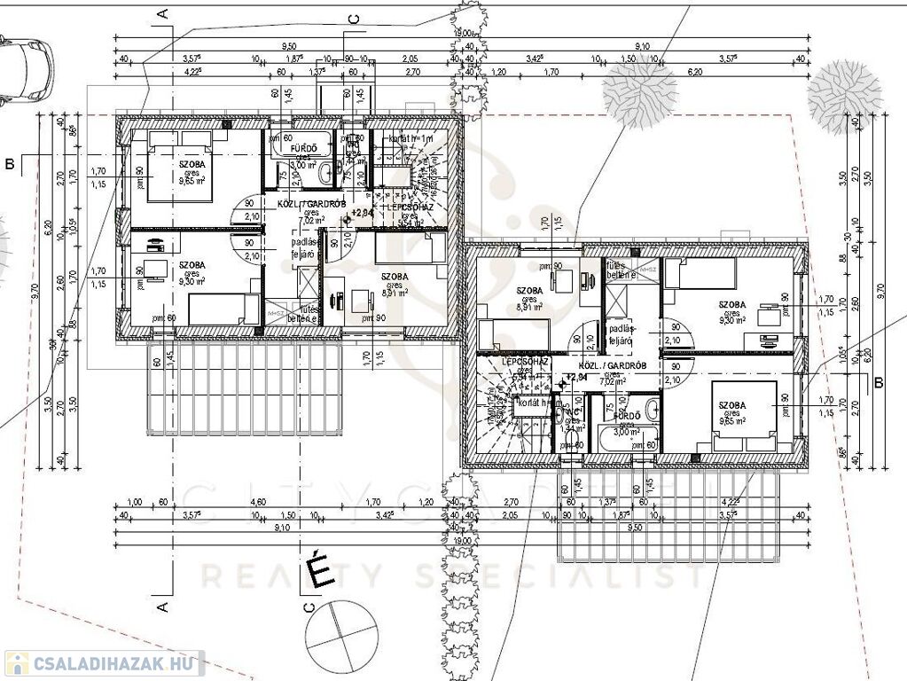
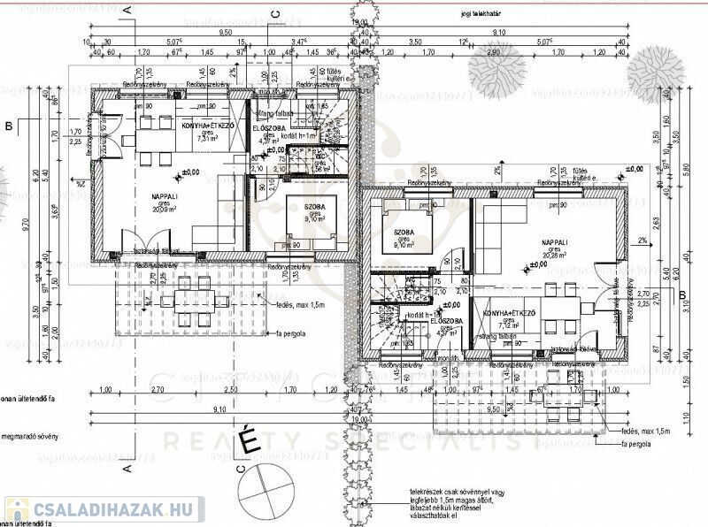
Újépítésű ikerház mindkét fele eladó Budafok csendes utcájában. A két 95 nm-es lakóterületűre tervezett ház csak részben érintkezik.

 

ÚJÉPÍTÉSŰ IKERHÁZ A 22. KERÜLETBEN!

MÁR CSAK AZ EGYIK OLDAL ELÉRHETŐ!

Újépítésű ikerház mindkét fele eladó Budafok csendes utcájában. A két 95 nm-es lakóterületűre tervezett ház csak részben érintkezik.



- Mindkét házrész 95 nm-es +7 nm-es terasszal fog rendelkezni.

- 448 m2-es és egy 345 m2-es építési telket foglal magában a projekt.

- Modern, hőszivattyús fűtés és melegvízkezelési rendszer van tervezve az ingatlanba.

- 2x2 autó kényelmesen elfér a telken belül.

- Déli tájolása miatt egész nap jól megvilágított.

- Az építtető tervei szerint padlófűtés lesz, de ez igény szerint módosítható.



____________________ÁR____________________



Kulcsrakész állapotban 129.9 millió forint a vételára.



____________________MŰSZAKI TARTALOM____________________

- A falak Wienerberger 30 n+f tégla felhasználásával készültek

- Grafitos homlokzati hőszigetelés

- Terrán tetőcserép kerül a sátortetőre

- Passzívház minősítéssel rendelkező külső nyílászárók

- Hőszivattyú

____________________A KÖRNYÉKRŐL____________________

A helyszínről 20 percre van autóval a belváros, Campona csak 5 perc, közelben ABC. M7-es és M1-es és M0 autópálya könnyen és gyorsan elérhető. Minden karnyújtásnyira található, az utca zsákutca, kizárólag azok mennek be, akik ott laknak, csendes, kertvárosi jellegű.

További kérdéseivel keressen bátran, az ingatlan megtekinthető időpont egyeztetéssel szinte bármikor!

 

Beköltözhető: szerződés kötést követően kb.: 5 hónap.

 

Jelenleg már csak az utcafronti lakás elérhető!

 

ÜDVÖZLETTEL:

Bíró Zoltán

INGATLANSZAKÉRTŐ - REALTY SPECIALIST

+3630-815-2502

BZOLTAN@CITYCARTEL.HU

 

CITY CARTEL BUDA KFT.

CITY CARTEL FRANCHISE HUNGARY KFT.

1118 BUDAPEST, HEGYALJA ÚT 54.

1026 BUDAPEST, SZILÁGYI ERZSÉBET FASOR 121.

BUDAGYÖNGYE BEVÁSÁRLÓKÖZPONT

Családi ház részletei

Ár: 129 900 000 Ft
Méret: 95 négyzetméter
Azonosító: 11569325
Irodai azonosító: 10822919
Telek: 448 négyzetméter
Ingatlan állapota: Kitűnő
Jelleg: ikerház
Építőanyag: Tégla
Komfort fokozat: Összkomfort
Kor: Új építésű
Egész szobák: 5

Így keressen családi házat négy egyszerű lépésben. Csupán 2 perc, kötelezettségek nélkül!

Szűkítse a családi házak
listáját
Válassza ki a megfelelő
családi házat
Írjon a hirdetőnek
Várjon a visszahívásra