Eladó családi ház Budapest XXII. ker 129 900 000 Ft

Leírás

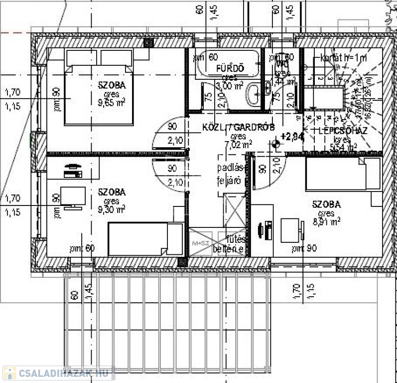
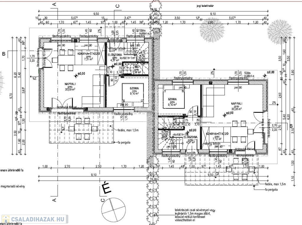
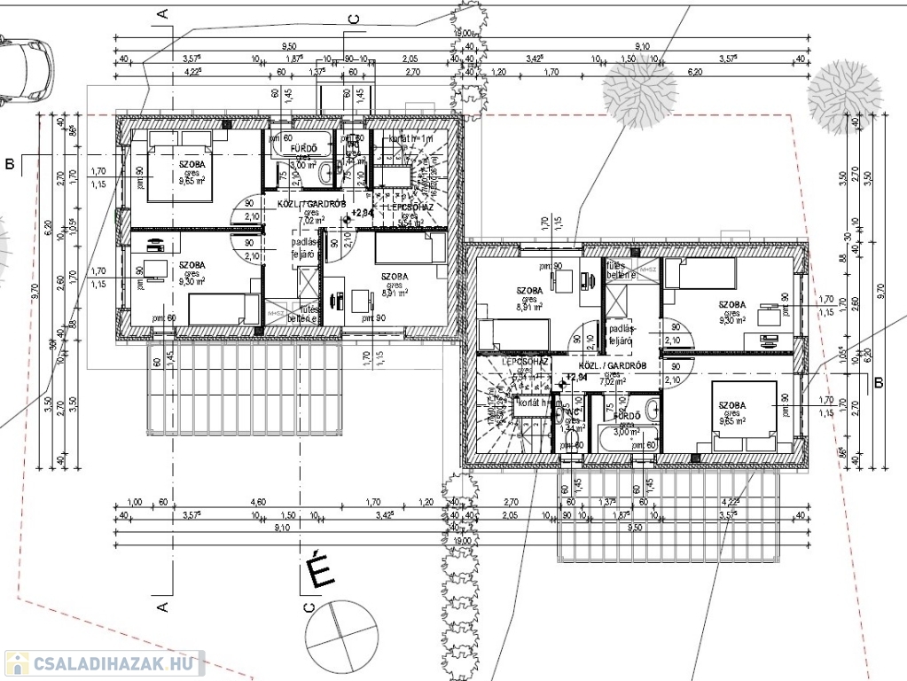
MÁR CSAK 1 LAKÁS SZABAD! XXII. kerületben Budafok-Felsővárosban kertvárosi környezetben, nettó hasznos 95,29 m² lakóterülettel rendelkező ÚJ ÉPÍTÉSŰ ikerházat kínálunk eladásra.

Az ikerház terv szerinti kialakítása alapján amerikai konyhás nappalival rendelkezik 4 db. hálószobával, de igény szerint dupla fürdőszobásra is kialakítható, így a földszinten található szoba fürdőszobára is átalakítható, ebben az esetben am. konyhás nappali + 3 db. hálószobás lenne az ingatlan.

A ház felépítése: földszint + teljes értékű emelet + 8 m² beépített fűthető padlástér (amely egy helytakarékos lépcsőn keresztül közelíthető meg).

MÉRETEK, ELRENDEZÉS, TÁJOLÁS AZ ALAPRAJZOKON LÁTHATÓ!

Igény szerinti TERASZ KIALAKÍTÁS megbeszélés tárgyát képezi.
Tájolása: D-NY-i
Tervezett átadási idő: szerződéskötéstől számítva kb. 4 hónap.

Műszaki tartalom (részlet):
-Teherhordó falak: Porotherm 30 N+F falazat
-Külső szigetelés: 10 cm Grafitos szigetelés
-Tetőhéjazat: Fő tömegeken beton cserépfedés készül v.szürke színben. Az ellenléc 5 cm. A nyári felmelegedés miatt átszellőztetve,
tetőszellőzők beépítése szükséges, rovarhálóval. Vonalmenti hófogókkal.
-Lépcső: Gipszbeton lépcső
-Külső nyílászárók: Hőszigetelő műanyag nyílászárók készülnek 3 rétegű üvegezéssel és kettős tömítéssel. Külső és belső teli üvegezett ajtók és magas ablakok üvegfelületei biztonsági fóliával kell ellátni, balesetmegelőzés miatt. Ajtóütközőkkel ellátva.
-Árnyékolás: Beépített redőnyök készülnek.

Az ikerházhoz 1 db. kocsibeállási lehetőség tartozik ( igény szerint további beállási lehetőséggel is bővíthető ), a hozzá tartozó kizárólagos használatú telekrész 344,94 m².

További nagyon részletes műszaki leírással és dokumentációkkal rendelkezem, CÉGES ÉPÍTKEZÉS, megtekinthető referencia munkákkal.

Az ingatlan ára kulcsrakész állapotban: 129,9 MFt./db.

Az ingatlan részletes ismertetése és bemutatása előre egyeztetett időpontban lehetséges, melyet nagyon rugalmasan kezelünk, akár HÉTVÉGÉN is.
További kérdéseivel kapcsolatban várom a jelentkezését.
Amennyiben Önnek a vásárláshoz szüksége lenne hitelre egyedi kedvezménnyel, CSOK PLUSZ-ra, állami támogatásokra, stb., kezdeményezheti a kapcsolatfelvételt bankfüggetlen hitelügyintézőinkkel, teljesen DÍJMENTESEN.
Közel 25 év szakmai tapasztalattal rendelkezem, eladó vagy kiadó ingatlana értékesítése vagy bérbeadása esetén, készséggel állok az Ön rendelkezésére is, keressen bizalommal.

Családi ház részletei

Ár: 129 900 000 Ft
Méret: 95 négyzetméter
Azonosító: 11359355
Irodai azonosító: 365377
Cím: Budafok, Új épít. IKERHÁZ 1. Lakás
Telek: 345 négyzetméter
Ingatlan állapota: Átlagos
Jelleg: ikerház
Építőanyag: Tégla
Fűtés jellege: Geotermikus
Fűtés módja: Hőszivattyú
Komfort fokozat: Összkomfort
Kor: Új építésű
Szintek száma: 2 szint
Egész szobák: 1
Fél szobák: 4

Egyéb jellemzők

  • Csatorna
  • Garázs
  • Pince
  • Terasz

Térkép


Így keressen családi házat négy egyszerű lépésben. Csupán 2 perc, kötelezettségek nélkül!

Szűkítse a családi házak
listáját
Válassza ki a megfelelő
családi házat
Írjon a hirdetőnek
Várjon a visszahívásra