Eladó családi ház Budapest XXI. ker 299 000 000 Ft

Leírás

CSALÁDI HÁZ ELADÓ CSENDES, KERTVÁROSI KÖRNYEZETBEN – BUDAPEST XXI. KERÜLET, CSEPEL

Eladó egy impozáns családi ház, amely a kerület központjához közel, mégis nyugodt, zöldövezeti környezetben helyezkedik el. A 1296 m²-es, gondozott kert öntözőrendszerrel, dísznövényekkel és hangulatos halastóval várja új tulajdonosát. A kertben fedett terasz és fűthető úszómedence biztosítja a tökéletes kikapcsolódást a melegebb hónapokban.


Főbb adatok:
Telek mérete: 1296 m²

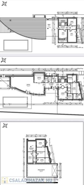
Bruttó alapterület: 426 m²

Nettó alapterület: 349 m²

Szintek: pince + földszint + emelet

Ár: 299.000.000-


Pince – 141 m²
Garázs: 69 m², akár 4 autó kényelmesen elfér

További 6–8 autó parkolása megoldott a garázs előtt

Dolgozószoba saját WC-vel

Háztartási helyiség, kazánház

Tárolóhelyiségek beépített gardróbszekrényekkel


Földszint – 183 m²
Tágas nappali, étkező és konyha kamrával

Vendég WC

Hálószoba, fürdőszoba WC-vel, gardrób

Rekreációs helyiség jakuzzival, szaunával és külön WC-vel

A szint padlótól plafonig érő üvegfelületekkel lett kialakítva, hőszigetelő fóliával ellátva, amely véd a hidegtől, melegtől és a belátástól.

Közvetlen kertkapcsolat a teraszhoz és medencéhez


Emelet – 90 m²
3 külön nyíló hálószoba

Közlekedő és tágas fürdőszoba

A hálószobák és a nappali légkondicionáltak


Egyéb jellemzők:
Azonnal költözhető, tehermentes

Kiváló közlekedés és infrastruktúra

Csendes, családias környék, aktív közösségi élet

Ez a ház ideális választás nagyobb családoknak vagy azoknak, akik prémium kényelmet keresnek kertvárosi környezetben, de nem szeretnének lemondani a város közelségéről.

Ne hagyja ki ezt a különleges lehetőséget – tekintse meg személyesen ezt a gyönyörű, sokoldalú ingatlant!

Családi ház részletei

Ár: 299 000 000 Ft
Méret: 349 négyzetméter
Azonosító: 11572251
Irodai azonosító: 388434
Cím: Mátyás utca
Telek: 1296 négyzetméter
Ingatlan állapota: Kitűnő
Jelleg: családi ház
Építőanyag: Tégla
Fűtés jellege: Cirkó
Fűtés módja: Gáz
Komfort fokozat: Összkomfort
Kor: 21-50 éves
Szintek száma: 1 szint
Egész szobák: 5

Egyéb jellemzők

  • Csatorna
  • Garázs
  • Pince
  • Terasz

Térkép


Így keressen családi házat négy egyszerű lépésben. Csupán 2 perc, kötelezettségek nélkül!

Szűkítse a családi házak
listáját
Válassza ki a megfelelő
családi házat
Írjon a hirdetőnek
Várjon a visszahívásra