Eladó családi ház Budapest XXI. ker 199 000 000 Ft

Leírás


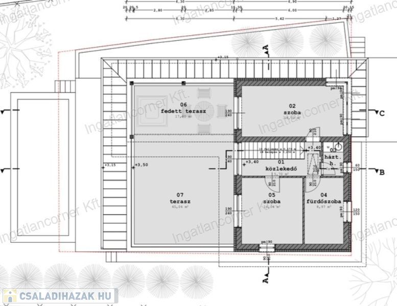
Eladó Csepel Királyerdő részén egy 544 m2 telekkel rendelkező, nettó 174 m2-es, belső kétszintes, nappali + 4 hálószobás, 3-fürdőszobás, nagy terasszal, jakuzzi előkészítéssel, garázzsal rendelkező (+18 m2), 3x8m-es kültéri medencével, napelemmel (7kw-ig az árban, bővíthető), hőszivattyús fűtésrendszerrel kialakított luxus családi ház. 

 

Az alsó szinten egy amerikai konyhás nappali, 2db hálószoba, vendég WC, 2db fürdőszoba (az egyik zuhanyzós, a másik kádas kivitelben), nyitott terasz 31 m2, garázs 18 m2, az emeleti részen közlekedő, 2db hálószoba, 1db fürdőszoba, háztartási helyiség, fedett terasz 17 m2 és egy nyitott terasz 45 m2 kerül, kialakításra.

 

Műszaki tartalom:



•    30-as Porotherm falazat

•    15 cm-es homlokzati szigetelés

•    30 cm-es födémszigetelés

•    Hőszivattyúról működő víz-levegős hűtés-fűtés, padlófűtés, mennyezeti hűtés, H-tarifa

•    Friss levegőszellőztető rendszer

•    3-rétegű nyílászárók, antracit színű, elektromos alumínium redőnyök

•    Hideg burkolat br. 9 500 Ft/m2, meleg burkolat br. 7 500 Ft/m2  az árban

•     Design ledvilágítás a fürdőszobákban, a teraszon, a medencénél

•    Antracit színű betoncserép

•    3 x 8m-es kerti medence, gépészettel

•    Jakuzzi kiállás előkészítés

•    Napelem rendszer 7 Kw-ig (opcionálisan kérésre bővíthető)

Kamerarendszer

•    Garázs 18 m2, térkövezett gépkocsi beálló

•    Elektromos garázskapu

•    WPC kerítés

 

A műszaki tartalom igény esetén opcionálisan bővíthető, a kivitelezővel történt egyeztetéssel.



A környék csöndes, rendezett, a közelben minden megtalálható, amire szükség lehet. Pár perc sétára található a Dunapart és a szépen felújított csepeli strand!

 

Várom hívását, NE maradjon le róla!

 

Irodánk ügyvédi háttérrel rendelkezik a szerződés zökkenőmentes lebonyolítását illetően, illetve hitelhez hiteltanácsadóink révén segítséget nyújt!

Családi ház részletei

Ár: 199 000 000 Ft
Méret: 174 négyzetméter
Azonosító: 11570087
Irodai azonosító: 107004151
Telek: 544 négyzetméter
Ingatlan állapota: Kitűnő
Jelleg: családi ház
Építőanyag: Tégla
Komfort fokozat: Luxus komfort
Kor: Új építésű
Egész szobák: 5

Így keressen családi házat négy egyszerű lépésben. Csupán 2 perc, kötelezettségek nélkül!

Szűkítse a családi házak
listáját
Válassza ki a megfelelő
családi házat
Írjon a hirdetőnek
Várjon a visszahívásra