Eladó családi ház Budapest XXI. ker 199 000 000 Ft

Leírás

BUDAPEST egyik LEGKERESETTEBB, ZÖLDÖVEZETI részén, Csepel-Királyerdő TETEJÉN kínálunk ELADÁSRA egy ÚJ ÉPÍTÉSŰ, MODERN LUXUS CSALÁDI HÁZAT!

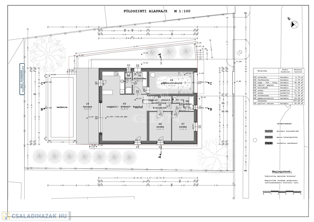
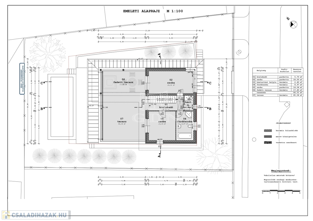
Az INGATLAN 544 m²-es, PRÉMIUM minőségű TELEKRE épült, a hasznos alapterület 174 m²-es amelyben egy AMERIKAI KONYHÁS NAPPALI +4szoba és 3 fürdőszoba TEREMT KÉNYELMES ÉLETTERET.

Azok számára IDEÁLIS VÁLASZTÁS, akik CSENDES, BIZTONSÁGOS környezetre, MINŐSÉGI ÉPÍTÉSZETI és MŰSZAKI megoldásokra, ENERGIAHATÉKONY otthonra vágynak.

Épület jellemzői:

•Nappali: Tágas, fényes nappali, amely egybenyitott az étkezővel és a modern konyhával.
•Terasz: A földszinti és az emeleten részben fedett terasz, tökéletes helyszín a kikapcsolódáshoz vagy vendégfogadáshoz.
•Udvar: 8x4 méteres medence kialakításra kerül, amely nyári családi programokhoz ideális.

Műszaki leírás:

•Szerkezet: Monolit vasbeton sávalap (C20-as betonminőség), 30 cm-es szigetelésű betonfödémmel, homlokzati fal 15 cm-es, lábazatra 10 cm-es hőszigetelés kerül felhelyezésre.

•Tetőszerkezet: Beton cserépfedés, amely biztosítja az időtálló védelmet és esztétikus megjelenést.

•Nyílászárók: Háromrétegű üvegezéssel ellátott alumínium nyílászárók, elektromos redőnyökkel.

•Fűtés és hűtés: Hőszivattyús rendszer padlófűtéssel és mennyezetfűtéssel/-hűtéssel a ház minden helyiségében, beleértve a garázst is. A hálózat 3X25 amperrel, NAPELEM rendszer kiépítve (7kW) + H tarifás mérővel.

•Szellőztetés: Friss levegőt biztosító szellőztetőrendszer, amely pollen- és allergénmentes légkört nyújt.

•Egyéb kényelmi funkciók: Elektromos kapu és garázskapu, valamint antracit színű WPC kerítés körben a telken.

KIVÁLÓ KÖRNYEZET! Néhány perc sétára található orvosi rendelő, patika, iskola, óvoda, boltok. 5-10 percen belül elérhetőek nagyobb élelmiszerüzletek (Spar, Lidl, Aldi, Penny), a helyi PIAC, a DUNA-part, Csepeli Strand és SZÁMOS ÉTTEREM, FAGYIZÓ. A környékről KÖNNYŰ ELÉRHETŐSÉG, AUTÓVAL és TÖMEGKÖZLEKEDÉSSEL EGYARÁNT.

Kihagyhatatlan ajánlatok: CSOK+, kedvezményes kamatozású lakáshitelek.
Az ország szinte összes bankjának a hiteleit is kínáljuk, egyedi, általunk igénybe vehető kedvezményekkel, díjmentes ügyintézéssel.

Amennyiben felkeltette a meghirdetett ingatlan az érdeklődését, keressen bizalommal

Családi ház részletei

Ár: 199 000 000 Ft
Méret: 174 négyzetméter
Azonosító: 11549417
Irodai azonosító: 384741
Cím: Új építésű LUXUSHÁZ MEDENCÉVEL!
Telek: 544 négyzetméter
Ingatlan állapota: Kitűnő
Jelleg: családi ház
Építőanyag: Tégla
Fűtés jellege: Geotermikus
Fűtés módja: Hőszivattyú
Komfort fokozat: Luxus komfort
Kor: Új építésű
Szintek száma: 1 szint
Egész szobák: 5

Egyéb jellemzők

  • Csatorna
  • Garázs
  • Pince
  • Terasz

Térkép


Így keressen családi házat négy egyszerű lépésben. Csupán 2 perc, kötelezettségek nélkül!

Szűkítse a családi házak
listáját
Válassza ki a megfelelő
családi házat
Írjon a hirdetőnek
Várjon a visszahívásra