Eladó családi ház Budapest XXI. ker 129 900 000 Ft

Leírás

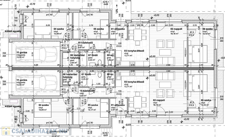
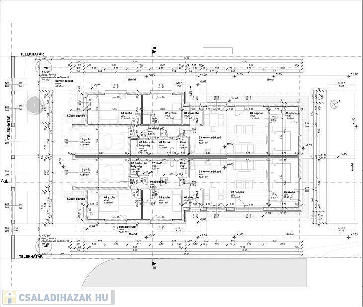
ELADÓ ÚJÉPÍTÉSŰ IKERHÁZ FÉL CSEPEL-KIRÁLYERDŐBEN



Csendes, közkedvelt és családbarát környezetben, Csepel-Királyerdőn eladó egy modern, újépítésű, nappali + 3 hálószobás ikerház fél, garázzsal. Az ingatlan 25 cm-es Leier tégla falazattal épül, melyre 15 cm-es grafitos hőszigetelés kerül, biztosítva ezzel a kiváló energiahatékonyságot és alacsony rezsiköltségeket. A tetőt kakaóbarna Terrán cserép fedi, harmonizálva az épület modern megjelenésével.

A műanyag külső nyílászárók (ajtók, ablakok, erkélyajtók) hőszigetelő, 3 rétegű üvegezéssel vannak ellátva, tovább fokozva az energiahatékonyságot és a hangszigetelést.



A minőségi, több ponton záródó biztonsági bejárati ajtó garantálja otthona teljes védelmét. A belső falak kétszer glettelve és fehérre festve kerülnek átadásra, így azonnal készen állnak arra, hogy az Ön ízlése szerint rendezze be új otthonát. A fűtés- és melegvíz-ellátásról hőszivattyú, padlófűtéssel gondoskodik, kihasználva a költséghatékony H-tarifa előnyeit. A hálószobákban és a nappaliban klíma hűtés előkészítés biztosítja a komfortos hőmérsékletet a nyári hónapokban. A három szoba laminált parkettával, a fürdőszobák magas minőségű hidegburkolattal, a többi helyiség pedig vinyl padlóburkolattal lesz ellátva, igényes és modern megjelenést kölcsönözve az otthonnak.



Az ingatlan legkésőbbi átadása 2026. év vége.





A környezet a családias hangulat mellett számos, a mindennapi élethez szükséges szolgáltatással várja a lakókat. Üzletek, gyógyszertárak, szolgáltatók könnyen elérhetők, akárcsak óvodák és iskolák. A szabadidős tevékenységekhez parkok, játszóterek, sportlétesítmények és a Királyerdei Művelődési Ház programjai kínálnak lehetőséget.



A környék kiválóan ellátott tömegközlekedési szempontból. A közelben több buszmegálló is található, ahonnan számos buszjárat indul Csepel központjába, a Szent Imre térre, majd tovább a Boráros tér felé. Elérhetőek a 148-as, 152-es, 71-es és a 948-as éjszakai buszjáratok. A Csepeli HÉV (H7-es vonal) is könnyen megközelíthető, közvetlen belvárosi kapcsolattal a Boráros térig.





Az ingatlan banki finanszírozással is megvásárolható, melyben irodánk ingyenes tanácsadással áll rendelkezésére, hogy a jelenleg piacon lévő hitelkonstrukciók közül a legkedvezőbbet sikerüljön kérdés, valamint megtekintés kapcsán, keressen minket bizalommal!


Családi ház részletei

Ár: 129 900 000 Ft
Méret: 100 négyzetméter
Azonosító: 11552439
Irodai azonosító: 22619
Telek: 474 négyzetméter
Ingatlan állapota: Épülő
Jelleg: családi ház
Építőanyag: Kérdezzen rá a hirdetőtől »
Fűtés jellege: Egyéb
Szintek száma: Földszintes
Egész szobák: 4

Így keressen családi házat négy egyszerű lépésben. Csupán 2 perc, kötelezettségek nélkül!

Szűkítse a családi házak
listáját
Válassza ki a megfelelő
családi házat
Írjon a hirdetőnek
Várjon a visszahívásra