Eladó családi ház Budapest XX. ker 220 000 000 Ft

Leírás

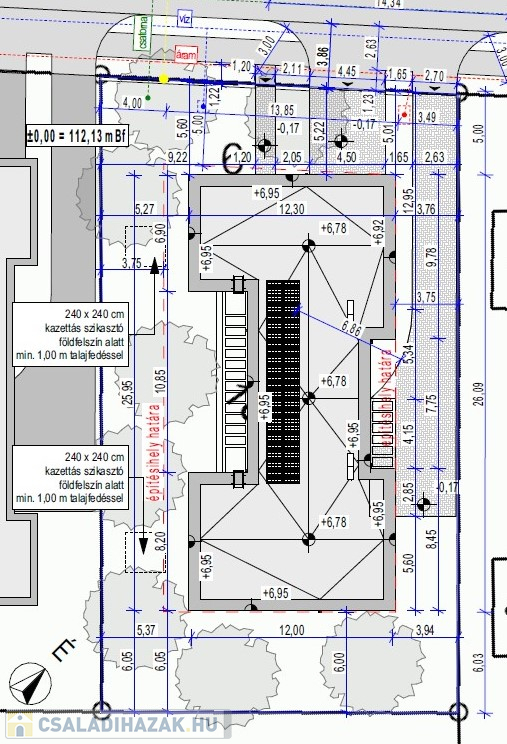
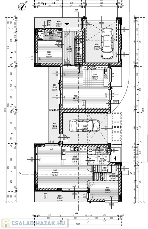
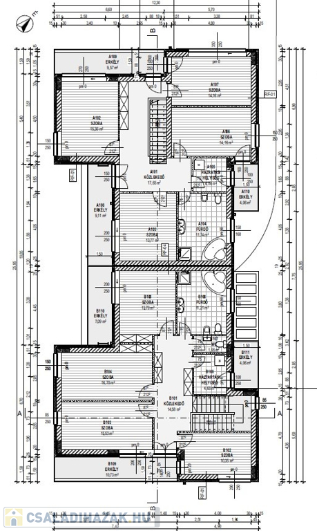
XX. kerület egyik legszebb részén, csendes utcában, erdő mellett épülő 200 m2-es, kétszintes, nappali + 5 szobás, 2 állásos garázsokkal elválasztott luxus színvonalú ikerházi lakások 2026 II. negyed év végi átadással kulcsrakészen eladók. Az ingatlanokat csak irodánk kínálatában találja.

Hőszivattyú, fan coil, napelem, elektromos alumínium redőnyök, elektromos kapuk, riasztó, üveg korlátok, hangulat világítások, H tarifa. Épített utcafronti kerítés. Választható extra burkolatok, szaniterek, csaptelepek, belső ajtók.

Magyarország piacvezető hitelközvetítője által egyedi kamatkedvezményekkel és bankfüggetlen, díjmentes hitelügyintézéssel is segítjük vásárlását. Hívjon bizalommal!

Családi ház részletei

Ár: 220 000 000 Ft
Méret: 200 négyzetméter
Azonosító: 11563739
Telek: 800 négyzetméter
Ingatlan állapota: Kitűnő
Jelleg: ikerház
Építőanyag: Kérdezzen rá a hirdetőtől »
Egész szobák: 6

Egyéb jellemzők

  • Csatorna
  • Garázs
  • Kábel TV
  • Melléképület
  • Parketta
  • Pince
  • Terasz

Így keressen családi házat négy egyszerű lépésben. Csupán 2 perc, kötelezettségek nélkül!

Szűkítse a családi házak
listáját
Válassza ki a megfelelő
családi házat
Írjon a hirdetőnek
Várjon a visszahívásra