Eladó családi ház Budapest XX. ker 129 000 000 Ft

Leírás

MINIMÁLIS REZSIVEL, H-TARIFÁVAL, IKERHÁZAK ELADÓK!

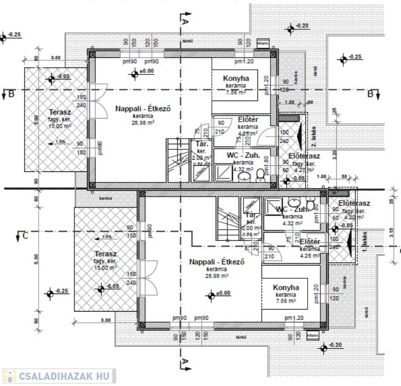
XX. kerület egyik legkedveltebb kertvárosi részén , 103 m2-es, kétszintes, nappali + 3 szobás, igényes ikerházi lakásokat kínálunk 276 m2-es telekrészekkel, gépkocsibállóval kulcsrakészen 2026 év Július végi átadással. Az ingatlan kizárólag a mi kínálatunkban található.
Műszaki:Vasbeton sávalap, dupla fal a lakások között , 30-as Porotherm tégla teherhordó falak, 10-es Porotherm válaszfalak, vasbeton közbenső és fa emeleti födém. A külső falak 12 cm-es Dryvit hőszigeteléssel, az emeleti födém 30 cm-es (fújható cellulóz )hőszigeteléssel készül, cserép héjazással. Nyílászárók(Schüco típusú ) 3 rétegű hő- és hangszigetelő thermo üveggel, kívül,belül fehér színben. Fűtés és a meleg víz hőszivattyúról H tarifával, mindenhol padlófűtés . 1 darab hűtő -fűtő klíma 3,5KW-os nappaliban , összesen 5 db. klíma kiállás a hálószobákban,nappaliban, lépcsőházban.
Telefon, kábeltévé, minden szobában vezetékelve ,kaputelefon, elektromos kapu motorral, riasztó vezetékelve.

Kiváló infrastruktúra. Közelben iskola, óvoda, üzletek, orvosi rendelő és a 66, 66B, 148, 123-as autóbusz megállója, mellyel a 3-as metró vonala is közvetlenül elérhető.

Magyarország piacvezető hitelközvetítője által egyedi kamatkedvezményekkel és bankfüggetlen, díjmentes hitelügyintézéssel is segítjük vásárlását. Amennyiben minimum 25 millió Ft. összegű ingatlanfedezetes hitelt vesz igénybe általunk 500 Euro értékű Club Karos Spa**** wellness utalványt adunk ajándékba. (Az akció kizárólag a Money Network ügynökhálózatán keresztül beadott és folyósított jelzáloghitelekre érvényes.) Hívjon bizalommal!

Családi ház részletei

Ár: 129 000 000 Ft
Méret: 103 négyzetméter
Azonosító: 11579432
Telek: 276 négyzetméter
Ingatlan állapota: Kitűnő
Jelleg: ikerház
Építőanyag: Kérdezzen rá a hirdetőtől »
Szintek száma: 2 szint
Egész szobák: 4

Egyéb jellemzők

  • Csatorna
  • Garázs
  • Kábel TV
  • Melléképület
  • Parketta
  • Pince
  • Terasz

Így keressen családi házat négy egyszerű lépésben. Csupán 2 perc, kötelezettségek nélkül!

Szűkítse a családi házak
listáját
Válassza ki a megfelelő
családi házat
Írjon a hirdetőnek
Várjon a visszahívásra