Eladó családi ház Budapest XX. ker 124 900 000 Ft

Leírás

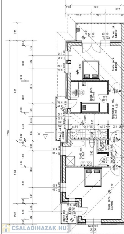
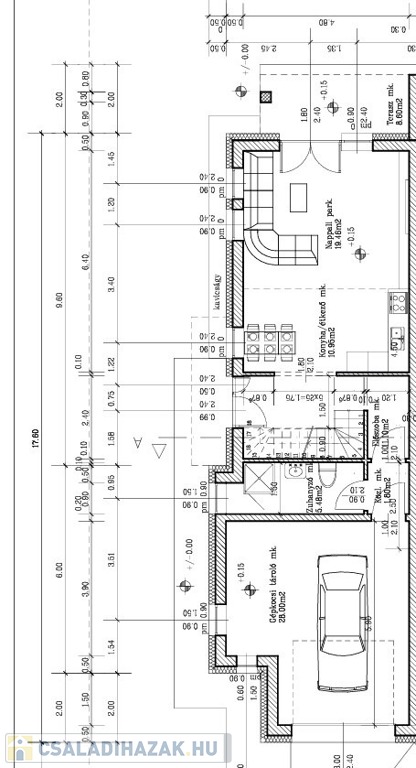
XX. Pesterzsébet kertvárosában, a Pacsirtatelepen eladó, egy mediterrán építészeti stílusú, 150m2-es, nappali + 3 szobás, dupla komfortos új építésű ikerház! Az ingatlanhoz tartozik egy autó részére garázs és egy privát kertrész is. Energetikai besorolását tekintve A+-os, hőszivattyús és fan coil hűtés-fűtési rendszerrel készül. Most még válaszható burkolatokkal és egyéb alakítási igényekkel.

Családi ház részletei

Ár: 124 900 000 Ft
Méret: 150 négyzetméter
Azonosító: 11605517
Irodai azonosító: 338032
Telek: 250 négyzetméter
Ingatlan állapota: Kitűnő
Jelleg: ikerház
Építőanyag: Tégla
Komfort fokozat: Dupla komfort
Kor: Új építésű
Egész szobák: 3
Fél szobák: 1

Egyéb jellemzők

  • Garázs
  • Terasz

Így keressen családi házat négy egyszerű lépésben. Csupán 2 perc, kötelezettségek nélkül!

Szűkítse a családi házak
listáját
Válassza ki a megfelelő
családi házat
Írjon a hirdetőnek
Várjon a visszahívásra