Eladó családi ház Budapest XVIII. ker 69 900 000 Ft

Leírás

Családi otthon, ahol a gyerekek még valóban önfeledten játszhatnak!

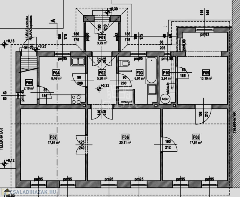
Eladó egy 4 szobás, felújítandó, önálló családi ház, teljesen zárt kerttel, ahol a nyugalom és a jó elhelyezkedés kéz a kézben járnak!

Miért pont ez a ház?
✅ Tágas, jól alakítható szobák – kreatívoknak, családalapítóknak álomprojekt!
✅ Zárt udvar, ahol a gyerekek nyugodtan rohangálhatnak, a kutya szabadon szaladgálhat, Te pedig pihenhetsz :)
✅ Igazi kert – már parkosított, tele különleges növényekkel, de hely jut még konyhakertnek is!
✅ A ház téglából épült, stabil alapokkal rendelkezik.
✅ Szúnyoghálós, redőnyös, 3 rétegű nyílászárók (2022-es csere)
✅ 2 db klíma hűti a nyári forróságot
✅ Villany és vizesblokkok felújítva (2015)
✅ A cserép a tetőhöz már megvan – csak a befejezés vár Rád!
✅ Különálló pince és melléképületek, ahová minden befér. Tényleg minden.

Közlekedés & Infrastruktúra:
Pár perc séta a villamos- és buszmegálló
Autóval gyorsan elérhető több bevásárlóközpont
Közelben: orvosi rendelő, iskola, ovi, játszótér
Mégis csendes, nyugodt környék

Amit még tudni érdemes:
Jogilag rendezett, tehermentes
Hitelezhető
Szennyvízcsatornára a rákötés az új tulajdonosra vár
Egy kis ráfordítással igazi OTTHON válhat belőle!

Ez nem csak egy ház, hanem egy jövőbeli élethelyszín.
Legyen szó családalapításról, átalakításról vagy befektetésről – ebben az ingatlanban rengeteg lehetőség rejlik!

Otthon Start Program!!! 3 %-os hitellel is megvásárolható!

Hívj most, nézd meg, szeress bele!

Családi ház részletei

Ár: 69 900 000 Ft
Méret: 99 négyzetméter
Azonosító: 11555204
Irodai azonosító: 385744
Cím: Kertes ház bomba áron!
Telek: 645 négyzetméter
Ingatlan állapota: Felújítandó
Jelleg: családi ház
Építőanyag: Tégla
Fűtés jellege: Cirkó
Fűtés módja: Gáz
Komfort fokozat: Összkomfort
Kor: 50 évesnél régebbi
Szintek száma: Földszintes
Egész szobák: 4

Egyéb jellemzők

  • Csatorna
  • Garázs
  • Pince
  • Terasz

Térkép


Így keressen családi házat négy egyszerű lépésben. Csupán 2 perc, kötelezettségek nélkül!

Szűkítse a családi házak
listáját
Válassza ki a megfelelő
családi házat
Írjon a hirdetőnek
Várjon a visszahívásra