Eladó családi ház Budapest XVIII. ker 179 900 000 Ft

Leírás

Budapest, 18. kerületében, Szemeretelepen, csekély átmenő forgalmú utcában, csendes kertvárosias környezetben, 745nm-es, előkertes telken családi ház
ELADÓ!
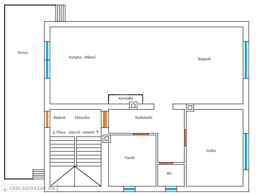
A ház jellemzői: 200nm lakótér, magasföldszinten
100nm, az emeleten szintén 100nm,
-- a földszinten 42nm amerikai konyhás-nappali utcára
és kertre néző ablakokkal, 12nm kisszoba, iroda,
zuhanyzó, sarokkád, mosdó a fürdőszobában, külön
helyiségben WC, mindez a folyosóról nyílik, melyről
az emeletre, ill. a pinceszinti raktárba, mosókonyhába
juthatunk.
Az emeleten három hálószoba (16,24,12 nm-es),
utcára, kertre néző ablakok, fürdőben zuhanyzó,
mosdó, kád ill. külön wc található.
A ház összes ablaka műanyag, szigetelt többrétegű.
A meleget turbós, kondenzációs gázkazán biztosítja,
földszinten padlófűtéssel, az emeleten radiátorokkal.
A nappaliban külső levegős kandalló is szolgáltathat
romantikus légkört keltő meleget.
Az épület két lakószintjén egy-egy turbós Panasonic
klíma van felszerelve elviselhetetlen meleg, vagy
kemény hideg esetére.
A földszinten a terasz 30nm, a teteje távirányitással
kihúzható, az oldala szintén.
A telken négy személyautó parkolására van
lehetőség, a hátsó kertben fedett grillterasz, mellette
sátortetős, felfújható kismedence, a gyerekek
számára csúszda és mászóka található.
Amennyiben felkeltettem érdeklődését hívjon
bizalommal, bármikor!
kf.

Családi ház részletei

Ár: 179 900 000 Ft
Méret: 200 négyzetméter
Azonosító: 11425178
Irodai azonosító: 373563
Cím: Szemeretelep
Telek: 745 négyzetméter
Ingatlan állapota: Átlagos
Jelleg: családi ház
Építőanyag: Tégla
Fűtés jellege: Cirkó
Fűtés módja: Gáz
Komfort fokozat: Dupla komfort
Kor: 21-50 éves
Szintek száma: 2 szint
Egész szobák: 5

Egyéb jellemzők

  • Csatorna
  • Garázs
  • Pince
  • Terasz

Térkép


Így keressen családi házat négy egyszerű lépésben. Csupán 2 perc, kötelezettségek nélkül!

Szűkítse a családi házak
listáját
Válassza ki a megfelelő
családi házat
Írjon a hirdetőnek
Várjon a visszahívásra