Eladó családi ház Budapest XVIII. ker 173 000 000 Ft

Leírás

ELADÓ ÚJ ÉPÍTÉSŰ 186 m2-es 2 szintes, GARÁZZSAL kialakított ikerház a 18.ik kerületben.

Több éves tapasztalattal, sok referencia munkával rendelkező kivitelező. Magas minőségben sok extrával épül.

Frekventál helyen helyezkedik el, kiváló elosztással, roppant világos nagy nyílászárókkal kialakítva.

Telek területe: 530m2

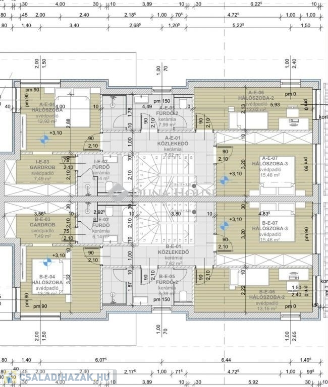
Földszinten: tágas étkező+ nappali konyha, fürdő+wc, kamra, háztartási helyiség, közlekedő, előszoba, vendégszoba, 22,38 m2-es garázs, nyitott terasz 30 m2

Emeleten: 3 tágas szoba, gardrób, egyik szobának külön fürdő+wc kialakítva, fürdőszoba, közlekedő

Műszaki paraméterek:
Porotherm dryfix tégla
3 rétegű ablakok roto szerkezetel kívül antracit redönytokok előkészítése
Padlás szigetelés 20 cm ásványi gyapot
Homlokzati szigetelés 15 cm eps
Höszivatyu 12kw
Szaniterek 400.000 Ft-ig választható
Meleg és hideg burkolatok 8.000 Ft-ig választható
Beltéri ajtók 80.000 Ft /db

Extra: színes nyílászárók kívül,

Műszaki tartalom nálam, nézzük meg együtt az ingatlant.

Közelben: Üllői út, Királyhágó utca

Burkolatok még válaszhatók!

Amennyiben felkeltettem az érdeklődését, hívjon bizalommal.

Családi ház részletei

Ár: 173 000 000 Ft
Méret: 186 négyzetméter
Azonosító: 11550046
Irodai azonosító: HZ089844-4986647
Telek: 530 négyzetméter
Ingatlan állapota: Épülő
Jelleg: ikerház
Építőanyag: Tégla
Fűtés jellege: Villany
Fűtés módja: Hőszivattyú
Kor: Új építésű
Szintek száma: Földszintes
Egész szobák: 5

Térkép


Így keressen családi házat négy egyszerű lépésben. Csupán 2 perc, kötelezettségek nélkül!

Szűkítse a családi házak
listáját
Válassza ki a megfelelő
családi házat
Írjon a hirdetőnek
Várjon a visszahívásra