Eladó családi ház Budapest XVIII. ker 169 000 000 Ft

Leírás

Eladó új építésű ikerházak Szent-Imre Kertváros szívében – A tökéletes választás modern családok számára!

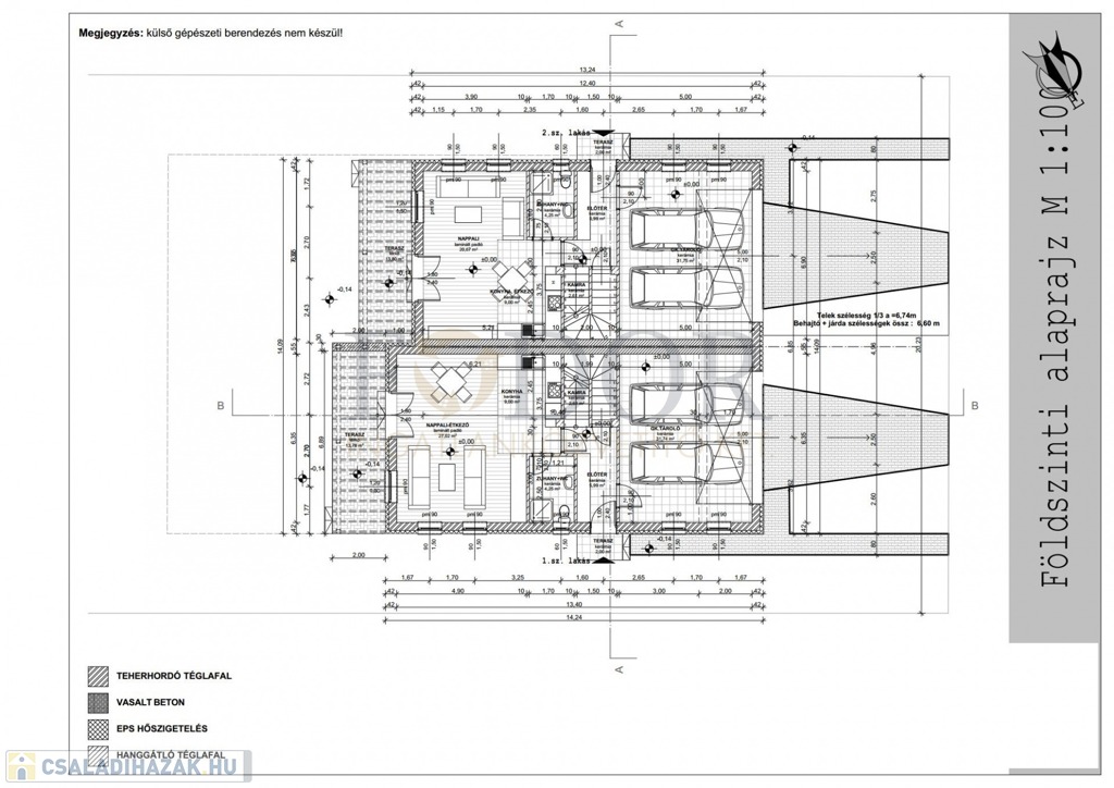
Fedezze fel ezt a lenyűgöző, kétszintes ikerházat, amely a XVIII. kerület csendes mellékut-cájában várja új tulajdonosát. A két lakás külön bejárattal, saját utcafronttal és egyedi telek-résszel rendelkezik, garantálva a privát életérzést.

A lakás jellemzői:
• Hasznos lakóterület: 108-120,35 m² – Tágas amerikai konyhás nappalik, 3 külön be-járatú hálószoba és gardróbszoba.
• Két szint, két fürdőszoba, 14 m²-es terasz és 5,6 m²-es erkélyek a pihenéshez.
• Szintenként padlófűtés, fürdőszobákban törölközőszárítós radiátorok.
• 32 m²-es dupla garázs és elektromos kapu előkészítéssel, motorral.
• Kertkapcsolatos nappali a pihenés és a szórakozás jegyében.
• Napelemes rendszer, modern energiahatékony megoldások: 5 kW-os napelemes rendszer Ad-Vesz órával, szaldós elszámolással.

Minőségi kivitelezés, prémium alapanyagok:
• 30 cm-es főfal + 12 cm homlokzati szigetelés a maximális energiahatékonyságért.
• Ariston Genus Premium Evo 24 kW gázkazán + 100 L melegvíztároló a fűtéshez és a meleg vízhez.
• 3 rétegű hő- és hangszigetelt nyílászárók a kellemes belső klímáért.
• Műanyag redőnyök és szúnyoghálók, modern szekcionált garázsajtó.
• Térkövezett kocsibejáró és személyi bejáró, az egész ház körül.

A jelű lakás 140 m2, 14 m2 terasz, 5,6 m2 erkély, 360 m2 privát telekterület 149 Millió Forint
B jelű lakás 152 m2, 14 m2 terasz, 5,6 m2 erkély, 360 m2 privát telekterület 169 Millió Forint

Környék:
• Kiváló infrastruktúra: Minden fontos szolgáltatás, iskola, bevásárlóközpont, és tö-megközlekedési lehetőség pár perc sétára.

Finanszírozás:
• A projekt kamattámogatott hitellel, CSOK és Babaváró támogatással is elérhető!
• Irodánk ingyenes hitelügyintézést és tanácsadást biztosít, segítünk a legjobb banki ajánlatok kiválasztásában.

Ne hagyja ki ezt a páratlan lehetőséget! Az ingatlan várható átadása 2025. IV. negyedév. Az ár a kulcsrakész állapotra vonatkozik, az Ön igényei szerint választhatóak burkolatok, szaniterek, és beltéri ajtók.
Keressen minket bizalommal, és kérjen bővebb tájékoztatást!

Családi ház részletei

Ár: 169 000 000 Ft
Méret: 152 négyzetméter
Azonosító: 11563008
Irodai azonosító: 329433
Telek: 360 négyzetméter
Ingatlan állapota: Kitűnő
Jelleg: ikerház
Építőanyag: Tégla
Fűtés jellege: Cirkó
Fűtés módja: Gáz
Komfort fokozat: Összkomfort
Kor: Új építésű
Egész szobák: 4

Egyéb jellemzők

  • Garázs
  • Terasz

Így keressen családi házat négy egyszerű lépésben. Csupán 2 perc, kötelezettségek nélkül!

Szűkítse a családi házak
listáját
Válassza ki a megfelelő
családi házat
Írjon a hirdetőnek
Várjon a visszahívásra