Eladó családi ház Budapest XVIII. ker, Kossuth Ferenc-telep, 164 900 000 Ft

Leírás

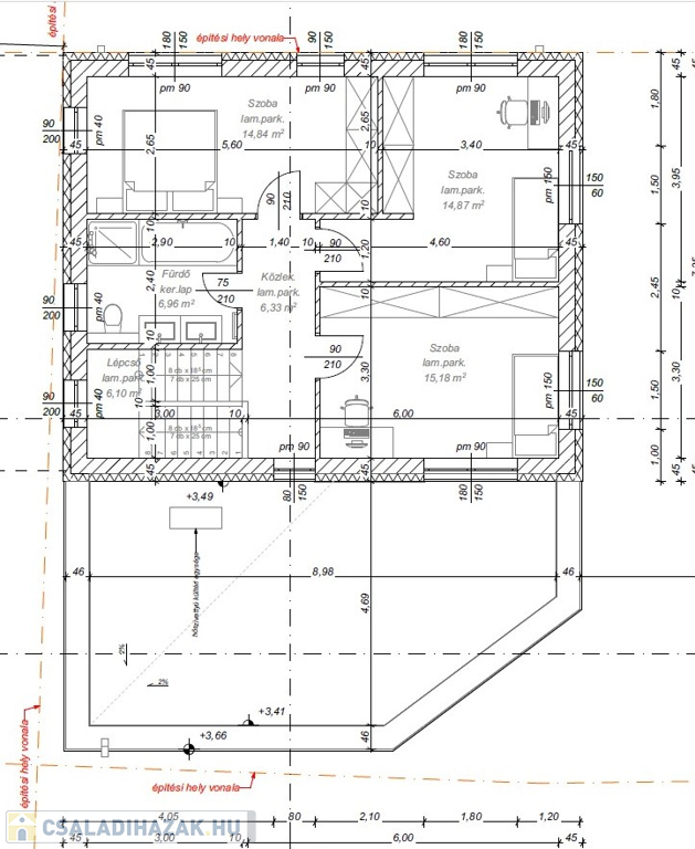
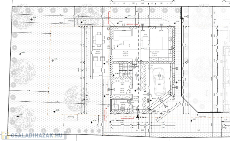
Kossuth-telep csendes utcájában kétszintes, minimál stílusú, 163 m2-es, nappali + 4 szobás, nagy teraszos, új építésű családi ház garázzsal, 620 m2-es telekrésszel 2026 tavaszi átadással kulcsrakészen eladó. Részletes műszaki leírás kérhető.

Magyarország piacvezető hitelközvetítője által egyedi kamatkedvezményekkel és bankfüggetlen, díjmentes hitelügyintézéssel is segítjük vásárlását. Hívjon bizalommal!

Családi ház részletei

Ár: 164 900 000 Ft
Méret: 163 négyzetméter
Azonosító: 11566083
Városrész: Kossuth Ferenc-telep
Telek: 620 négyzetméter
Ingatlan állapota: Kitűnő
Jelleg: családi ház
Építőanyag: Kérdezzen rá a hirdetőtől »
Szintek száma: 2 szint
Egész szobák: 5

Egyéb jellemzők

  • Csatorna
  • Garázs
  • Kábel TV
  • Melléképület
  • Parketta
  • Pince
  • Terasz

Így keressen családi házat négy egyszerű lépésben. Csupán 2 perc, kötelezettségek nélkül!

Szűkítse a családi házak
listáját
Válassza ki a megfelelő
családi házat
Írjon a hirdetőnek
Várjon a visszahívásra