Eladó családi ház Budapest XVIII. ker 163 500 000 Ft

Leírás

Eladó egy új építésű, földszint+emeletes, modern megjelenésű családi ház.

Az ingatlan Budapest XVIII. kerületében, Kossuth Ferenc-telepen helyezkedik el, átmenő forgalomtól mentes mellékutcában, családi házas, kertvárosias övezetben. A közelben található minden szolgáltatás, bevásárlási lehetőségek, óvodák, iskolák, uszoda, orvosi rendelő és a Péterhalmi erdő. A telek szomszédságában beépítetlen erdős zöldövezet van, így a telek csendes, természetközeli kertkapcsolattal rendelkezik. Igény esetén további szomszédos zöldkerti telekrész is megvásárolható.

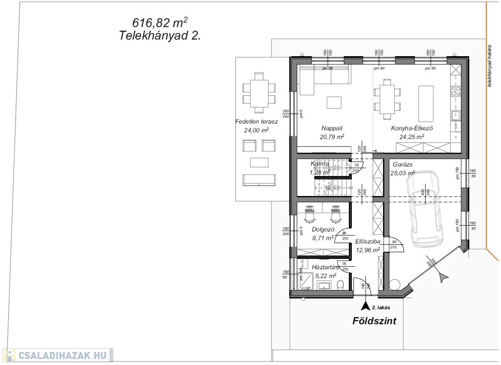
Az épület egy osztatlan közös megosztással leválasztott, kétlakásos telken helyezkedik el, a saját telekhányad mérete 617 m2. Az épület nettó 162 m2-es, bruttó 210 m2-es, szabadonálló beépítéssel épül. Igény esetén a terv módosítható, az emeleti szint bővíthető további kb. nettó 40 m2 alapterülettel.

Az épület elején a bejárat és egy garázs kap helyet, a garázsból is van egy bejutási lehetőség az előszobához. A földszinten ezen kívül egy fürdőszoba és egy kis szoba található, a lépcső alatt egy kamra kerül kialakításra, továbbá sok tárolási lehetőség biztosítható. Az emeleten egy közlekedőről nyílik minden helyiség, így nem zavarja a nappali zaja a nyugalmat. Az emeleten 3 db 15 m2-es hálószoba található, igény esetén 4 db kisebb szoba is kialakítható. A nappali és a konyha-étkező egy légtérben helyezkedik el 45 m2-en, ahonnan ki lehet jutni a 24 m2-es kertkapcsolatos teraszra. A nappali terek nagy ablakokkal vannak ellátva, így kellő fényt biztosítva. A szobák is nagyobb ablakokat kaptak, így biztosítva a szükséges mértékű természetes fényt. Az épület lapostetős, modern kialakítással épül egy folyamatosan frissülő és fejlődő környezetben.

A belső terek megjelenése és elrendezése vevői igények szerint változtatható. Válaszható burkolatok, szaniterek, belső ajtók, falszínek és a legtöbb elem, sőt a tervezésben is részt vehetnek, így egyedi igényekre szabható a ház.

Alapáras műszaki tartalom:
- hőszivattyús rendszerrel biztosított fűtés és melegvíz, puffertartállyal
- padlófűtés az egész épületben, garázsban is
- elektromos, hőszigetelt, szekcionált garázskapu
- napelemes rendszer számára előkészítés
- tolókapu elektromos előkészítése
- kaputelefon, riasztó és kamera rendszer részére előkészítés
- klímás hűtési rendszer számára előkészítés

Emelt műszaki tartalom esetén:
- elektromos tolókapu kiépítése
- kaputelefon, riasztó és kamera rendszer telepítése
- grafitos homlokzati hőszigetelés a jobb hőtechnika érdekében
- garázsban műgyanta burkolat
- klímás hűtési rendszer vagy mennyezethűtési rendszer kiépítése
- elektromos autótöltő kiépítése a garázsban

Alapár: 163,5 millió Ft
Emelt műszaki tartalom esetén: 173,5 millió Ft

A kivitelezést egy helyi vállalkozó végzi, aki hosszú évek óta megbízható kivitelező a környéken, sok referencia munkával rendelkezik, melyek megtekinthetők. Díjmentes hitel ügyintézésben és állami támogatások igénylésében tudunk segíteni. Fizetési ütemezés megegyezés szerint, készültségi fokok szerint ütemezetten.

Várható átadás kulcsrakész állapotban: 2026 év első félév.

Amennyiben tetszene Önnek egy hasonló ház, de rendelkezik saját telekkel, keressen bizalommal, tervezésben és kivitelezésben is tudunk segíteni!

Érdeklődni lehet az alábbi telefonszámon: 06308470047

Családi ház részletei

Ár: 163 500 000 Ft
Méret: 162 négyzetméter
Azonosító: 11561266
Telek: 617 négyzetméter
Ingatlan állapota: Épülő
Jelleg: családi ház
Építőanyag: Tégla
Fűtés jellege: Hőszivattyú
Fűtés módja: Hőszivattyú
Komfort fokozat: Összkomfort
Kor: Új építésű
Elhelyezkedés: Udvari
Szintek száma: 1 szint
Bútorozott: Nem bútorozott
Egész szobák: 4
Nappalik: 1

Egyéb jellemzők

  • Beépíthető tetőtér
  • Csatorna
  • Garázs
  • Kábel TV
  • Melléképület
  • Padlás
  • Parketta
  • Pince
  • Terasz
  • Medence

Térkép


Így keressen családi házat négy egyszerű lépésben. Csupán 2 perc, kötelezettségek nélkül!

Szűkítse a családi házak
listáját
Válassza ki a megfelelő
családi házat
Írjon a hirdetőnek
Várjon a visszahívásra