Eladó családi ház Budapest XVIII. ker 159 900 000 Ft

Leírás

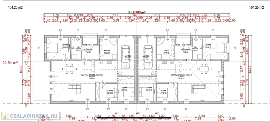
XVIII. kerület – Almáskert szívében ikerház középső lakása eladó!

Almáskert csendes mellékutcájában, a telek középső részén elhelyezkedő, modern, prémium minőségű ikerházfél várja új tulajdonosát.
A széles telek bal oldalán futó, leválasztott (szolgalmi) útról történik a megközelítés (4,5 m × 70 m). Erről az útról először az utcafronti ikerfél nyílik, mögötte található ez a középső lakás, az út végén pedig egy különálló, önálló családi ház kap helyet nagyobb kerttel – így a középső lakás nyugodt, intim elhelyezkedésű, átmenő forgalom nélkül.

(Még választhat: az első vagy a középső ikerfél, illetve a különálló ház is rendelkezésre áll!)

Alapterület: 167 m² (nettó), 210 m² (bruttó)
Szobák száma: 3
Telek mérete: 612 m²

Elrendezés
• Szoba: 15,98 m²
• Szoba: 12,28 m²
• Szoba: 13,77 m²
• Nappali–étkező–konyha: 73,82 m²
• Garázs: 20,76 m²
• Előszoba: 7,39 m²
• Fürdőszoba: 12,42 m²
• Háztartási helyiség: 6,83 m²

Műszaki jellemzők
• 30-as Leier falazat 10 cm grafitos szigeteléssel, lábazat 15 cm XPS
• Belső falak: 10 cm Leier tégla
• Födém: 20 cm kőzetgyapot szigetelés
• Hőszivattyú + padlófűtés az egész házban
• 3 rétegű, energiatakarékos külső nyílászárók
• Választható klíma: vagy 1 db a nappaliban, vagy komplett kiállás minden szobába
• Elektromos kapu, napelem-előkészítés
• Kamerarendszer és riasztó beépítve

A vételár tartalmazza
• Melegburkolat: 5.000 Ft/m² (filc alátéttel, szegéllyel)
• Hidegburkolat: 5.000 Ft/m² (fugával, burkolatváltókkal)
• Beltéri ajtó kilinccsel: 80.000 Ft/db
• Kád tartozékaival: 80.000 Ft/db
• Csaptelep: 20.000 Ft/db
• Mosdó: 20.000 Ft/db
• Plusz vízkiállás: 50.000 Ft/db
• Villanykiállás (fejegységenként): 30.000 Ft/db
• Kerti csap szerelve: 100.000 Ft/db

Szaniterek és belső ajtók készültségi foktól függően választhatók. Extra igények és változtatások egyeztetés alapján kérhetők.

Kivitelező

Megbízható, tapasztalt cég, sok, a környéken található referenciamunkával, melyek előre egyeztetve személyesen is megtekinthetők. Minőségi kivitelezés, korrekt együttműködés.

Pénzügyek, jog
• 30% önerővel lefoglalható
• Várható átadás: 2026. III. negyedév
• Jogosult minden aktuális támogatásra
• Finanszírozásban segítünk (független hitelszakértő), ügyvédi háttér garantált

Érdeklődjön még ma! Hívjon a hét bármely napján további információért és megtekintésért.

Családi ház részletei

Ár: 159 900 000 Ft
Méret: 167 négyzetméter
Azonosító: 11568332
Irodai azonosító: 387747
Cím: Kerékvágás út
Telek: 612 négyzetméter
Ingatlan állapota: Kitűnő
Jelleg: ikerház
Építőanyag: Tégla
Fűtés jellege: Geotermikus
Fűtés módja: Hőszivattyú
Komfort fokozat: Összkomfort
Kor: Új építésű
Szintek száma: Földszintes
Egész szobák: 4

Egyéb jellemzők

  • Csatorna
  • Garázs
  • Pince
  • Terasz

Térkép


Így keressen családi házat négy egyszerű lépésben. Csupán 2 perc, kötelezettségek nélkül!

Szűkítse a családi házak
listáját
Válassza ki a megfelelő
családi házat
Írjon a hirdetőnek
Várjon a visszahívásra