Eladó családi ház Budapest XVIII. ker 159 000 000 Ft

Leírás

Prémium ikerház eladó Budapest XVIII. kerület Ganzkertváros zöldövezeti részén

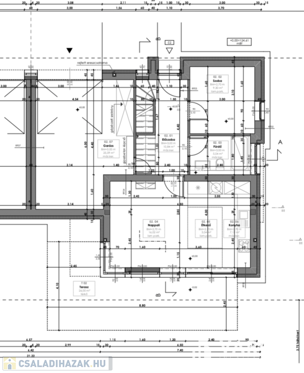
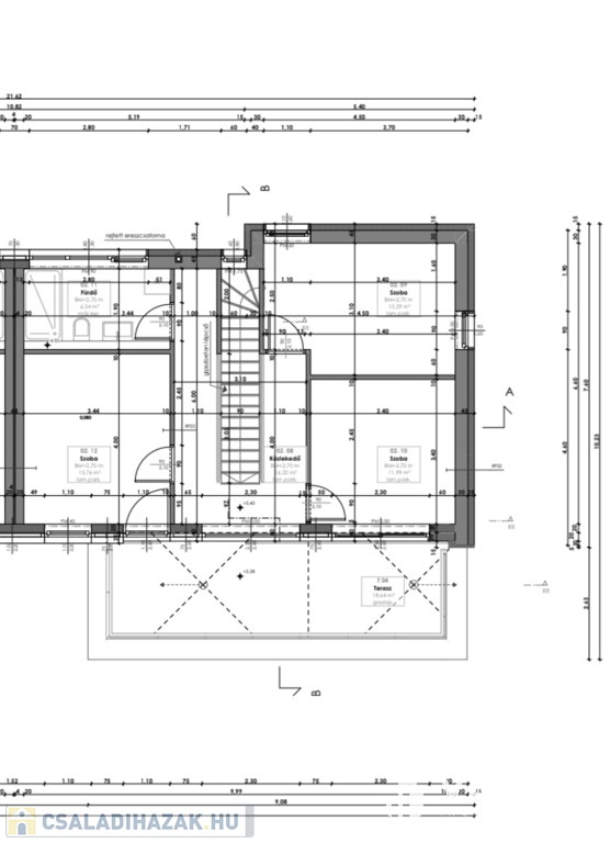
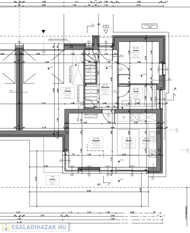
Csend, zöld környezet és modern kényelem – ezt kínálja ez a 134 m²-es, kétszintes, új építésű ikerház, melyhez 373 m²-es saját telekrész, 26 m²-es földszinti terasz és 18,64 m²-es emeleti tetőterasz tartozik.

A két lakás csak a földszinten, a garázsnál kapcsolódik, a dupla főfal és légrés biztosítja a teljes akusztikus és fizikai leválasztást, így zavartalan, önálló élettér alakítható ki.

Az ingatlan kulcsrakész állapotban kerül átadásra, prémium minőségű anyaghasználattal és alacsony fenntartási költségekkel.


Elosztás és térélmény:
• Nappali amerikai konyhával, közvetlen kertkapcsolattal
• 4 tágas hálószoba, világos, praktikus elrendezés
• 2 fürdőszoba, modern szaniterekkel
• 26 m²-es terasz a földszinten, parkosított udvarral
• Tetőterasz az emeleten, kilátással a zöldövezetre

Felszereltség és extrák:
• Hőszivattyús fűtés + padlófűtés minden helyiségben
• Hő- és hangszigetelt nyílászárók
• 15 cm homlokzati + 30 cm mennyezeti hőszigetelés
• Alapriasztó rendszer nyitásérzékelőkkel
• Előkészítés: napelem, kamera, levegő szellőztető rendszer, okosotthon vezérlés
• Elektromos alumínium redőnyök, szúnyoghálóval
• Garázs elektromos kapuval, tárolóval, elektromos autó töltő előkészítéssel
• Okostelefonról irányítható hűtés, fűtés, redőnyök
• Füvesített kert, modern 3D kerítéssel
• Optikai internettel előkészítve


Lokáció és megközelíthetőség:
• Zöldövezeti, nyugodt környék kiváló infrastruktúrával
• Közeli óvodák, iskolák, üzletek, uszoda, buszmegálló
• M0 és M5 autópályák néhány perc alatt elérhetők


Ez az otthon ideális választás mindazok számára, akik exkluzív, mégis megfizethető új építésű ingatlant keresnek csendes, de jól megközelíthető budapesti környezetben.

A részletes műszaki tartalmat szívesen küldöm e-mailben.
Keressen bizalommal, ne maradjon le erről a kivételes lehetőségről!
(További képekért és információkért kérem hívjon!)

Családi ház részletei

Ár: 159 000 000 Ft
Méret: 134 négyzetméter
Azonosító: 11520187
Irodai azonosító: 958617
Erkély mérete: 19.00 négyzetméter
Telek: 373 négyzetméter
Ingatlan állapota: Kitűnő
Jelleg: ikerház
Építőanyag: Tégla
Fűtés jellege: Hőszivattyú
Egész szobák: 5
Nappalik: 1

Egyéb jellemzők

  • Beépíthető tetőtér
  • Csatorna
  • Garázs
  • Melléképület
  • Pince
  • Terasz

Így keressen családi házat négy egyszerű lépésben. Csupán 2 perc, kötelezettségek nélkül!

Szűkítse a családi házak
listáját
Válassza ki a megfelelő
családi házat
Írjon a hirdetőnek
Várjon a visszahívásra