Eladó családi ház Budapest XVIII. ker 150 000 000 Ft

Leírás

Leírás
Leírás
XVIII. ÚJPÉTERI TELEPEN ÖNÁLLÓ ÚJÉPÍTÉSŰ CSALÁDI HÁZAK ELADÓK!!

A XVIII. zöldövezetében, csendes mellékutcában, eladó egy újépítésű kétszintes 117 nm-es, 4 szobás, garázsos, teraszos, önálló családi ház. Az ingatlan minőségi anyagokból készül, szaniterek,burkolatok,falszinek, még választhatók. A kerületben a kivitelező által épített számos referencia munka, bármikor megtekinthető.
3 %-OS KEDVEZMÉNYES HITEL, IGÉNYBEVEHETŐ!!

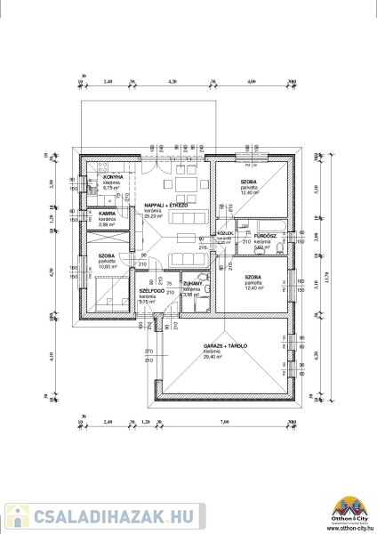
Ugyanitt további eladó ingatlan: 136 nm-es, 2 szintes családi ház, 250 nm telekkel, ára:149,99 millió forint.

-műszaki tartalom:
15 cm-grafit külső szigetelés, 3 rétegű műanyag nyílászárók, betoncserép, betonfödém + fafödém, fűtés:hőszivattyú + padlófűtés, H tarifás villanyóra, 30 cm-es főfalak,riasztó rendszer, térkövezés, klima,

-infrastruktúra:
a közelben iskola, óvoda, úszoda, orvosi rendelők, gyógyszertár, üzletek,

- közlekedés:
5 perc sétára, több buszjárat is elérhető, a vasútállomás 10 perc gyalog.


Ingyenes hitel tanácsadással, kedvezményes jogi képviselettel lehetünk segítségére.
Energetikai szakvéleményre van szüksége? Jó helyre fordult.
Megtetszett az ingatlan, de sajátját még nem adta el? Levesszük a gond nagy részét a válláról, segítséget nyújtunk az eladásban is. Bízza ránk az értékesítését!
Kérésre ingyenes értékbecslést is végzünk az ingatlanán,hívjon minket bizalommal.


Költözés?
A One otthoni
giganete már itt vár!
Budapest XVIII. kerület, Podhorszky utca 93.

Családi ház részletei

Ár: 150 000 000 Ft
Méret: 136 négyzetméter
Azonosító: 11564845
Telek: 250 négyzetméter
Ingatlan állapota: Kitűnő
Jelleg: családi ház
Építőanyag: Kérdezzen rá a hirdetőtől »
Szintek száma: 2 szint
Egész szobák: 5

Egyéb jellemzők

  • Garázs
  • Kábel TV
  • Melléképület
  • Parketta
  • Pince
  • Terasz

Így keressen családi házat négy egyszerű lépésben. Csupán 2 perc, kötelezettségek nélkül!

Szűkítse a családi házak
listáját
Válassza ki a megfelelő
családi házat
Írjon a hirdetőnek
Várjon a visszahívásra