Eladó családi ház Budapest XVIII. ker 148 000 000 Ft

Leírás

ELADÓ ÚJ ÉPÍTÉSŰ 143 m2-es CSALÁDI HÁZ a 18.ik kerületben a Kossuth Ferenc Telep részen.

Több éves tapasztalattal, sok referencia munkával rendelkező kivitelező. Magas minőségben sok extrával épül.

Frekventál helyen helyezkedik el, kiváló elosztással, roppant világos nagy nyílászárókkal kialakítva.

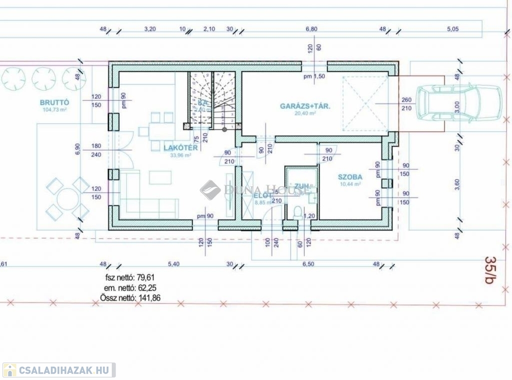
Telek területe: 310.53 m2

Földszinten: Tágas nappali+konyha étkező, zuhanyzó+wc, előtér, szoba, garázs 16.20 m2 , tároló

Emeleten: 3 szoba, fürdő+wc, háztartási helyiség, közlekedő.

Műszaki paraméterek:
Porotherm dryfix tégla
3 rétegű ablakok roto szerkezetel, redőnytokok előkészítése kérhető pluszban
Padlás szigetelés 20 cm ásványi gyapot
Homlokzati szigetelés 15 cm eps
Hőszivattyú 12kw
Szaniterek 400.000 Ft-ig választható
hideg burkolatok 7500Ft-ig választható meleg burkolat 5500 ft-ig
Beltéri ajtók 100.000 ft /db

Extra:
színes nyílászárók kívül( barna vagy antracit választható) , H tarifa óra, elektromos kiállások,
elektromos kiállások kérhetők a redőnyre

Műszaki tartalom nálam, nézzük meg együtt az ingatlant.

Közelben Nagykőrösi út és Dózsa György út, M5 autópálya és Soroksár.
Obi, Tesco, Auchan 5 perc autóval

Átadás 2025 év vége

Amennyiben felkeltettem az érdeklődését, hívjon bizalommal.

Családi ház részletei

Ár: 148 000 000 Ft
Méret: 143 négyzetméter
Azonosító: 11559345
Irodai azonosító: HZ073108-5015713
Telek: 310 négyzetméter
Ingatlan állapota: Épülő
Jelleg: családi ház
Építőanyag: Tégla
Fűtés jellege: Villany
Fűtés módja: Hőszivattyú
Kor: Új építésű
Szintek száma: Földszintes
Egész szobák: 5

Térkép


Így keressen családi házat négy egyszerű lépésben. Csupán 2 perc, kötelezettségek nélkül!

Szűkítse a családi házak
listáját
Válassza ki a megfelelő
családi házat
Írjon a hirdetőnek
Várjon a visszahívásra