Eladó családi ház Budapest XVIII. ker 147 000 000 Ft

Leírás

Pestszentimrén, Újpéteri telepen – vadonatúj, energiatakarékos ikerházak eladók!

Ha modern, kényelmes és hosszú távon gazdaságos otthont keresel a XVIII. kerület egyik legnyugodtabb részén, ez a lehetőség neked szól!
Egy újonnan épülő ikerház mindkét fele elérhető, saját, 363 m²-es leválasztott telekrésszel, intim kerttel és teljesen önálló bejárattal.
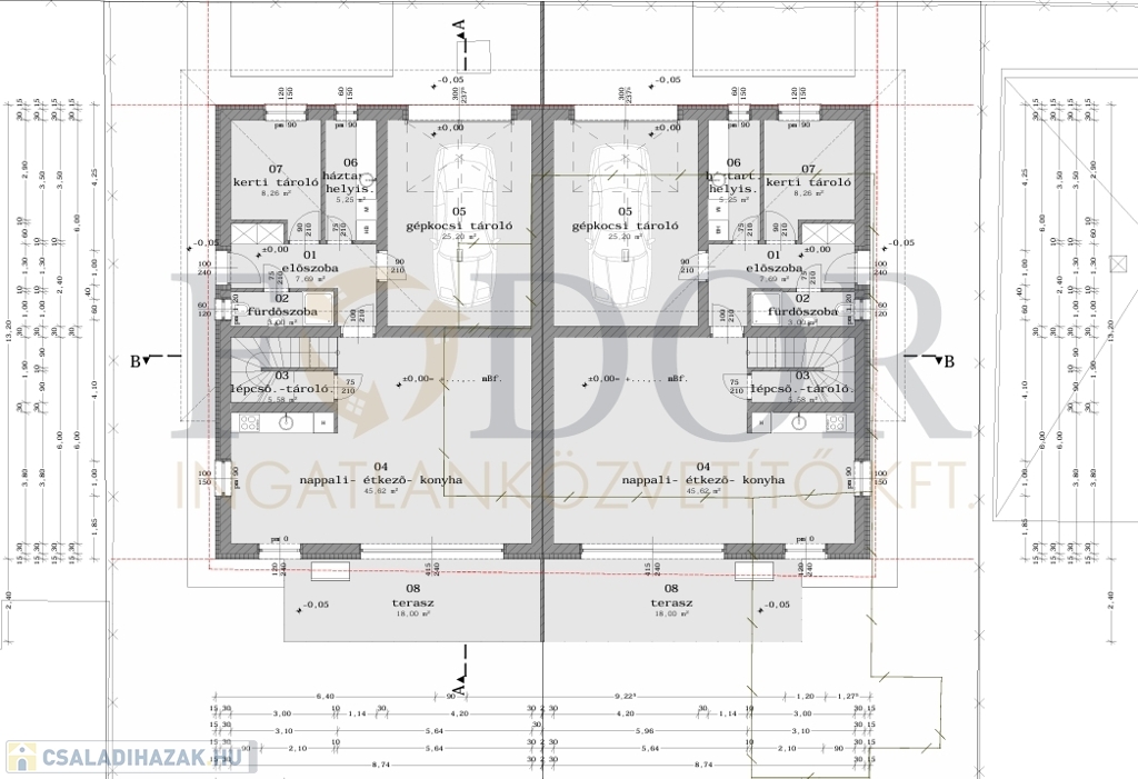
Az ingatlanok összesen közel 150 m² hasznos alapterületűek, átgondolt, családbarát elrendezéssel.

A földszinten egy tágas, 46 m²-es amerikai konyhás nappali-étkező kapott helyet, amely közvetlenül a 18 m²-es, burkolt teraszra nyílik – tökéletes helyszín a reggeli kávéhoz vagy a nyári vacsorákhoz.
Ezen a szinten található még egy vendégszoba, fürdő, háztartási helyiség, tároló és 25 m²-es, motoros kapuval ellátott garázs.
Az emelet három különnyíló hálószobát, gardróbot és egy tágas, kádas fürdőszobát kínál. A praktikus elrendezésnek köszönhetően minden családtag megtalálhatja a saját nyugodt zugát.
A ház kulcsrakészen, választható burkolatokkal, szaniterekkel és belső ajtókkal kerül átadásra – így te döntheted el, milyen stílusban születik meg az új otthonod.

Főbb extrák, amiket az ár tartalmaz:
• modern hőszivattyús fűtési rendszer és padlófűtés minden szinten
• 3 rétegű nyílászárók, motoros alumínium redőnnyel és szúnyoghálóval
• Hörmann motoros garázskapu
• alap riasztórendszer kiépítése
• burkolt terasz, térkövezett beálló és motoros nagykapu
• energiatakarékos, korszerű építési megoldások
• 5 db klíma kiállás előkészítése
• 15 cm homlokzati dryvit hőszigetelés

Építés kezdete: 2025. november
Várható átadás: 2026. III. negyedév
Megbízható, tőkeerős, tapasztalt kivitelezőtől, referencia házakkal a közelben.
CSOK Plusz, Babaváró és 3%-os otthon start hitel igénybe vehetők, így a finanszírozás is gördülékeny.
Egy valódi, modern családi otthon vár rád, ahol minden részlet a kényelmet és az energiatakarékosságot szolgálja.
Részletesebb tájékoztatásért és bővebb műszaki tartalomért keressen bizalommal.

Családi ház részletei

Ár: 147 000 000 Ft
Méret: 157 négyzetméter
Azonosító: 11570915
Irodai azonosító: 343244
Telek: 363 négyzetméter
Ingatlan állapota: Kitűnő
Jelleg: ikerház
Építőanyag: Tégla
Komfort fokozat: Dupla komfort
Kor: Új építésű
Egész szobák: 5

Egyéb jellemzők

  • Garázs
  • Terasz

Így keressen családi házat négy egyszerű lépésben. Csupán 2 perc, kötelezettségek nélkül!

Szűkítse a családi házak
listáját
Válassza ki a megfelelő
családi házat
Írjon a hirdetőnek
Várjon a visszahívásra