Eladó családi ház Budapest XVIII. ker, Kossuth Ferenc-telep, 144 900 000 Ft

Leírás

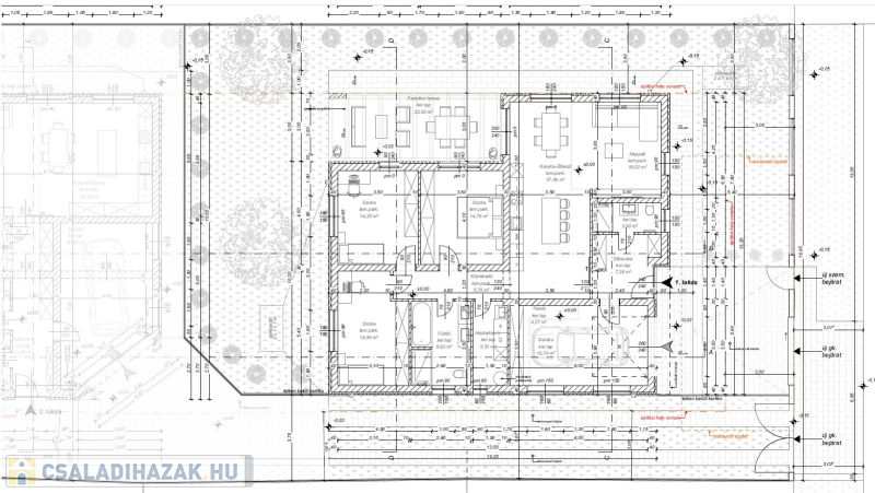
Kossuth-telep csendes utcájában egyszintes, minimál stílusú, kiválóan megépített, 135 m2-es, nappali + 3 szobás, nagy teraszos, dél-nyugati tájolású, új építésű családi ház garázzsal, 428 m2-es telekrésszel 2026 májusi átadással kulcsrakészen eladó.

30 cm-es főfalak, 12 cm polisztirol alapú hőszigeteléssel, 10 cm-es tégla válaszfalak. 12 cm. lépésálló aljzat hőszigetelés. Vasbeton födém, lapostető, lejtést képző 25-40 cm EPS hőszigeteléssel. Levegő-víz hőszivattyú biztosítja a padlófűtést és a meleg víz ellátást, inverteres klíma pedig a hűtést. Antracit színű, hő- és hangszigetelt homlokzati nyílászárók, 3 rétegű üvegezéssel és toktoldóval a redőny kialakításhoz. A belső ajtók, szaniterek, hideg, meleg burkolatok, falak festése választható. Épített utcafronti kerítés, elválasztó 3D-s kerítések. Hőszigetelt, szekcionált elektromos garázskapu. Riasztó, elektromos redőny és kapu kiállás vezetékelve. Kerticsap.

Magyarország piacvezető hitelközvetítője által egyedi kamatkedvezményekkel és bankfüggetlen, díjmentes hitelügyintézéssel is segítjük vásárlását. Amennyiben minimum 25 millió Ft. összegű ingatlanfedezetes hitelt vesz igénybe általunk 500 Euro értékű Club Karos Spa**** wellness utalványt adunk ajándékba. (Az akció kizárólag a Money Network ügynökhálózatán keresztül beadott és folyósított jelzáloghitelekre érvényes.) Hívjon bizalommal!

Családi ház részletei

Ár: 144 900 000 Ft
Méret: 135 négyzetméter
Azonosító: 11566082
Városrész: Kossuth Ferenc-telep
Telek: 428 négyzetméter
Ingatlan állapota: Kitűnő
Jelleg: családi ház
Építőanyag: Kérdezzen rá a hirdetőtől »
Szintek száma: 1 szint
Egész szobák: 4

Egyéb jellemzők

  • Csatorna
  • Garázs
  • Kábel TV
  • Melléképület
  • Parketta
  • Pince
  • Terasz

Így keressen családi házat négy egyszerű lépésben. Csupán 2 perc, kötelezettségek nélkül!

Szűkítse a családi házak
listáját
Válassza ki a megfelelő
családi házat
Írjon a hirdetőnek
Várjon a visszahívásra