Eladó családi ház Budapest XVIII. ker 142 000 000 Ft

Leírás

Almáskert Villa Park – Új építésű luxus családi házak a XVIII. kerület egyik legkedveltebb részén!

Fedezze fel Budapest egyik legnyugodtabb, családbarát övezetét az Almáskertben, ahol három különálló, új építésű, modern családi ház várja leendő tulajdonosait!

Mit kínálunk?
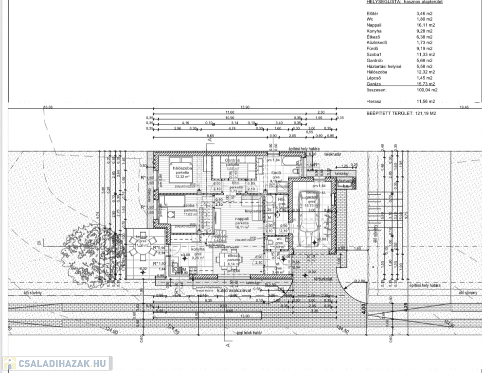
✅ Önálló, belső kétszintes házak (földszint + emelet)
✅ Nappali + 3 hálószoba
✅ 3 mellékhelyiség, kádas-zuhanyzós, dupla mosdós fürdőszoba
✅ Tágas gardrób, tetőterasz, saját parkosított kert
✅ Fűtött garázs elektromos, szekcionált kapuval

Minőség kompromisszumok nélkül!
Az otthonok a legkorszerűbb anyagokból készülnek:
25 cm-es extra hőszigetelő Ytong falazat
10 cm grafitos dryvit szigetelés
3 rétegű antracit nyílászárók, elektromos alumínium redőnyök
20 cm födémszigetelés, időtálló cserépfedés

Energiahatékony és jövőálló otthon:
Hőszivattyús fűtés és hűtés (H-tarifa)
Fan-coil és padlófűtés minden helyiségben
Előkészített napelemrendszer és elektromos autótöltő

Rugalmas kialakítás:
A burkolatok, szaniterek, beltéri ajtók egyedi igény szerint választhatók
A fürdőszobákat bútorozva adjuk át
Egyedi módosítások még kivitelezhetők az építkezés előrehaladásától függően

Műszaki átadás: 2025 nyarán
Ár: 142.000.000 Ft – kulcsrakész állapotban!

Babaváró, CSOK és kamattámogatott hitel igénybe vehető
Ügyvédi költséget az építtető/beruházó átvállalja
Építkezés látogatható előre egyeztetett időpontban

Ne maradjon le róla! Hívjon bizalommal a hét bármely napján, és ismerje meg álmai otthonát személyesen!

Családi ház részletei

Ár: 142 000 000 Ft
Méret: 141 négyzetméter
Azonosító: 11546345
Irodai azonosító: 384239
Cím: Alacskai út
Telek: 400 négyzetméter
Ingatlan állapota: Kitűnő
Jelleg: családi ház
Építőanyag: Tégla
Fűtés jellege: Egyéb
Komfort fokozat: Dupla komfort
Kor: Új építésű
Szintek száma: 1 szint
Egész szobák: 4

Egyéb jellemzők

  • Csatorna
  • Garázs
  • Pince
  • Terasz

Térkép


Így keressen családi házat négy egyszerű lépésben. Csupán 2 perc, kötelezettségek nélkül!

Szűkítse a családi házak
listáját
Válassza ki a megfelelő
családi házat
Írjon a hirdetőnek
Várjon a visszahívásra