Eladó családi ház Budapest XVIII. ker, Ganzkertváros, 139 990 000 Ft

Leírás

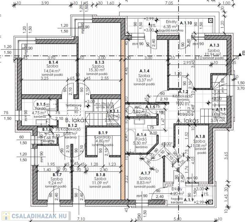
Pestszentlőrinc egyik legkedveltebb részén a Ganzkertvárosban 143,22 m2-es, kétszintes, 5 szobás, garázsos, új építésű, dél tájolású ikerház 2 fürdőszobával, terasszal, emeleti erkélyekkel 2025 tavaszi átadással kulcsrakészen eladó.

Aszfaltozott utca, összközmű. 6,25 KW-os napelem rendszer 10 KW-os akkumulátorral. Elektromos kapuk. Redőnyök szúnyoghálóval. Épített utcafronti kerítés. Térburkolások. Infrafűtéses padlófűtés. Villanybojleres meleg víz ellátás. Rendkívül alacsony rezsi. 3 rétegű üvegezéssel ellátott homlokzati nyílászárók. Vasbeton alap és födémek. Tégla falazat. Hőszigetelt aljzat, főfalak és födém. A belső ajtók, szaniterek, burkolatok, falfestés választható. Közelben iskola, óvoda, bölcsőde, üzletek.

Díjmentes, bankfüggetlen hiteltanácsadással is segítjük vásárlását. Egyedi kamatkedvezmények. Hívjon bizalommal!

Családi ház részletei

Ár: 139 990 000 Ft
Méret: 143 négyzetméter
Azonosító: 11495206
Városrész: Ganzkertváros
Telek: 400 négyzetméter
Ingatlan állapota: Átlagos
Jelleg: ikerház
Építőanyag: Kérdezzen rá a hirdetőtől »
Szintek száma: 2 szint
Egész szobák: 5

Egyéb jellemzők

  • Csatorna
  • Garázs
  • Kábel TV
  • Melléképület
  • Parketta
  • Pince
  • Terasz

Így keressen családi házat négy egyszerű lépésben. Csupán 2 perc, kötelezettségek nélkül!

Szűkítse a családi házak
listáját
Válassza ki a megfelelő
családi házat
Írjon a hirdetőnek
Várjon a visszahívásra