Eladó családi ház Budapest XVIII. ker 136 990 000 Ft

Leírás


Új építésű ikerház fél, Budapest XVIII. kerületében, Pestszentimre Erdőskert részén — külön bejárat és saját kert!

Eladó a XVIII. kerület közkedvelt, kertvárosias részén, Pestszentimrén (Erdőskert városrész) egy új építésű ikerház egyik fele, a másik már értékesítésre került. Mindkét lakása külön bejárattal és saját, lekerített telekrésszel rendelkezik, tehát a privát élettér teljes mértékben biztosított!

A lakás 135 m2 alapterületű, amelyből 120 m2 nettó hasznos lakóterület + 15 m2 garázs áll rendelkezésre. A kialakítás ideális választás lehet családoknak, akik kényelmes, modern otthonra vágynak.

Az építkezés már elkezdődött, így az érdeklődők nyomon követhetik új otthonuk épülését. Bizonyos fázisokig burkolatok, szaniterek és beltéri ajtók még választhatók, így a belső kialakítás teljes mértékben a saját ízléshez igazítható.

Műszaki tartalom, amire a család minden tagja számíthat:
- Hőszivattyús padlófűtés és mennyezethűtés — télen kellemes meleg, nyáron hűvös otthon
- Elektromos, rejtett tokos alumínium redőnyök
- Elektromos garázskapu és nagykapu — kényelmes bejutás esőben is
- Riasztórendszer és kaputelefon kiépítve — a biztonságért
- Elektromos autó töltési lehetőség előkészítve a garázsban — a jövőre is felkészülve

Minőségi, időtálló szerkezeti megoldások:
- 30-as Porotherm falazat
- 15 cm homlokzati szigetelés
- 30 cm födémszigetelés
- Az ikerház lakásai dupla téglafallal kapcsolódnak egymáshoz, közöttük 5 cm szigeteléssel, így az áthallás minimális.
- Modern, elegáns antracit tetőcserép

A kivitelező hosszú évek tapasztalatával, megbízható, összeszokott csapattal dolgozik — referenciaházak személyesen is megtekinthetők!

Várható átadás: 2026. II–III. negyedév — hogy az ünnepeket már új, meleg otthonodban tölthesse!

Ne maradjon le erről a kiváló lehetőségről!
Tekintse meg személyesen, hol valósulhat meg a család álma!

A közelben minden fontos kiszolgáló egység megtalálható: iskola, óvoda, bevásárlási lehetőségek, gyógyszertár, BKV-járatok — minden, ami a család mindennapi kényelméhez szükséges!

Irodánk teljes körű segítséget nyújt:
•díjmentes hitelügyintézés
•CSOK Plusz tanácsadás
•banki partneri háttér a vásárlás minden lépésében

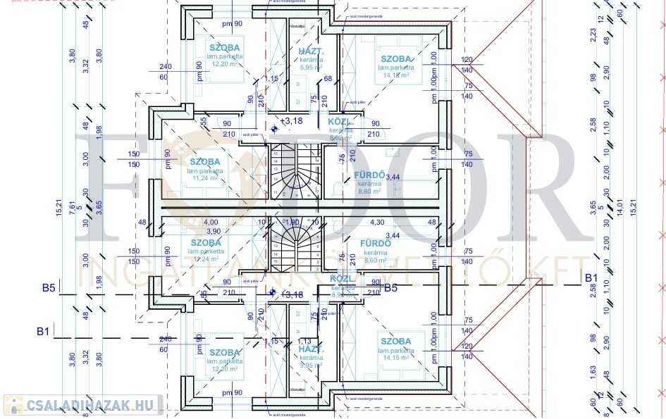
Az alaprajz és a leírás kizárólag tájékoztató jellegű.

További információkért, kérdéseivel, hívjon bizalommal!

Családi ház részletei

Ár: 136 990 000 Ft
Méret: 135 négyzetméter
Azonosító: 11568676
Irodai azonosító: 342845
Telek: 350 négyzetméter
Ingatlan állapota: Kitűnő
Jelleg: ikerház
Építőanyag: Tégla
Komfort fokozat: Dupla komfort
Kor: Új építésű
Egész szobák: 5

Egyéb jellemzők

  • Garázs
  • Terasz

Így keressen családi házat négy egyszerű lépésben. Csupán 2 perc, kötelezettségek nélkül!

Szűkítse a családi házak
listáját
Válassza ki a megfelelő
családi házat
Írjon a hirdetőnek
Várjon a visszahívásra