Eladó családi ház Budapest XVIII. ker, Ganzkertváros, 131 900 000 Ft

Leírás

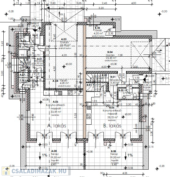
18. kerület zöldövezeti, csendes utcájában napelemes, 140 m2-es + 40 m2. terasz, nappali + 4 szobás, 2 fürdőszobás, garázsos, dél-keleti tájolású ikerházi lakások magas műszaki tartalommal 750 m2-es telken 2026 év eleji átadással kulcsrakészen eladók. Infrafűtés, klíma kiállások szobánként, elektromos bojler, műanyag homlokzati nyílászárók 3 rétegű, hő- és hangszigetelt üvegezéssel, hőszigetelt főfalak, vasbeton födém és aljzat.

CSOK plusz igényelhető. Díjmentes, bankfüggetlen hiteltanácsadás. Hívjon bizalommal!

Családi ház részletei

Ár: 131 900 000 Ft
Méret: 140 négyzetméter
Azonosító: 11478086
Városrész: Ganzkertváros
Telek: 375 négyzetméter
Ingatlan állapota: Átlagos
Jelleg: ikerház
Építőanyag: Kérdezzen rá a hirdetőtől »
Szintek száma: 2 szint
Egész szobák: 5

Egyéb jellemzők

  • Csatorna
  • Garázs
  • Kábel TV
  • Melléképület
  • Parketta
  • Pince
  • Terasz

Így keressen családi házat négy egyszerű lépésben. Csupán 2 perc, kötelezettségek nélkül!

Szűkítse a családi házak
listáját
Válassza ki a megfelelő
családi házat
Írjon a hirdetőnek
Várjon a visszahívásra