Eladó családi ház Budapest XVIII. ker 130 500 000 Ft

Leírás

Eladó Budapest egyik legkedveltebb városrészében, a 18. kerület Erdőskertben, egy új építésű 118 m²-es ikerfél, 12,34 m2-es terasszal, 293 m2-es leválasztott telekrészen.
A kulcsrakész állapotban átadásra kerülő otthon tökéletes választás azok számára, akik szeretnék élvezni a csendes, zöld környezet és a város közelségének előnyeit.

A két lakás között dupla főfal és légrés biztosítja a teljes nyugalmat.
A garázs előtt 5 m előkert került kialakításra, így igény esetén egy további autó felszíni beállása biztosított.

Az ingatlan bejárata az oldalkert felől nyílik és egy előtetővel védett bejárati ajtón keresztül ,az előtérbe vezet.
Innen lehet megközelíteni a hátsó kert felé tájolt nappali-étkező-konyhát,
az utca felé tájolt zuhanyzót. A konyhához kamra is tartozik.
A nappaliból egy nagy teraszra jutunk ki, mely biztosítja a lakás kert kapcsolatát.
Az ingatlanhoz egy egy állásos garázs és tároló is tartozik, az előtéren keresztül belső átjáró a lakótérbe.
Az emeleten három hálószoba, közlekedő, fürdőszoba és háztartási helyiség kerül kialakításra.
A háztartási helyiségben külön WC is helyet kap.
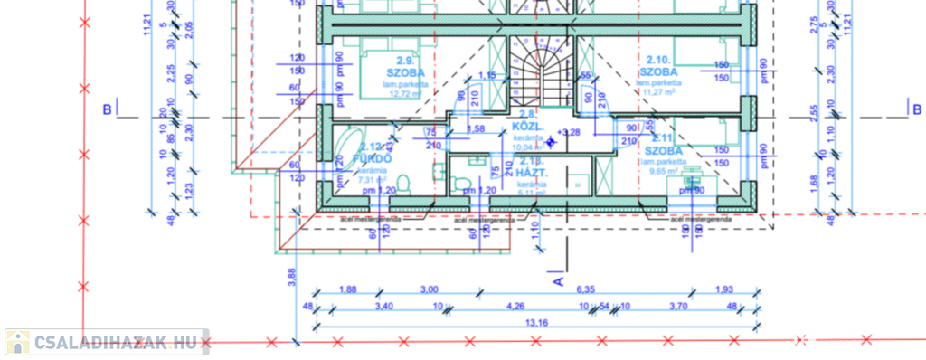
A belső elrendezést a képek közötti alaprajzon találja.

A ház prémium anyagok felhasználásával, magas műszaki tartalommal készül.

- vasalt sávalapozás 50 cm szélességben,
- 2 rét.bitumenes talajnedvességelleni szigetelés,
- zsalukő lábazat,
- a homlokzati rendszeren 15 cm grafitos szigetelés,
- betongerendás födém a földszinten,
- az emelet felett fagerendás födém,
- 30 cm hőszigetelés a legfelső födémen,
- betoncserép héjalás,
- horganyzott acéllemez csatornák a csapadék elvezetésére,
- a csapadékvizet épített vízgyűjtő ciszternába vezetve,
- levegő-víz hőszivattyú lesz a tárolókban elhelyezve,
amely biztosítja a fűtést és meleg víz ellátást,
- H tarifa tovább csökkenti a felhasznált elektromos áram árát,
- padlófűtés, plusz a fürdőkben törölközőszárítós radiátorok is fel lesznek szerelve,
3 db inverteres klíma, amely egész évben segíti a kellemes hőérzet eléérését,
műanyag 5 légkamrás nyílászárók,
- nyitásérzékelő minden helyiségen,
- rejtett redőnytokok helyének kiépítésével,
- alumínium redőnyök,
- szúnyogháló helyiségenként 1 db,
- riasztó rendszer a biztonságért,
- hő és hangszigetelt szekcionált garázskapu elektromos motorral felszerelve,
Az építkezés folyamatában igény szerinti belső kialakítás, választható burkolatok, szaniterek, belső ajtók, a kiegészítő műszaki tartalom szerinti elszámolással.
Több mint 10 éves tőkeerős cég, sok referencia ház a környéken , különböző építési fázisokban is megtekinthető építkezések.
Várható átadás 2026. Il.negyedév.

A telek mérete 287 m², amely saját kertrészt és teraszt tartalmaz, ideális helyszínt biztosítva a szabadtéri programokhoz.

Biztonsági szempontból az ingatlan riasztórendszerrel felszerelt. Az optikai internet kábel garantálja a gyors és stabil internetkapcsolatot. A környék kiváló közlekedési lehetőségeket kínál, a belváros pedig könnyen és gyorsan elérhető.

Szerződéskötését ügyvédi háttérrel biztosítjuk, hitelügyintézés bank független hiteltanácsadóval.


Ne hagyja ki ezt a remek lehetőséget, hogy egy igényesen kivitelezett, modern és kényelmes otthon tulajdonosa legyen Budapest egyik zöld oázisában!

Keressen minket bizalommal, és tekintse meg személyesen ezt a kivételes ingatlant!
(További képekért és információkért kérem hívjon!)

Családi ház részletei

Ár: 130 500 000 Ft
Méret: 118 négyzetméter
Azonosító: 11560431
Irodai azonosító: 853797
Telek: 293 négyzetméter
Ingatlan állapota: Kitűnő
Jelleg: ikerház
Építőanyag: Tégla
Fűtés jellege: Hőszivattyú
Egész szobák: 4
Nappalik: 1

Egyéb jellemzők

  • Beépíthető tetőtér
  • Csatorna
  • Garázs
  • Melléképület
  • Pince
  • Terasz

Így keressen családi házat négy egyszerű lépésben. Csupán 2 perc, kötelezettségek nélkül!

Szűkítse a családi házak
listáját
Válassza ki a megfelelő
családi házat
Írjon a hirdetőnek
Várjon a visszahívásra