Eladó családi ház Budapest XVIII. ker 129 900 000 Ft

Leírás

Álmai otthonában karácsonyozhat! Új építésű, energiatakarékos családi ház eladó a XVIII. kerület Ferihegy városrészében

Kivételes lehetőség a piacon: eladó egy modern, új építésű, energiatakarékos családi ház Budapest XVIII. kerületének közkedvelt, csendes részén, Ferihegyen. Az ingatlan kiváló műszaki és esztétikai tartalommal, magas színvonalon kivitelezve készül, és megfelel a legújabb környezetvédelmi és energetikai elvárásoknak. A beköltözés várhatóan 2025. IV. negyedévben megtörténhet – így akár már az idei karácsonyt új otthonában ünnepelheti!

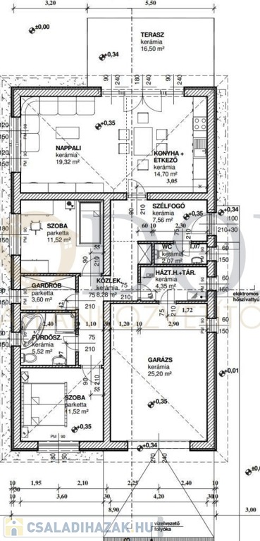
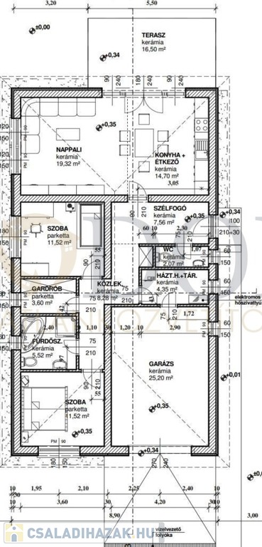
Az ingatlan 113 m²-es bruttó alapterülettel rendelkezik, melyből 88,44 m² a hasznos lakótér, 25,2 m² pedig a garázs. Az otthon elrendezése praktikus és kényelmes: tágas amerikai konyhás nappali (34,2 m²), két hálószoba, melyek száma igény esetén háromra bővíthető. A nappaliból közvetlen kijárat nyílik a 16,5 m²-es burkolt teraszra.

Műszaki jellemzők:
• Falazat: 30 cm főfal + 10 cm homlokzati hőszigetelés
• Tető: Terrán vagy Bramac cserép
• Alapozás: Vasbeton sávalap
• Nyílászárók: Műanyag, 6 légkamrás ablakok, 3 rétegű hőszigetelő üveggel
• Fűtés: Daikin levegő-víz hőszivattyús padlófűtés
• Hűtés: Daikin Fan-Coil rendszer elő van készítve a nappaliban és a két hálószobában
• Napelem rendszer: előkészítve
• Redőnyök és szúnyoghálók: elektromos vezérléshez szükséges rejtett redőnytokok és vezetékezés előkészítve, azonban redőny és szúnyogháló nem tartozék
• Riasztórendszer: előkészítve
• Elektronikus kapu: előkészítve
• Garázskapu: hőszigetelt, motoros szekcionált garázsajtó
Külső kialakítás:
• Telek mérete: 404 m² saját használatú telekrész
• Kocsibeálló és járda: viacolorral burkolva
• Garázs: 25,2 m², közvetlen lakáskapcsolattal
• Terasz: 16,5 m², burkolva

Állapot és választható elemek:
A ház kulcsrakész állapotban kerül átadásra, a vételár tartalmazza a választható burkolatokat, szanitereket és beltéri ajtókat, így az új tulajdonos saját ízlésének megfelelően alakíthatja ki az enteriőrt.

Ez a ház nemcsak esztétikus, hanem korszerű és fenntartható otthon is, mely hosszú távon alacsony fenntartási költségeket kínál.

A környék rendezett, családbarát, mégis kiváló közlekedési kapcsolatokkal és infrastrukturális ellátottsággal rendelkezik.

Ne hagyja ki ezt az alkalmat – költözzön be még karácsony előtt egy vadonatúj otthonba!

További információért, műszaki dokumentációért és helyszíni megtekintésért keressen bizalommal!

Irodánk díjmentes hitelügyintézéssel, CSOK Plusz tanácsadással és banki partneri háttérrel segíti Önt a vásárlás minden lépésében!

Családi ház részletei

Ár: 129 900 000 Ft
Méret: 113 négyzetméter
Azonosító: 11563009
Irodai azonosító: 329835
Telek: 404 négyzetméter
Ingatlan állapota: Kitűnő
Jelleg: családi ház
Építőanyag: Tégla
Komfort fokozat: Összkomfort
Kor: Új építésű
Egész szobák: 3

Egyéb jellemzők

  • Garázs
  • Terasz

Így keressen családi házat négy egyszerű lépésben. Csupán 2 perc, kötelezettségek nélkül!

Szűkítse a családi házak
listáját
Válassza ki a megfelelő
családi házat
Írjon a hirdetőnek
Várjon a visszahívásra