Eladó családi ház Budapest XVIII. ker 125 000 000 Ft

Leírás

Eladásra kínálok két klasszikus stílusban épülő, új építésű ikerházat Pestimre egyik legkedveltebb, csendes mellékutcájában!

Az ingatlan bal oldala már elkelt, jelenleg csak a jobb oldali rész elérhető.

A XVIII. kerület Újpéteri-telep városrészének egyik nyugodt, hangulatos utcájában valósul meg ez a kiváló minőségű építkezés. A két lakóház egymás mellett helyezkedik el, külön utcafronttal és saját, leválasztott, 271 m²-es telekrésszel, így teljes önállóságot biztosítanak. Az épületek kizárólag a garázsnál érintkeznek, így egy ikerház előnyeit kínálják, de szinte teljesen önálló családi házként élhetők.

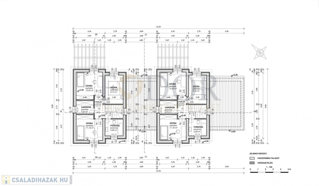
Mindkét ingatlan nettó 96,65 m² alapterületű, kétszintes kialakítással. A földszinten amerikai konyhás, napfényes nappali fogadja a családot, amelyhez egy 15,23 m²-es, hangulatos terasz is kapcsolódik. Három külön nyíló hálószoba, két teljes értékű fürdőszoba – mindkét szinten –, praktikus tároló és egy tágas emeleti gardrób is a kényelmet szolgálja. Az autók számára 25,20 m²-es garázs biztosít védett parkolási lehetőséget.

A kivitelezés magas műszaki tartalommal történik: az épületek beton sávalapra épülnek, 30 cm-es főfalakkal és 10 cm-es válaszfalakkal. A tetőt beton cserépfedés borítja, a homlokzat 10 cm vastag grafitos hőszigetelést kap. A háromrétegű üvegezésű nyílászárók kiváló hő- és hangszigetelést biztosítanak, míg a hőszivattyús fűtés padlófűtéssel gondoskodik az energiatakarékos, egyenletes hőérzetről. Klímakiállások, valamint elektromos kapu- és garázsnyitás előkészítése is beépítésre kerül.

A belső kialakítás teljes egészében az új lakók ízlésére szabható: burkolatok, szaniterek, beltéri ajtók adott értékhatáron belül választhatók.

A környék nyugodt, családias hangulatú, kertvárosias beépítéssel rendelkezik, kiváló infrastruktúrával. A közelben óvodák, iskolák, bevásárlási lehetőségek, gyógyszertár, orvosi rendelő és sportolási lehetőségek is megtalálhatók. A természetkedvelők számára pedig a közeli parkok és zöldfelületek kínálnak kellemes kikapcsolódást.

A közlekedés rendkívül kedvező: a belváros autóval és tömegközlekedéssel is könnyen elérhető. A közeli busz- és vasútállomások révén gyorsan eljuthatunk akár a városközpontba, akár a környező kerületekbe. Az M0-s és az Üllői út közelsége pedig kényelmes kapcsolatot biztosít az agglomeráció irányába is.

Az építkezés jelenleg is zajlik, a falazási munkálatok már folyamatban vannak. A várható átadás: 2025. IV. negyedévében.

Irodánk díjmentes hitelügyintézéssel, CSOK Plusz tanácsadással és banki partneri háttérrel segíti Önt a vásárlás minden lépésében!

Családi ház részletei

Ár: 125 000 000 Ft
Méret: 122 négyzetméter
Azonosító: 11555233
Irodai azonosító: 339751
Telek: 271 négyzetméter
Ingatlan állapota: Kitűnő
Jelleg: ikerház
Építőanyag: Tégla
Komfort fokozat: Dupla komfort
Kor: Új építésű
Egész szobák: 4

Egyéb jellemzők

  • Garázs
  • Terasz

Így keressen családi házat négy egyszerű lépésben. Csupán 2 perc, kötelezettségek nélkül!

Szűkítse a családi házak
listáját
Válassza ki a megfelelő
családi házat
Írjon a hirdetőnek
Várjon a visszahívásra