Eladó családi ház Budapest XVIII. ker 124 900 000 Ft

Leírás

Eladó új építésű, önálló földszintes családi házak – kizárólag a Fodor Ingatlaniroda kínálatában!
Budapest XVIII. kerületének közkedvelt részén, Újpéteri-telepen kínálunk megvételre két darab új építésű, önálló, földszintes családi házat, egymás mögötti elhelyezkedéssel, külön telekterülettel és kerítéssel.
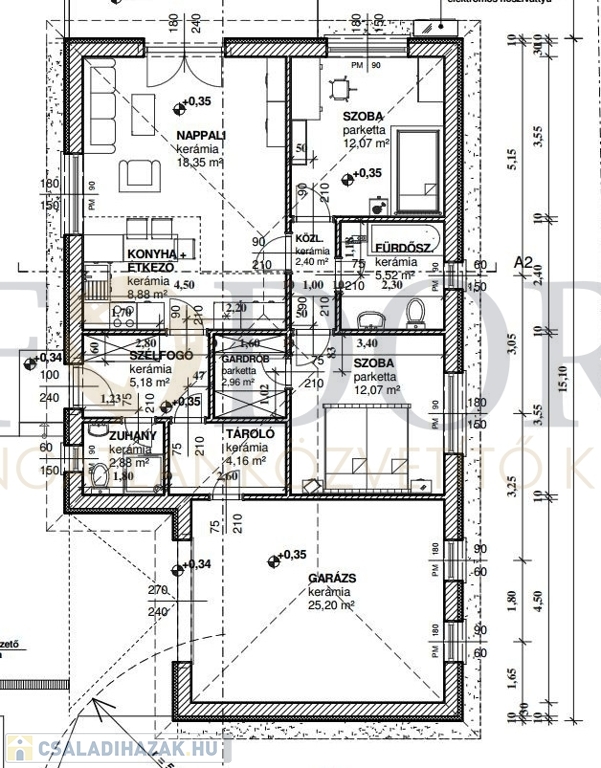
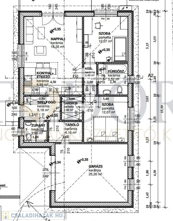
Ingatlanok főbb adatai
1. utcafronti ház Ár:119.9 Millió Forint
• Összes alapterület: 113,27 m²
• Hasznos lakótér: 87,92 m²
• Garázs: 25,35 m²
• Telekterület: 296 m²
• Amerikai konyhás nappali + 2 hálószoba + gardrób
2. udvar felőli ház 214.9 Millió Forint
• Összes alapterület: 99,64 m²
• Hasznos lakótér: 74,47 m²
• Garázs: 25,2 m²
• Telekterület: 513 m²
• Amerikai konyhás nappali + 2 hálószoba + gardrób
Az elrendezések megtekinthetők az alaprajzokon.
Kiemelt jellemzők
Modern, energiahatékony műszaki tartalom
• 2026-os építési előírásoknak megfelelő kivitelezés
• 8 kW-os Fischer levegő–víz hőszivattyú
• Padlófűtés az egész lakótérben
• 3x16 Amper, illetve 1x25 A H tarifa
Minőségi építőanyagok
• 30 cm-es téglafőfalak + 10 cm homlokzati hőszigetelés
• 10 cm-es Viablokk válaszfalak
• 3 rétegű, thermo üvegezésű fehér műanyag nyílászárók
• Elektromos redőny előkészítés
• Antracit színű tetőcserép
Extrák és kényelmi megoldások
• Napelem előkészítés
• Klíma előkészítés az amerikai konyhás nappaliban és a hálószobákban
• Riasztórendszer előkészítés
• Elektromos kapu előkészítés
Műszaki részletek
• Vasbeton sávalap
• Fafödém 25–30 cm hőszigeteléssel
• Precíz, minőségi kivitelezés
• Megbízható, tőkeerős kivitelező, referenciákkal
Elhelyezkedés – kiváló infrastruktúra
Frekventált, mégis élhető környezet, ahol minden pár perc sétára elérhető:
• Iskola, óvoda, bölcsőde
• Bevásárlási lehetőségek
• Tömegközlekedési kapcsolatok
Várható átadás: 2026. II. negyedév vége
Irodánk díjmentes hitelügyintézéssel, teljes körű tanácsadással, több bank ajánlatával, valamint az új CSOK Plusz ügyintézésével is segíti ügyfeleit.

Családi ház részletei

Ár: 124 900 000 Ft
Méret: 100 négyzetméter
Azonosító: 11592981
Irodai azonosító: 347944
Telek: 513 négyzetméter
Ingatlan állapota: Kitűnő
Jelleg: családi ház
Építőanyag: Tégla
Komfort fokozat: Összkomfort
Kor: Új építésű
Egész szobák: 3

Egyéb jellemzők

  • Garázs
  • Terasz

Így keressen családi házat négy egyszerű lépésben. Csupán 2 perc, kötelezettségek nélkül!

Szűkítse a családi házak
listáját
Válassza ki a megfelelő
családi házat
Írjon a hirdetőnek
Várjon a visszahívásra