Eladó családi ház Budapest XVIII. ker 122 000 000 Ft

Leírás

ÚJ ÉPÍTÉSŰ PRÉMIUM CSALÁDI HÁZ ELADÓ – 18. kerület, Kossuth-Ferenc telep – Nappali + 2 háló, terasz, garázs

Budapest XVIII. kerületének egyik legcsendesebb, kertvárosias részén, a Kossuth-Ferenc telepen, szorgalmi úton megközelíthető, új építésű családi ház eladó. Az ingatlan ügyvéd által ellenjegyzett használati megosztással kerül értékesítésre.
Várható átadása: 2025 III–IV. negyedév.

Főbb adatok:
- Hasznos nettó alapterület: 76,88 m²
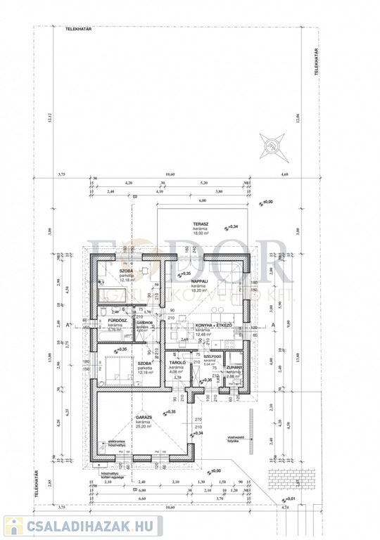
- Elrendezés:
- Tágas nappali
- Konyha-étkező
- 2 különnyíló hálószoba
- Fürdőszoba + külön zuhanyzó
- Külön WC
- Gardrób
- Szélfogó, közlekedő
- Terasz: 18 m²
- Garázs: 25,20 m², közvetlen kapcsolattal
¬-Telek terület 560 m²

Az ingatlan praktikus elrendezését a mellékelt alaprajz mutatja be.

Műszaki tartalom – magas műszaki színvonal:
- Falazat: YTONG pórusbeton (30 cm) + 10 cm hőszigetelés
- Tető: Antracit Bramac betoncserép
- Nyílászárók: sötétszürke, 3 rétegű hőszigetelt műanyag
- Fűtés és meleg víz: elektromos hőszivattyú + padlófűtés
- Hűtés: Hűtő-fűtő split klímák
- Burkolatok: kerámia és laminált parketta
- Energiahatékonyság: közel nulla energiaigény (2023.11.01. ÉKM rendelet szerint)
- Szennyvízelvezetés: közcsatornára csatlakozással
- Közművek: víz, villany, csatorna elérhetők
- Garázs: térköves beállóval, tárolóval

CSOK Plusz igénybe vehető – akár egy gyermek vállalása esetén is!

Jogi nyilatkozat:
A jelen hirdetés kizárólag tájékoztató jellegű, nem minősül ajánlattételnek. A műszaki tartalom változtatásának jogát a kivitelező fenntartja.

Legyen Öné ez a modern, energiatakarékos otthon – foglalja le most, és kövesse figyelemmel, hogyan épül fel az álmai otthona!

Családi ház részletei

Ár: 122 000 000 Ft
Méret: 102 négyzetméter
Azonosító: 11562964
Irodai azonosító: 338294
Telek: 560 négyzetméter
Ingatlan állapota: Kitűnő
Jelleg: családi ház
Építőanyag: YTONG
Komfort fokozat: Összkomfort
Kor: Új építésű
Egész szobák: 3

Egyéb jellemzők

  • Garázs
  • Terasz

Így keressen családi házat négy egyszerű lépésben. Csupán 2 perc, kötelezettségek nélkül!

Szűkítse a családi házak
listáját
Válassza ki a megfelelő
családi házat
Írjon a hirdetőnek
Várjon a visszahívásra