Eladó családi ház Budapest XVII. ker 173 400 000 Ft

Leírás

Modern-mediterrán életérzés Rákoskert szívében – igényes sorházi otthon eladó!

A XVII. kerület egyik legkedveltebb, családias részén, Rákoskerten kínálunk megvételre egy különleges hangulatú, modern-mediterrán stílusú sorház szélső ingatlanát. Az ingatlan a 2004-ben épült, újszerű állapotban lévő, folyamatosan karbantartott és felújított ház, amely nemcsak esztétikailag, hanem műszaki tartalmában is prémium színvonalat képvisel.

A 142 m²-es otthon (137 m² fűtött alapterület + 2 db 2 m²-es erkély + 10 m²-es terasz) tágas, napfényes belső terekkel rendelkezik, amit a kiváló fekvés tovább hangsúlyoz. Az ingatlanhoz tartozik egy 63 m²-es padlástér, amely további lehetőségeket rejt magában.

A 320 m²-es telket kerttervező cég álmodta meg, így a gondozott kert tökéletes kiegészítője az elegáns otthonnak. A hátsó kertből közvetlen kijárás nyílik a fedett teraszról, amely a 2012-ben hozzáépített, 13 m²-es szinteltolásos dolgozószobán keresztül közelíthető meg – itt padlófűtés is növeli a komfortérzetet.

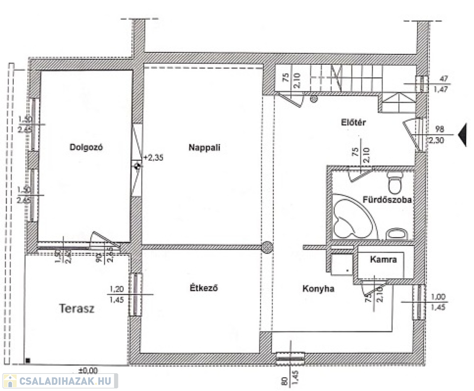
Alsó szint:

Előtér

Zuhanyzós fürdőszoba WC-vel

Gardrób

Tágas nappali

Különálló iroda

Étkező és konyha + kamra

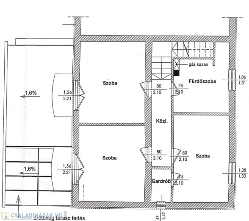
Felső szint:

3 hálószoba (12,4 m² + gardrób, 13,6 m² felújítva 2019-ben, 13,6 m²)

Sarokkádas fürdőszoba WC-vel és bidével

Műszaki jellemzők:

2012-ben villamoshálózat korszerűsítése és bővítése

Fűtés: alsó szinten padlófűtés, felső szinten radiátorok

VAILLANT kombi cirkó fűtés 120 literes REFLEX melegvíztárolóval, időjáráskövető vezérléssel

Átlagos fűtésszámla: 13.000–14.000 Ft/hó (22°C mellett)

Extrák:

Érintőkijelzős, kétkörös riasztórendszer proximity kártyával

Elektromos alumínium redőnyök (konyha, iroda, 2 hálószoba)

Felhúzható szúnyoghálók minden nyílászárón

Exkluzív beépített szekrény edzett üveg tolóajtókkal

LED világítás kívül-belül

TOSHIBA DAISEIKAI 3,5 kW klíma a földszinten

5.1 kiépített hangrendszer a nappaliban

Design függönyök, római rolók (Vesta Design)

Puhafa padlóburkolat

Automata, 3+1 körös öntözőrendszer (jelenleg nem használják)

4 m²-es betonalapú kerti faház

Automata Proteco tolókapu és elektromos gyalogos beléptető rendszer (kóddal/proximity kártyával)

További előnyök:

Az ár tartalmazza a bútorzat kb. 80%-át – csak a bőröndjét kell hoznia!

Tisztasági festésen kívül nincs szükség további ráfordításra

Tehermentes, rendezett jogviszonnyal rendelkező ingatlan

Ha olyan otthont keres, ahol a kényelem, az elegancia és a természet közelsége harmóniában találkozik, ez az ingatlan tökéletes választás lehet Önnek!
ID: 383784

Családi ház részletei

Ár: 173 400 000 Ft
Méret: 142 négyzetméter
Azonosító: 11543489
Irodai azonosító: 383784
Cím: Görögszállás utca
Telek: 320 négyzetméter
Ingatlan állapota: Kitűnő
Jelleg: sorház
Építőanyag: Tégla
Fűtés jellege: Cirkó
Fűtés módja: Gáz
Komfort fokozat: Összkomfort
Kor: 21-50 éves
Szintek száma: 1 szint
Egész szobák: 5

Egyéb jellemzők

  • Csatorna
  • Garázs
  • Pince
  • Terasz

Térkép


Így keressen családi házat négy egyszerű lépésben. Csupán 2 perc, kötelezettségek nélkül!

Szűkítse a családi házak
listáját
Válassza ki a megfelelő
családi házat
Írjon a hirdetőnek
Várjon a visszahívásra