Eladó családi ház Budapest XVII. ker 169 990 000 Ft

Leírás

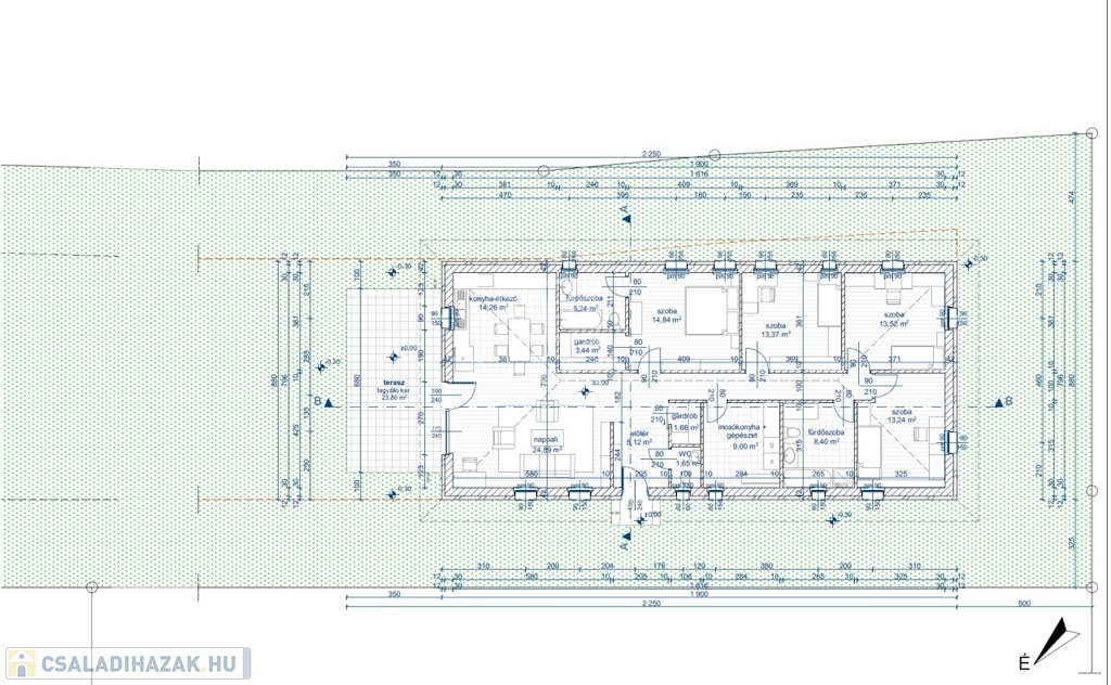
A XVII. kerület csendes, családi házas övezetében, az Emlék utca 58. szám alatt kínálom megvételre ezt a 641 m²-es telekre épülő, nettó 147 m²-es, modern és energiatakarékos új építésű családi házat, amelyhez egy 23,8 m²-es terasz is tartozik.

A kivitelezést megbízható, több sikeres referenciával rendelkező kivitelező cég végzi, az ingatlan pedig kulcsrakészen kerül átadásra.

A ház praktikus elrendezésének köszönhetően négy külön nyíló szoba és egy tágas amerikai konyhás nappali biztosítja a kényelmes mindennapokat, miközben a korszerű műszaki tartalom alacsony fenntartási költségeket garantál.

Az épület Porotherm 30-as tégla falazattal, 14 cm-es grafitos homlokzati szigeteléssel és 30 cm vastag tetőszigeteléssel készül. A fűtést és a melegvizet 12 kW-os hőszivattyú biztosítja, a teljes ingatlanban padlófűtéssel, míg a hűtést oldalfali fancoil egységek látják el.

A háromrétegű fehér nyílászárók motoros redőnnyel szerelve kerülnek beépítésre.

A belső burkolatok és szaniterek választhatók:
-csempe 8.000 Ft-ig 180 cm-es magasságig, a fölött 12.000 Ft/m²
-fürdők padlóburkolata 8.000 Ft/m²-ig
-minden helyiség parkettaburkolattal, alátéttel és szegéllyel 5.000 Ft/m²-ig
-terasz burkolata 4.000 Ft/m²-ig
-szaniterek összeghatára 350.000 Ft.
-A szobánkénti három elektromos kiállás az ár részét képezi, további kiállások igény szerint 10.000 Ft + áfa díjon rendelhetők.

Ez az ingatlan ideális választás mindazok számára, akik egy modern, praktikusan kialakított, magas műszaki tartalmú, alacsony üzemeltetési költségű, új építésű családi házra vágynak egy kiválóan megközelíthető, mégis nyugodt környéken.

INGYENES hitel tanácsadás, CSOK Plusz - Otthon Start ügyintézés!
BANKFÜGGETLEN hitelcentrumunk az összes elérhető bank és hitelintézet ajánlatát versenyezteti az Ön kedvéért, ráadásul DÍJMENTESEN.

- Egyedi, bankfiókban nem elérhető kamat- és díjkedvezmények
- Hitelképesség vizsgálat
- Idő, energia és pénz megtakarítás
- Teljes hivatali ügyintézés

Amennyiben hirdetésem felkeltette az érdeklődését vagy egyéb információra van szüksége hívjon bizalommal!

Családi ház részletei

Ár: 169 990 000 Ft
Méret: 159 négyzetméter
Azonosító: 11586708
Irodai azonosító: 390713
Cím: Emlék utca
Telek: 641 négyzetméter
Ingatlan állapota: Kitűnő
Jelleg: családi ház
Építőanyag: Tégla
Fűtés jellege: Geotermikus
Fűtés módja: Hőszivattyú
Komfort fokozat: Dupla komfort
Kor: Új építésű
Szintek száma: Földszintes
Egész szobák: 5

Egyéb jellemzők

  • Csatorna
  • Garázs
  • Pince
  • Terasz

Térkép


Így keressen családi házat négy egyszerű lépésben. Csupán 2 perc, kötelezettségek nélkül!

Szűkítse a családi házak
listáját
Válassza ki a megfelelő
családi házat
Írjon a hirdetőnek
Várjon a visszahívásra