Eladó családi ház Budapest XVII. ker 138 000 000 Ft

Leírás

Nyugalom és modern kényelem Rákoskerten – újszerű családi ház eladó a XVII. kerületben

Budapest XVII. kerületének közkedvelt, csendes rákoskerti részén kínálunk megvételre egy kiváló elosztású, újszerű állapotú családi házat, amely 2018-ban épült, és azóta is gondosan karbantartott, szeretettel ápolt otthon.

Már az első lépéseknél érezhető az ingatlan harmonikus hangulata.
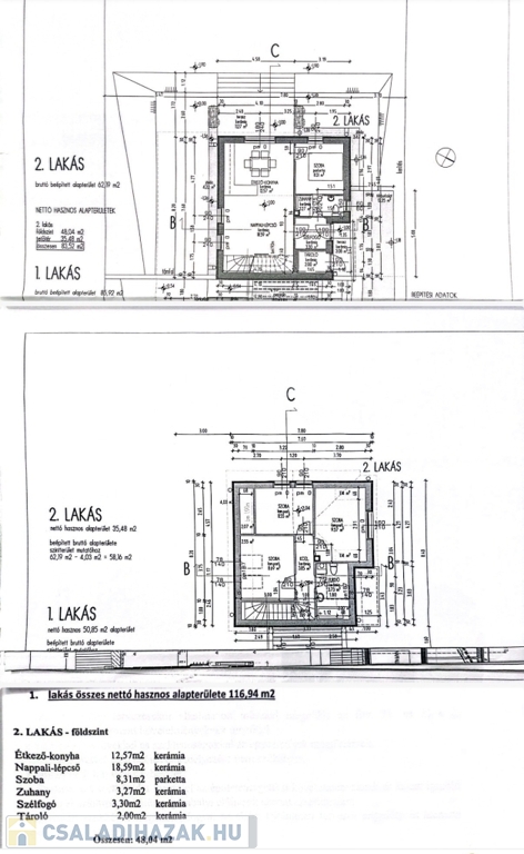
A házba belépve az előszobából
– jobbra egy zuhanyzós fürdőszoba,
– balra egy háztartási helyiség és kamra,
– szemben pedig a tágas, világos amerikai konyhás nappali fogad.

A nappaliból közvetlenül nyílik a földszinti hálószoba, az étkező pedig teraszkijáratos, így a belső tér és a kert kapcsolata természetes és kényelmes.

Az emeleten további 3 külön nyíló hálószoba és egy kádas fürdőszoba található, ideális elrendezést biztosítva családok számára.

Műszaki tartalom és kényelem

Gázcirkó fűtés

A földszinten a hidegburkolatos helyiségekben padlófűtés, a szobákban radiátoros hőleadás

Klímaberendezés az emeleten a kellemes nyári hőmérsékletért

Videós kaputelefon a biztonságos beengedéshez

Riasztórendszer előkészített vezetékezéssel

Kültér

A szépen gondozott udvaron egy külön elkerített, hangulatos kerti sütögető rész került kialakításra – tökéletes helyszín családi és baráti összejövetelekhez.

Ez az ingatlan ideális választás mindazoknak, akik a városi élet kényelmét szeretnék ötvözni az otthon nyugalmával és meghittségével. Különösen ajánlott kisgyermekes családok számára, de mindenki számára tökéletes, aki rendezett, modern otthonra vágyik csendes környezetben.

Az ingatlan hitelezhető.

Családi ház részletei

Ár: 138 000 000 Ft
Méret: 83 négyzetméter
Azonosító: 11594809
Irodai azonosító: 392029
Cím: Nyugalom és modern kényelem!
Telek: 613 négyzetméter
Ingatlan állapota: Kitűnő
Jelleg: családi ház
Építőanyag: Tégla
Fűtés jellege: Cirkó
Fűtés módja: Gáz
Komfort fokozat: Összkomfort
Kor: 6-10 éves
Szintek száma: 1 szint
Egész szobák: 1
Fél szobák: 4

Egyéb jellemzők

  • Csatorna
  • Garázs
  • Pince
  • Terasz

Térkép


Így keressen családi házat négy egyszerű lépésben. Csupán 2 perc, kötelezettségek nélkül!

Szűkítse a családi házak
listáját
Válassza ki a megfelelő
családi házat
Írjon a hirdetőnek
Várjon a visszahívásra