Eladó családi ház Budapest XVII. ker 134 700 000 Ft

Leírás


Megvételre kínálunk a 17. kerület egyik legszebb részén, Rákoscsaba-Újtelepen, egy modern, könnyűszerkezetes, garázsos, NAPELEMES, teraszos, 118 nm-es, 4 vagy 5 szobás, gardróbos, 2 fürdős újépítésű i Megvételre kínálunk a 17. kerület egyik legszebb részén, Rákoscsaba-Újtelepen, egy modern, könnyűszerkezetes, garázsos, NAPELEMES, teraszos, 118 nm-es, 4 vagy 5 szobás, gardróbos, 2 fürdős újépítésű ikerházat.

Az ingatlanok „AA” energetikai besorolásnak megfelelő paraméterekkel rendelkező önfenntartó otthonok.

Minőségi alapanyagokból, igényes kivitelezés jellemzi a projektet, ahol a biztonság és a kényelem mellett az energiatakarékosság volt a fő szempont. A ház átgondolt tervezésének köszönhetően kényelmes, otthonos, szellős, viszont ugyanakkor bővelkedik a reprezentatív, elegáns elemekkel.

A napelemnek köszönhetően a rezsi költségek minimalizálódnak.

A gépjárművekkel az ingatlanhoz tartozó garázsban, fedett parkolóban vagy térkövezett beállón lehet biztonságosan parkolni.  

 

Az ingatlanhoz 271 nm-es privát telek tartozik

 

Igénybe vehető lehetséges kedvezmények:

CSOK PLUSZ

5% Áfa visszatérítés

Babaváró hitel

Illeték kedvezmény vagy mentesség.

 

 

Az új generációs technológiával épülő házak kiemelkedő és meggyőző tulajdonságai:

- a téglafalaknál jobb hőtartással és hangszigeteléssel rendelkeznek

- nincs bepárolgás, penészesedés

- a téglaházakkal megegyező élettartam és szerkezeti garancia

- 9 rétegrendű falak

- 8 rétegrendű födém

- 7 rétegrendű padlózat

- kiemelkedő ár-érték arány



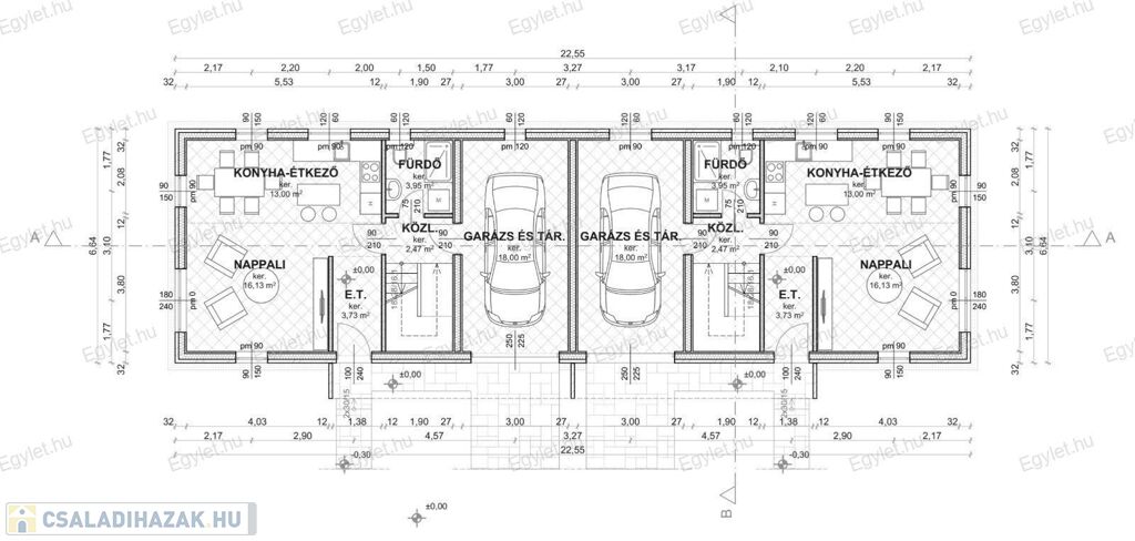
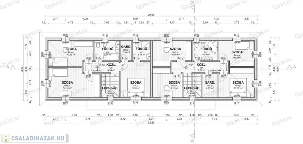
Az „AA” energetikai besorolásnak megfelelő paraméterekkel rendelkező, önfenntartó otthonok, 118 nm hasznos területtel, kétféle típusterv alapján épülnek, belső kétszintes, dupla komfortos, 4 illetve 5 szobás kialakítással.

Földszinten: konyha, étkező, nappali, előszoba, fürdő, beépített lépcsőfeljáró, fűtött garázs.

Felső szinten: 3 vagy 4 szoba, 1 vagy 2 fürdőszoba, gardrób.



Legfontosabb jellemzői:

- a SolarEdge napelem rendszer kinullázza a villanyszámlát (az általa termelt energia elegendő a teljes háztartás ellátására és pluszban akár egy elektromos autó egész éves töltésére)

- elektromos Nobo Oslo Glass radiátorok a fűtéshez

- a hűtésről Cascade inverteres okos klíma gondoskodik

- automata öntözőrendszer

- automata kapuk és garázskapuk

- ARISTON bojler a melegvíz előállítására

- beépített szaniterek

- elektromos törölközőszárítós radiátorok a fürdőkben

- prémium kategóriás antracit színű biztonsági bejárati ajtó

- riasztó rendszer

- video kaputelefon



Tető: antracit színű cserepes lemez

Nyílászárók: Kömmerling márkájú, minőségi 5 légkamrás, 3 rétegű üvegezéssel ellátott kívülről antracit, belül fehér műanyag ablakok és erkélyajtók, alumínium kombi redőnyökkel

Belső térben, a lépcső mellett modern üvegkorlát világítással.



Elhelyezkedéstől függően az árak az alábbiak szerint alakulnak:



Hátsó lakások: 437 nm telekrésszel, nappali + 4 szobával Ára: 149.000.000 Ft

 

Az ingatlan biztonságos, nyugodt, csendes, kertes házas övezetében, Rákoscsaba-Újtelep egyik legszebb részén, a Naplás-tó természetvédelmi terület szomszédságában található. A környék fejlett infrastruktúrájának köszönhetően bővelkedik a szociális intézményekben, bölcsőde, óvoda, általános iskola, orvosi intézmények, bevásárlási lehetőségek, találhatóak a közelben.



Közlekedése kiváló, busszal az Örs vezér tér vagy vonattal a Keleti pu. rövid idő alatt megközelíthető. Az M0-ás és az M31-es autópálya öt perc alatt elérhető.



Hitel, CSOK igénylésben díjmentes ügyintézéssel állunk rendelkezésére! Nálunk kiválaszthatja az Ön számára legkedvezőbb ajánlatot.



Várom megtisztelő érdeklődésüket.

 

 

Családi ház részletei

Ár: 134 700 000 Ft
Méret: 118 négyzetméter
Azonosító: 11594353
Irodai azonosító: 209002144
Telek: 271 négyzetméter
Ingatlan állapota: Kitűnő
Jelleg: ikerház
Építőanyag: Könnyűszerkezetes
Fűtés jellege: Villany
Komfort fokozat: Dupla komfort
Kor: Új építésű
Egész szobák: 4

Így keressen családi házat négy egyszerű lépésben. Csupán 2 perc, kötelezettségek nélkül!

Szűkítse a családi házak
listáját
Válassza ki a megfelelő
családi házat
Írjon a hirdetőnek
Várjon a visszahívásra