Eladó családi ház Budapest XVI. ker 257 000 000 Ft

Leírás

Budapest XVI. kerületében, Sashalom közkedvelt részén, az Újszász utca 35. szám alatt, 578 m²-es telken megépült, önálló, új építésű családi ház eladó megbízható, számos referenciával rendelkező kivitelezőtől.

Az ingatlan elkészült, a teljes szerkezet, gépészet és külső környezet kialakítása megtörtént, már csak a burkolatok, szaniterek és beltéri ajtók kiválasztása és beépítése hiányzik, így az új tulajdonos saját ízlésére szabhatja a belső tereket.

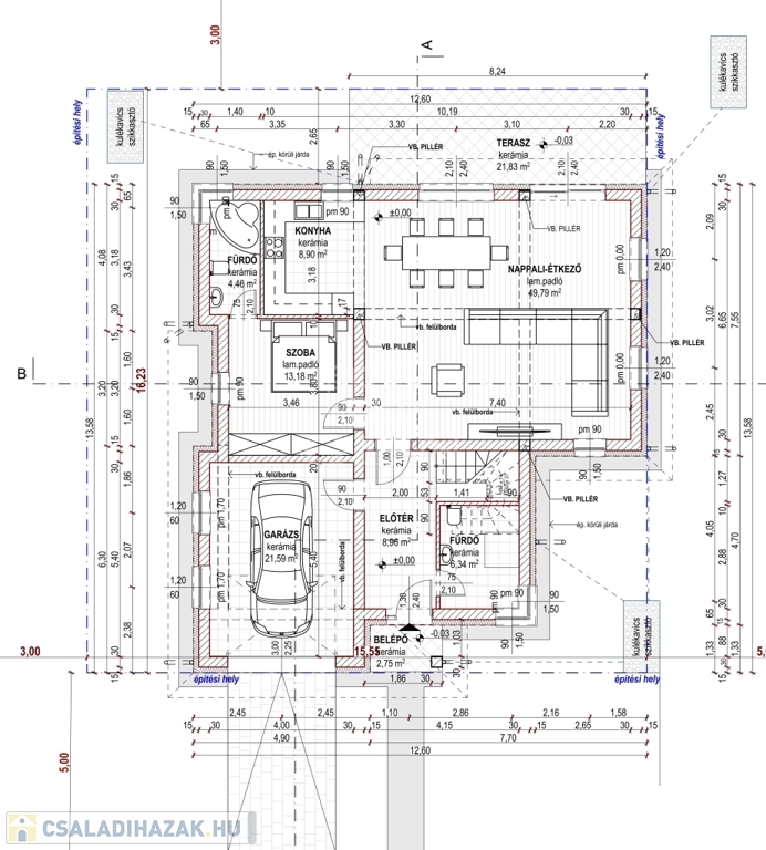
A ház nettó 166,21 m² lakótérrel és 21,59 m²-es garázzsal rendelkezik, kétszintes kialakítású, modern megjelenésű és átgondolt alaprajzú.

Az épület Porotherm 30-as téglából készült, 15 cm EPS homlokzati hőszigeteléssel. A padlószerkezetbe 10 cm lépésálló hőszigetelés, a födémbe 30 cm ásványgyapot került beépítésre. A ház monolit vasbeton födémmel épült, amely kiemelkedő statikai és akusztikai tulajdonságokat biztosít. A nyílászárók 6 légkamrás, háromrétegű üvegezésűek, alumínium, elektromos redőnyökkel szerelve.

A fűtést és a használati melegvíz-ellátást split rendszerű hőszivattyú biztosítja padlófűtéssel, a hűtést fan-coil rendszer szolgálja minden helyiségben. Az ingatlan H tarifás villanyórával, valamint napelem előkészítéssel került kialakításra.

A földszinten egy közel 59 m²-es amerikai konyhás nappali található, közvetlen 21,83 m²-es teraszkapcsolattal. Ezen a szinten helyet kapott egy hálószoba saját fürdőszobával, egy külön fürdő az előtérből nyílóan, valamint a garázs. Az emeleten három hálószoba, egy fürdőszoba, gépészeti helyiség és egy 12,52 m²-es terasz került kialakításra üveg korláttal.

Az ingatlanhoz térkövezett gépkocsi-beálló és járdák, elektromos kapu, valamint riasztó- és kamerarendszer előkészítés tartozik.

A még választható belső elemek az alábbi árkategóriákig kerülhetnek beépítésre:

-hidegburkolat: 10 000 Ft/m²
-melegburkolat: 6 000 Ft/m²
-beltéri ajtók: 80 000 Ft/db
-fürdőkád: 70 000 Ft
-csaptelepek: 25 000 Ft/db
-épített zuhany
-Legrand elektromos szerelvények

Az ingatlan ideális választás azok számára, akik már elkészült, azonnal továbbfinomítható, modern és energiatakarékos otthont keresnek Budapest XVI. kerületének egyik legkedveltebb részén.

INGYENES hitel tanácsadás, CSOK Plusz - Otthon Start ügyintézés!
BANKFÜGGETLEN hitelcentrumunk az összes elérhető bank és hitelintézet ajánlatát versenyezteti az Ön kedvéért, ráadásul DÍJMENTESEN.

- Egyedi, bankfiókban nem elérhető kamat- és díjkedvezmények
- Hitelképesség vizsgálat
- Idő, energia és pénz megtakarítás
- Teljes hivatali ügyintézés

Amennyiben hirdetésem felkeltette az érdeklődését vagy egyéb információra van szüksége hívjon bizalommal!

Családi ház részletei

Ár: 257 000 000 Ft
Méret: 205 négyzetméter
Azonosító: 11586982
Irodai azonosító: 390759
Cím: Újszász utca
Telek: 578 négyzetméter
Ingatlan állapota: Kitűnő
Jelleg: családi ház
Építőanyag: Tégla
Fűtés jellege: Geotermikus
Fűtés módja: Hőszivattyú
Komfort fokozat: Dupla komfort
Kor: Új építésű
Szintek száma: 1 szint
Egész szobák: 5

Egyéb jellemzők

  • Csatorna
  • Garázs
  • Pince
  • Terasz

Térkép


Így keressen családi házat négy egyszerű lépésben. Csupán 2 perc, kötelezettségek nélkül!

Szűkítse a családi házak
listáját
Válassza ki a megfelelő
családi házat
Írjon a hirdetőnek
Várjon a visszahívásra